Woning verhuren

Contact met de makelaar

Deze woning is gevonden buiten ons eigen netwerk. Met de knop hieronder kom je direct bij de aanbieder terecht.

Nieuw

Te huur: Huis Bilderdijkstraat 21 bis in Utrecht

Bekijk kaart
3532 VB (Nieuw Engeland, Th. a. Kempisplantsoen en omgeving)
€ 2.000 per maand
  • 97 m²
  • 4 kamers
  • Gestoffeerd of gemeubileerd

Beschrijving

Te huur in de gezellige Bilderdijkstraat in Utrecht deze volledig gemeubileerde 3-slaapkamer maisonnette. De bereikbaarheid is zeer goed, gelegen op loopafstand van het centraal station. Ook is de ligging met zowel met openbaar vervoer, busbaan met snelverbinding naar station en stadscentrum, als met eigen vervoer naar de uitvalswegen en de A2 zeer gunstig te noemen. Winkels voor de dagelijkse boodschappen, sportaccommodaties en recreatiemogelijkheden zijn eveneens in de buurt.

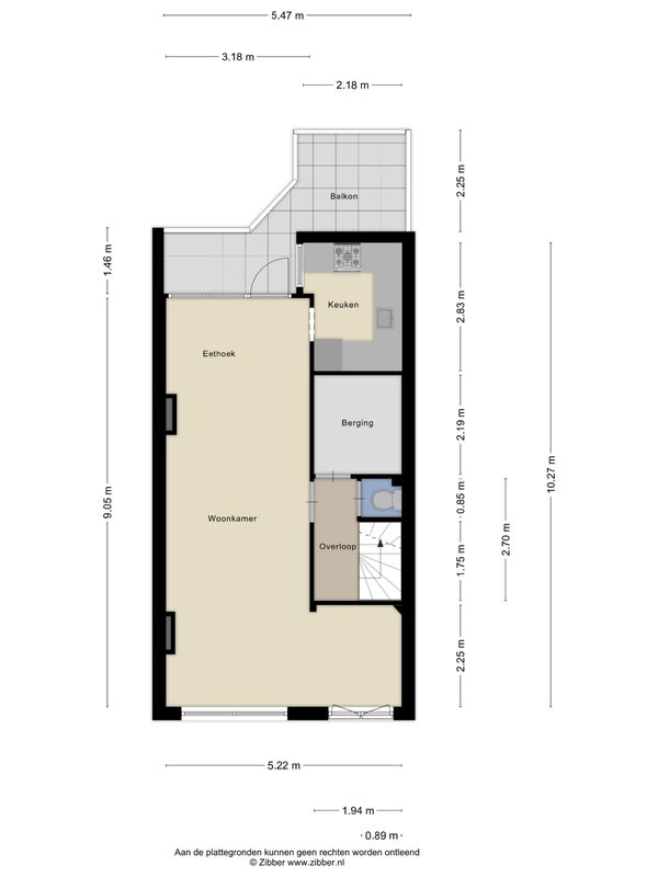
Indeling:

Begane grond:
Entree/hal, trapopgang naar de 1e verdieping.

1e verdieping:
Ruime overloop met toilet, een zeer praktische berging/bijkeuken en toegang tot de woonkamer. Een riante en lichte doorzon woonkamer met halfopen keuken met zowel voor als achter hoge raampartijen, een doorlopende laminaat vloer, strak afgewerkte wanden en hoog plafond (3 m). De TV in de woonkamer beschikt over een Google Chromecast en een geluidsinstallatie met Logitech bluetooth adapter. De moderne open keuken is voorzien van een SMEG gasfornuis, afzuigkap, magnetron, vaatwasser en een koel-vriescombinatie. Via de woonkamer bereik je aan de achterzijde een fijn en rustig gelegen balkon/dakterras over de gehele breedte van de woning.

2e verdieping:
Ruime en lichte overloop met aangrenzend de drie slaapkamers, de badkamer en een bergkast/CV ruimte. De luxe en complete badkamer is met inloopdouche, vrij hangend 2e toilet, wastafelmeubel, een heerlijk ruim ligbad en een design radiator.

Bijzonderheden:

  • Alleen tijdelijk te huur voor een periode tussen12-14 maanden
  • Te huur exclusief GWE, TV en internet
  • De woning wordt volledig gemeubileerd opgeleverd
  • Delers toegestaan (maximaal 2, geen studenten)
  • Parkeren op straat met vergunning

Heeft u belangstelling voor deze woning? Neem dan contact op met ons kantoor in Utrecht via ******.

Overdracht

Huurprijs
€ 2.000 per maand
Aangeboden sinds
02-10-2025
Status
Te huur
Beschikbaar
Per 01-11-2025
Huurovereenkomst
Tijdelijke verhuur
Looptijd
Minimaal 12, maximaal 14 maanden
Borg
€ 3.900
Interieur
Gestoffeerd of gemeubileerd
Onderhoudsstaat
Goed

Oppervlakte en inhoud

Woonoppervlakte
97 m²
Inhoud
321 m³

Bouw

Type woning
Huis
Soort woning
Tussenwoning (rijtjeshuis), Eengezinswoning
Soort bouw
Bestaande bouw
Bouwjaar
1904
Ligging
  • In het centrum
  • In een woonwijk

Indeling

Aantal kamers
4
Aantal slaapkamers
3
Aantal badkamers
1
Aantal woonlagen
2
Voorzieningen
  • Bad
  • Dakterras
  • Toilet

Buitenruimte

Tuin
Niet aanwezig
Dakterras
Aanwezig

Energie

Energielabel
D

Bergruimte

Schuur/Berging
Niet aanwezig

Garage

Aanwezig
Nee
Meld een probleem met deze woning
Contact met de makelaar Bel