- 140 m²
- 4 kamers
- Gestoffeerd
Beschrijving
Sanatoriumlaan 2
3705 AP ZEIST (Patijnpark)
Charmante helft van dubbel woonhuis op toplocatie
- Engelse tekst onderaan -
Op een ideale locatie in Zeist, vlakbij uitvalswegen richting Utrecht, A28 en A27, bieden wij deze zeer ruime, charmante helft van een dubbel woonhuis te huur aan. De woning beschikt over eigen parkeergelegenheid en een ruime, volledig omheinde tuin. Het pand is volledig gemoderniseerd, met behoud van authentieke details zoals glas-in-loodramen en -deuren. Dit zorgt voor een prettige combinatie van karakter en comfort.
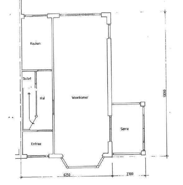
Begane grond:
Je komt binnen door de elegante voordeur met glas en lood in een nette entree. Via een halletje krijg je toegang tot de ruim bemeten en open woonkamer met flinke raampartijen aan alle drie de vrije zijdes van het huis. Vanuit de woonkamer via de openslaande deuren naar een heerlijke vrije tuin met oriëntatie op het Zuiden. Het zitgedeelte van de woonkamer aan de voorzijde van het pand met serre is tevens voorzien van openslaande deuren naar de zijtuin. De open keuken is voorzien van inbouwapparatuur. Tevens is er een toilet op deze etage en toegang tot een kleine kelder op stahoogte.
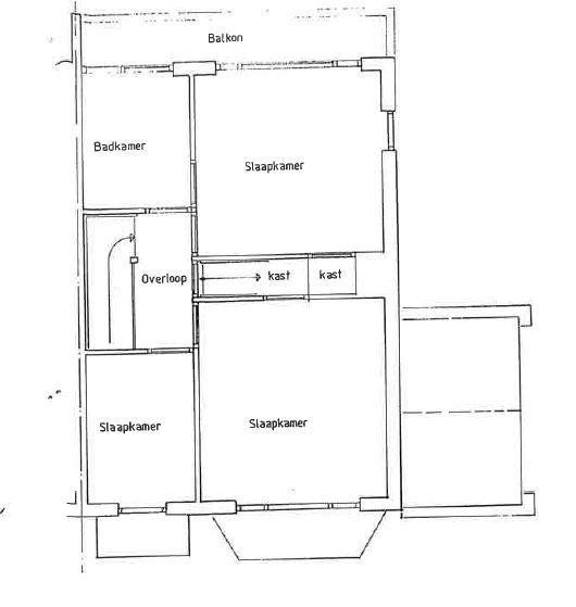
Eerste verdieping:
Vanaf de trap stapt u op de overloop met toegang tot drie in grootte variërende slaapkamers (waarvan één met inbouwkast) en een badkamer voorzien van ligbad, inloopdouche, hangend toilet en wastafelmeubel.
Tweede verdieping:
Door middel van een vaste trap bereik je de ruime zolderverdieping met veel hoogte in de schuine kap en zichtbare balkenstructuur, er komt veel licht binnen door de ramen aan zowel de voor- als achterzijde van het pand. Eindeloze mogelijkheden dus, voor deze verdieping.
Kenmerken:
- Huurprijs excl. water, gas en elektriciteit, internet/TV en belasting
- Gestoffeerd, vloeren (beneden hardhout) en in meerdere ruimtes raambekleding
- 3 slaapkamers en zeer ruime zolder
- 1 badkamer met toilet en nog 1 apart toilet- Ruime tuin, schuur met extra overkapte buitenruimte;
- Balkon
- Type huurovereenkomst: onbepaalde tijd, kortere duur is bespreekbaar
- Uitstekende centrale locatie, rustig met op korte afstand winkels
- Parkeren op eigen terrein
- Waarborgsom ter grootte van twee maanden huur
- Oplevering in overleg en onder voorbehoud gunning eigenaar
Gevraagde documenten:
- Kopie geldig legitimatiebewijs
- Werkgeversverklaring
- Verhuurdersverklaring
- Laatste 3 loonstroken + bewijs bankafschrift
- Inkomenseis: minimaal 3 x de maandhuur
- Motivatiebrief
Kenmerken:
- Huur € 2.750,-- per maand
- Voorschot Gas/Water/Licht: contract wordt op eigen naam afgesloten
- TV/Internet: contract wordt op eigen naam afgesloten
- Huurovereenkomst: looptijd nader af te stemmen
- Aanvaarding: beschikbaar per direct, voorbehoud gunning eigenaar
Bouw:
Soort Bouw: Bestaande bouw,
Soort woonhuis: Eengezinswoning, 2-onder-1-kapwoning
Bouwjaar: 1937
Oppervlakte en Inhoud:
Wonen: 140 m2
Perceel 363 m2
Inhoud 450 m3
Externe bergruimte 6 m2
Energie:
Energielabel: D
Deze informatie is door ons met de nodige zorgvuldigheid samengesteld. Geen aansprakelijkheid wordt aanvaard voor enige onvolledigheid, onjuistheid of anderszins, of de consequenties daarvan. Alle maten en afmetingen zijn indicatief en niet exact volgens de NEN-2580 norm.
Sanatoriumlaan 2
3705 AP ZEIST (Patijnpark)
Charming half of double house in prime location
Ideally located in Zeist, close to major highways and easy access to Utrecht, we are offering this spacious and charming semi-detached house for rent. The house has private parking and a large, fully enclosed garden. The property has been fully modernized, retaining authentic details such as stained-glass windows and doors. This creates a pleasant combination of character and comfort.
Ground floor:
You enter the property through the elegant front door with stained glass into a proper entrance and coat area. A small hallway leads to the spacious and open-plan living room with large windows on all three open sides of the house. From the living room, French doors open onto a lovely, south-facing garden. The reception area, located at the front of the house has a conservatory, which also has French doors leading to the side of the garden. The open-plan kitchen is equipped with built-in appliances. There is also a toilet on this floor and access to a small, standing-height cellar.
First floor:
From the stairs, you walk onto the landing. Here you can access the three bedrooms, each of varying size (one with a built-in wardrobe). There is also access to a bathroom with a bathtub, walk-in shower, toilet, and vanity.
Second floor:
A fixed staircase leads to the spacious attic floor, which boasts ample height (sloping roof) and exposed beams. There are windows at both the front and rear of the property providing ample natural light in this space. The possibilities for this floor are endless.
Features:
- Rent excludes water, gas and electricity, internet/TV and tax
- Furnished with flooring (hardwood on ground floor), window dressing in several rooms
- 3 bedrooms and a very spacious attic
- 1 bathroom with toilet and one separate toilet
- Spacious garden with a shed and extra space with a canopy;
- Balcony
- Type of rental agreement: indefinite lease term, shorter duration lease is negotiable
- Excellent central location, quiet yet close to shops
- Private parking
- Deposit equal to two months' rent
- Commencement date to be determined and subject to the owner's award
Required documents:
- Copy of valid ID
- Employer's statement
- Landlord statement
- Last 3 payslips + proof of bank statement
- Income requirement: at least 3x the monthly rent
- Motivation letter
Characteristics :
- Rent € 2.750,-- per month
- Voorschot Gas/Water/Licht: contract to be arranged in tenants name
- TV/Internet: contract to be arranged in tenants name
- Lease: duration to be determined
- Acceptance: Available immediately, subject to owner's award
Construction:
Type: Existing construction
Type of house: Single-family home, semi-detached
Year built: 1937
Size and Volume:
Living area: 140 m²
Plot size: 363 m²
Volume: 450 m³
External storage: 6 m²
Energy: Energy label: D
This information has been carefully compiled by us. No liability is accepted for any incompleteness, inaccuracy or otherwise, or the consequences thereof. All measurements and dimensions are indicative and not exact according to the NEN-2580 standard.
Overdracht
- Huurprijs
-
€ 2.750 per maand
- Aangeboden sinds
- 08-10-2025
- Status
- Te huur
- Beschikbaar
- Per direct
- Huurovereenkomst
- Onbepaalde tijd
- Looptijd
- Minimaal 12 maanden
- Borg
- € 5.500
- Interieur
- Gestoffeerd
- Onderhoudsstaat
- Goed
Oppervlakte en inhoud
- Woonoppervlakte
- 140 m²
- Perceeloppervlakte
- 363 m²
- Inhoud
- 450 m³
Bouw
- Type woning
- Huis
- Soort woning
- 2-onder-1-kapwoning, Eengezinswoning
- Soort bouw
- Bestaande bouw
- Bouwjaar
- 1937
- Ligging
- In een woonwijk
Indeling
- Aantal kamers
- 4
- Aantal slaapkamers
- 3
- Aantal badkamers
- 1
- Aantal woonlagen
- 3
- Voorzieningen
-
- Bad
- Douche
- Toilet
Buitenruimte
- Balkon
- Aanwezig
- Tuin
- Aanwezig (135 m²)
- Dakterras
- Niet aanwezig
Energie
- Isolatie
- Dubbele beglazing, Dakisolatie
- Energielabel
- D
Bergruimte
- Schuur/Berging
- Aanwezig
Parkeergelegenheid
- Aanwezig
- Ja
- Soort parkeergelegenheid
- Op eigen terrein
Garage
- Aanwezig
- Nee
Huurvoorwaarden
- Roken toegestaan
- Nee
- Huisdieren toegestaan
- Ja