Woning verhuren

Contact met de makelaar

Deze woning is gevonden buiten ons eigen netwerk. Met de knop hieronder kom je direct bij de aanbieder terecht.

Nieuw

Te huur: Appartement Sint Philipsland 45 in Amstelveen

Bekijk kaart
1181 JH (Vredeveldbuurt)
€ 2.650 per maand
  • 80 m²
  • 3 kamers
  • Gestoffeerd of gemeubileerd

Beschrijving

Sint Philipsland/Amstelveen (ca. 80 m2) €2650,- excl. G/W/E
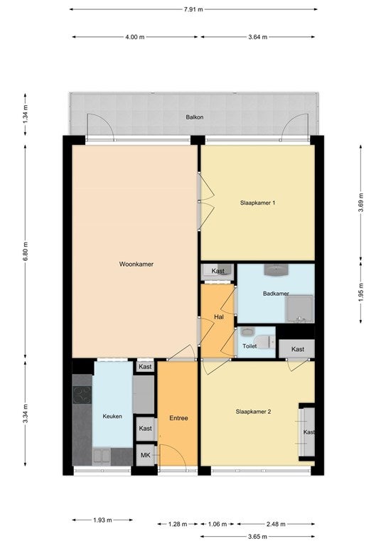
Dit ruime appartement is gelegen in een rustige wijk in Amstelveen en op loopafstand van diverse voorzieningen. Via de beveiligde gezamenlijke entree is de hal met trappenhuis en lift te bereiken. Het appartement is gelegen op de tweede verdieping.

De ruime woonkamer biedt toegang tot het grote balkon met zonwering. Het balkon is op het westen gelegen en biedt uitzicht op de groene omgeving. De ruime keuken is van alle gemakken voorzien zoals een koelkast, vriezer, vaatwasser en oven/magnetron. De ruime ouderslaapkamer is voorzien van een tweepersoonsbed en een ruime kledingkast. De badkamer is voorzien van een wastafelmeubel, bad, douchecabine, wasmachine en droger. De tweede slaapkamer beschikt over een eenpersoonsbed, kledingkast en een bureau.

De woning ligt centraal gelegen met snelle toegang tot uitvalswegen naar bijvoorbeeld Amsterdam en Schiphol. In korte tijd is de Zuid-As en het centrum van Amsterdam met de fiets te bereiken. De vernieuwde tramlijn (Amstelveenlijn, voormalig tram 5 en 51) ligt op minder dan vijf minuten loopafstand. In de nabije omgeving zijn veel scholen (waaronder de Internationale school) en een diversiteit aan sportverenigingen. Voor de dagelijkse boodschappen zijn er diverse supermarkten, restaurants en winkels in de buurt. Voor de uitgebreide boodschappen zijn de winkelcentra Het Stadshart in Amstelveen of Het Groot Gelderlandplein in Amsterdam Buitenveldert in 5-7 minuten bereikbaar. Het Amsterdamse bos en het Amstelpark bieden veel recreatiemogelijkheden en zijn binnen 10 minuten met de fiets of auto te bereiken.

Overdracht

Huurprijs
€ 2.650 per maand
Aangeboden sinds
15-10-2025
Status
Te huur
Beschikbaar
Per direct
Borg
€ 5.300
Interieur
Gestoffeerd of gemeubileerd
Onderhoudsstaat
Goed

Oppervlakte en inhoud

Woonoppervlakte
80 m²
Inhoud
208 m³

Bouw

Type woning
Appartement
Soort woning
Portiekflat, Appartement
Soort bouw
Bestaande bouw
Bouwjaar
1965
Ligging
  • Aan een park
  • In het centrum
  • In een woonwijk
  • In bosrijke omgeving

Indeling

Aantal kamers
3
Aantal badkamers
1
Aantal woonlagen
1
Voorzieningen
  • Bad
  • Kabel TV
  • Lift
  • Internetaansluiting
  • Buitenzonwering
  • Douche
  • Toilet

Buitenruimte

Balkon
Niet aanwezig
Dakterras
Niet aanwezig

Energie

Isolatie
Dubbele beglazing
Verwarming
Blokverwarming
Warm water
Centrale verwarming
Energielabel
B

Bergruimte

Schuur/Berging
Aanwezig

Parkeergelegenheid

Aanwezig
Ja
Soort parkeergelegenheid
Openbaar
Meld een probleem met deze woning
Contact met de makelaar Bel