Woning verhuren

Contact met de makelaar

Deze woning is gevonden buiten ons eigen netwerk. Met de knop hieronder kom je direct bij de aanbieder terecht.

Nieuw

Te huur: Appartement Runstraat 6 2 in Amsterdam

Bekijk kaart
1016 GK (Grachtengordel-West)
€ 3.000 per maand
  • 75 m²
  • 4 kamers
  • Gemeubileerd

Beschrijving

Runstraat 6-2, Amsterdam – Dubbel bovenhuis met daarin twee zelfstandige woningen in het hart van de Negen Straatjes, het appartement is perfect voor woningdelers.

In één van de meest geliefde straten van Amsterdam, midden in de sfeervolle Negen Straatjes, ligt dit charmante dubbel bovenhuis aan de Runstraat 6-2. Verdeeld over de tweede en derde verdieping biedt deze woning een unieke indeling met twee slaapkamers, twee badkamers en twee keukens – ideaal voor woningdelers of een bedrijf dat voor personeel een woning zoekt.

Indeling:

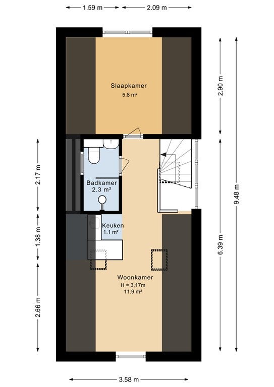
Tweede verdieping:
Via het trappenhuis bereik je de entree van het appartement. Op deze verdieping bevindt zich een lichte woonkamer met grote ramen en een open keuken voorzien van moderne inbouwapparatuur. Aan de achterzijde ligt een slaapkamer met aangrenzende badkamer (met douche en wastafel). Daarnaast is er een apart toilet in de hal.

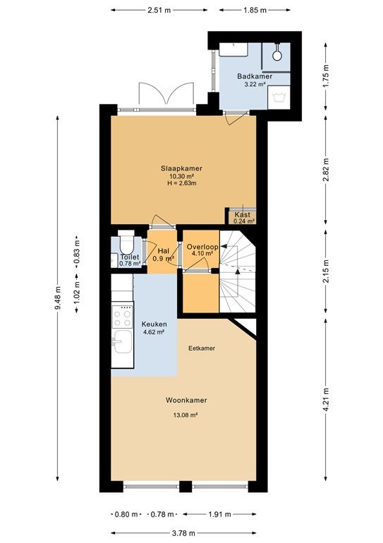
Derde verdieping:
Via de trap in de hal bereik je de bovenste verdieping. Hier vind je opnieuw een gezellige woonkamer met een open keukentje, een badkamer met douche en toilet, en een slaapkamer aan de achterzijde. Dankzij deze slimme indeling kunnen beide verdiepingen als zelfstandige woonruimtes functioneren – perfect voor twee bewoners die samen willen wonen maar toch hun eigen plek willen behouden.

Bijzonderheden:

  • Dubbel bovenhuis verdeeld over twee verdiepingen
  • 2 slaapkamers
  • 2 badkamers met douche
  • 2 toiletten
  • 2 keukens (waarvan één met inbouwapparatuur)

Ideaal voor woningdelers

Gelegen in de populaire Negen Straatjes, midden in de Amsterdamse grachtengordel

CONDITIES:

  • Ideaal voor woningdelers. Helaas is het appartement niet geschikt voor partijen die met garantstellers willen huren.
  • Geen studenten
  • Maximaal 2 bewoners!
  • Per direct beschikbaar

Huurprijs: € 3.000 per maand, exclusief gebruikslasten

Omgeving:
De Runstraat maakt deel uit van de beroemde Negen Straatjes – een charmant stukje Amsterdam vol unieke winkels, gezellige cafés en uitstekende restaurants. Alles wat de stad te bieden heeft ligt op loopafstand: de grachten, het Leidseplein, de Dam en tal van culturele hotspots.

Overdracht

Huurprijs
€ 3.000 per maand
  • Inclusief: Servicekosten
Aangeboden sinds
27-11-2025
Status
Te huur
Beschikbaar
In overleg
Borg
€ 6.000
Interieur
Gemeubileerd
Onderhoudsstaat
Goed

Oppervlakte en inhoud

Woonoppervlakte
75 m²
Inhoud
228 m³

Bouw

Type woning
Appartement
Soort woning
Bovenwoning, Dubbel bovenhuis
Soort bouw
Bestaande bouw
Bouwjaar
1937
Ligging
In het centrum

Indeling

Aantal kamers
4
Aantal slaapkamers
2
Aantal badkamers
2
Aantal woonlagen
2
Voorzieningen
  • Douche
  • Toilet

Buitenruimte

Balkon
Niet aanwezig
Dakterras
Niet aanwezig

Energie

Isolatie
Gedeeltelijk dubbele beglazing, Dakisolatie
Verwarming
CV-ketel
Warm water
CV-ketel
Energielabel
C

Parkeergelegenheid

Aanwezig
Ja
Soort parkeergelegenheid
Betaald
Meld een probleem met deze woning