Woning verhuren

Contact met de makelaar

Deze woning is gevonden buiten ons eigen netwerk. Met de knop hieronder kom je direct bij de aanbieder terecht.

Transparante huurprijs

De makelaar, die deze woning aanbiedt, heeft een gedetailleerde opbouw van de huurprijs gegeven. Hierdoor is inzichtelijk wat de totale huurprijs is (inclusief bijkomende kosten zoals elektriciteit, internet of servicekosten), zodat jij weet waar je aan toe bent. Als een makelaar de totale huurprijs invult, noemen wij dit een transparante huurprijs.

Wij doen er alles aan om jou duidelijkheid te geven over de te betalen huurprijs. Heb je toch twijfels of zie je een andere huurprijs op de website van de makelaar? Laat het ons weten.

Meer informatie
Nieuw

Te huur: Appartement Ceintuurbaan in Amsterdam

Bekijk kaart
1072 GA (Oude Pijp)
Kale huurpijs: € 2.475 per maand
  • 60 m²
  • 3 kamers
  • Gestoffeerd

Beschrijving

Moderne
[bemeubileerd]
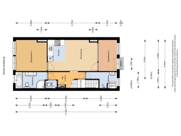
twee-slaapkamer van 60 m² met 2 balkons, op 250 meter loopafstand van het Sarphatipark. Het appartement heeft twee slaapkamers (één kleine slaapkamer) die beiden toegang hebben tot een balkon, twee moderne badkamers, een aparte toiletruimte en een ruime woonkamer en keuken. De Ceintuurbaan is zo'n straat waar de energie van Amsterdam perfect in balans lijkt, levendig maar leefbaar. De straat loopt door De Pijp en is bezaaid met charmante cafés, authentieke eetgelegenheden en speciaalzaken die de wijk zijn kenmerkende, lokale karakter geven. Bewoners genieten van de nabijheid van de Albert Cuyp Markt, Sarphatipark en de Amstel, terwijl ze toch snelle tram- en metroverbindingen naar de rest van de stad hebben. Het appartement is beschikbaar vanaf 1 december 2025. De bruto inkomenseis voor dit appartement is 105 K. Studenten zijn toegestaan. Huisdieren zijn niet toegestaan.

WOONKAMER EN KEUKEN

  • Houten vloer
  • Centrale verwarming
  • Plafondverlichting
  • Zonwering
  • Keuken met lades en kasten
  • Geïntegreerde 4-pits gasfornuis
  • Geïntegreerde afzuigkap
  • Geïntegreerde oven
  • Geïntegreerde vaatwasser
  • Geïntegreerde koelkast en vriezer

SLAAPKAMER ÉÉN [hoofdslaapkamer]

  • Houten vloer
  • Centrale verwarming
  • Plafondverlichting
  • Black-out gordijnen
  • Toegang tot balkon

SLAAPKAMER TWEE [kleine slaapkamer]

  • Houten vloer
  • Centrale verwarming
  • Plafondverlichting
  • Zonwering
  • Toegang tot Franse balkon

BADKAMER ÉÉN

  • Inloopdouche
  • Tegelvloeren en -wanden
  • Badkamersink met spiegel
  • Wasmachine
  • Drogen

BADKAMER TWEE

  • Badkuip
  • Inloopdouche
  • Tegelvloeren en -wanden
  • Dubbele badkamersink met spiegel
  • Handdoekverwarmers
  • Toilet

TOILET

  • Wasbak
  • Dual flush toilet

HUURVOORWAARDEN

Waarborgsom: 2 maanden huur
Nutsbedrijven: uitgesloten
Contract: 2 jaar [type B]
Beschikbaar: 01/12/2025
Registratie: max. 2 personen
Studenten: toegestaan met garantstellers
Huisdieren: niet toegestaan

Aansprakelijkheidsclausule
Door gebruik te maken van ons platform erkennen en accepteren gebruikers dat Hausing niet aansprakelijk is voor directe, indirecte, incidentele of gevolgschade die voortvloeit uit het vertrouwen op de informatie die is verstrekt in woningvermeldingen. Hoewel we ons inspannen om te zorgen dat alle woningdetails up-to-date en nauwkeurig zijn, garanderen we niet de geldigheid van enige beschrijvingen of andere gerelateerde informatie. Alle woningvermeldingen worden aangeleverd door vastgoedbezitters, vastgoedbeheerders en andere externe bronnen, en Hausing verifieert niet onafhankelijk al hun beweringen. Daarom wijst Hausing alle wettelijke aansprakelijkheid af die voortvloeit uit fouten, omissies of verkeerde voorstellingen in de geadverteerde informatie.

Overdracht

Kale huurprijs
€ 2.475 per maand
Aangeboden sinds
10-11-2025
Status
Te huur
Beschikbaar
Per direct
Huurovereenkomst
Tijdelijke verhuur
Looptijd
Maximaal 24 maanden
Borg
€ 4.950
Interieur
Gestoffeerd
Onderhoudsstaat
Goed

Prijsopbouw

Kale huurprijs
€ 2.475
Stoffering
€ 25
Totale huurprijs
€ 2.500

Nog zelf regelen: gas, water, elektriciteit, internet, televisie en meubels

Oppervlakte en inhoud

Woonoppervlakte
60 m²
Inhoud
160 m³

Bouw

Type woning
Appartement
Soort woning
Bovenwoning, Appartement
Soort bouw
Bestaande bouw
Bouwjaar
1938
Ligging
In het centrum

Indeling

Aantal kamers
3
Aantal slaapkamers
2
Aantal badkamers
2
Aantal woonlagen
1
Voorzieningen
  • Bad
  • Douche

Buitenruimte

Balkon
Aanwezig
Tuin
Niet aanwezig
Dakterras
Niet aanwezig

Energie

Energielabel
A

Bergruimte

Schuur/Berging
Niet aanwezig

Parkeergelegenheid

Aanwezig
Nee

Garage

Aanwezig
Nee

Huurvoorwaarden

Roken toegestaan
Nee
Huisdieren toegestaan
Nee
Meld een probleem met deze woning
Contact met de makelaar Bel