Woning verhuren

Contact met de makelaar

Deze woning is gevonden buiten ons eigen netwerk. Met de knop hieronder kom je direct bij de aanbieder terecht.

Nieuw

Te huur: Appartement Molenstraat 80 in Best

Bekijk kaart
5683 BH (Centrum)
€ 933 per maand
  • 64 m²
  • 3 kamers
  • 2019

Beschrijving

TE HUUR: Molenstraat 80 Best
Huurprijs: €932,93 excl. €75,- servicekosten
Beschikbaar per 01-03-2026

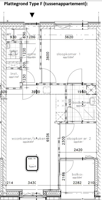
INDELING APPARTEMENT
Algemeen:
- Entree met bellentableau en brievenbussen;
- Trapopgang en lift naar verdiepingen.

Appartement (3e verdieping):
- Entree;
- Hal met voldoende ruimte voor een garderobe;
- Slaapkamer 1;
- Slaapkamer 2;
- (Deels) betegelde toiletruimte voorzien van zwevend toilet en fonteintje;
- (Deels) betegelde badkamer voorzien van inloopdouche met glazen douchewand en wastafel met spiegel;
- Technische ruimte voorzien van verwarmingsinstallatie, unit mechanische ventilatie en aansluitingen voor wasapparatuur;
- Woonkamer met open keuken voorzien van diverse inbouwapparatuur waaronder koelkast, vriezer, vaatwasser, inductiekookplaat en afzuigkap;
- Balkon.

AFWERKING
- De vloeren in de woning zijn niet voorzien van vloerafwerking en dient dus door huurder te worden aangebracht (met uitzondering van tegelwerk in de toiletruimte en badkamer);
- De wanden in de woning zijn voorzien scanbehang en muurverf in wit RAL 9010 (met uitzondering van tegelwerk in de toiletruimte en badkamer);
- De plafonds in de woning zijn voorzien van spuitpleisterwerk;
- De woning wordt verwarmd middels een warmtepomp (volledig gasloos).

Voor een betere beeldvorming van de woning en afwerking zijn diverse foto's van een vergelijkbare woning en een plattegrond aan de advertentie toegevoegd.
Let op: aan de foto's en plattegrond kunnen geen rechten worden ontleend.

HUURVOORWAARDEN
Om in aanmerking te komen voor deze huurwoning, worden door de verhuurder een aantal toewijzingscriteria gehanteerd:
- Uw bruto maandinkomen dient circa 3,5 keer de maandhuur te bedragen. Vakantiegeld en vaste toeslagen worden meegeteld;
- Het inkomen van uw partner wordt volledig meegeteld. Bij kandidaat huurders welke beide een AOW ontvangen, kunnen beide inkomens voor 100% worden meegeteld;
- U dient te beschikken over een arbeidscontract van minimaal één jaar. Nul (0)-uren-contracten kunnen niet worden meegeteld. Contracten via een detacheringsbureau/ uitzendbureau/ payroll organisatie, worden beoordeeld aan de hand van de voorwaarden.

Overige belangrijke informatie:
- Minimale huurperiode bedraagt 12 maanden;
- De servicekosten bedragen €75 per maand;
- Standaard waarborgsom bedraagt één maandhuur. Bij een arbeidscontract voor bepaalde tijd of huisdieren geldt een verhoogde waarborgsom van 2 maandhuren.

Overdracht

Huurprijs
€ 933 per maand
Aangeboden sinds
29-01-2026
Status
Te huur
Beschikbaar
Per 01-03-2026

Oppervlakte en inhoud

Woonoppervlakte
64 m²

Bouw

Type woning
Appartement
Soort woning
Galerijflat
Soort bouw
Bestaande bouw
Bouwjaar
2019

Indeling

Aantal kamers
3
Aantal slaapkamers
2
Aantal badkamers
1
Aantal woonlagen
1
Voorzieningen
  • Lift
  • Mechanische ventilatie

Buitenruimte

Balkon
Aanwezig
Tuin
Niet aanwezig
Dakterras
Niet aanwezig

Energie

Energielabel
A

Parkeergelegenheid

Aanwezig
Ja
Meld een probleem met deze woning