Woning verhuren

Contact met de makelaar

Deze woning is gevonden buiten ons eigen netwerk. Met de knop hieronder kom je direct bij de aanbieder terecht.

Nieuw

Te huur: Appartement Boterpotplein in Valkenswaard

Bekijk kaart
5554 CS (Centrum)
€ 1.445 per maand
  • 90 m²
  • 2 kamers
  • Gemeubileerd

Beschrijving

Prachtig volledig gemeubileerd appartement beschikbaar vanaf 1 november!

Dit gebouw bevindt zich midden in het bruisende centrum van Valkenswaard.

Het appartement is van zeer hoge kwaliteit met luxe meubels en afwerkingen.

De appartementen liggen op LOOPAFSTAND van alle winkels en openbaar vervoer.

Slechts 15 minuten rijden naar het stadscentrum van Eindhoven.

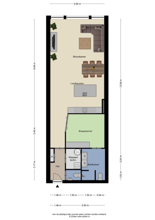
INDELING

De hoofdentree van de appartementen bevindt zich aan de achterzijde van het gebouw, waar je de deurbel, brievenbussen en het intercomsysteem vindt. Je kunt je fiets ook buiten parkeren.

Bij binnenkomst loop je via de gang naar de bergingen en de ingang van de appartementen.

Alle appartementen zijn voorzien van:

• Moderne zwarte keuken met combimagnetron/oven, koelkast, vriezer, 5-pits inductiekookplaat, afzuigkap;

• Privé wasmachine en droger;

• PVC-vloeren met houtlook, verduisterende gordijnen van textiel, spotverlichting door het hele appartement;

• Volledig gemeubileerd inclusief inventaris zoals servies, bestek, stofzuiger, strijkijzer, waterkoker etc.;

• Privéberging en fietsenstalling buiten (niet overdekt);

• Optioneel parkeren in beveiligde ondergrondse parkeergarage voor €100 per maand;

• Geen gas in het gebouw, verwarming via elektrische vloerverwarming.

HET APPARTEMENT

Bij binnenkomst in het appartement kom je in de hal met toegang tot de woonkamer en het toilet met fonteintje.

Het appartement heeft een open indeling met woonkamer en keuken in één ruimte.

De moderne woonruimte straalt luxe en comfort uit met nieuwe meubels en een grote flatscreen-tv. Heerlijk om na een drukke werkdag thuis te komen, te ontspannen en te genieten.

Je kookt in een gloednieuwe keuken op een 5-pits inductiekookplaat, bereidt je maaltijden op het kookeiland en ontvangt je gasten in stijl.

De ruime slaapkamer is gescheiden van de andere ruimtes door een glazen wand, wat zorgt voor veel lichtinval en een moderne uitstraling. De slaapkamer is voorzien van een tweepersoonsbed en een ensuite badkamer.

Extra informatie:

• Borgsom gelijk aan twee maanden huur

• Lange termijn huur

• Huurprijs is inclusief internet, tv, meubels, servicekosten

• Geen gas in het gebouw

• Huisdieren en roken zijn niet toegestaan in het gebouw

• Optioneel parkeren voor €100,00 per maand

• Let op: de meubels zoals weergegeven op de plattegrond zijn een indicatie van de werkelijkheid

Meer woninginformatie bekijken?

Log in of registreer gratis.

Overdracht

Huurprijs
€ 1.445 per maand
Aangeboden sinds
17-10-2025
Status
Te huur
Beschikbaar
Per 01-11-2025
Huurovereenkomst
Onbepaalde tijd
Looptijd
Minimaal 12 maanden
Borg
€ 2.890
Interieur
Gemeubileerd

Oppervlakte en inhoud

Woonoppervlakte
90 m²

Bouw

Type woning
Appartement
Soort woning
Benedenwoning
Soort bouw
Bestaande bouw
Bouwjaar
2009

Indeling

Aantal kamers
2
Aantal slaapkamers
1
Aantal badkamers
1
Voorzieningen
Toilet

Buitenruimte

Balkon
Niet aanwezig
Tuin
Niet aanwezig
Dakterras
Niet aanwezig

Energie

Energielabel
A

Bergruimte

Schuur/Berging
Niet aanwezig

Parkeergelegenheid

Aanwezig
Ja
Soort parkeergelegenheid
Garage

Garage

Aanwezig
Nee

Huurvoorwaarden

Roken toegestaan
Nee
Huisdieren toegestaan
Nee
Meld een probleem met deze woning
Contact met de makelaar