Contact met de makelaar

Deze woning is gevonden buiten ons eigen netwerk. Met de knop hieronder kom je direct bij de aanbieder terecht.

Nieuw

Riviersingel 45

Bekijk kaart
5931 SJ Tegelen (Maasveld I)
€ 345.000 k.k.
  • 104 m²
  • 4 kamers
  • 1995

Samenvatting

  • Deze woning wordt sinds 27 januari 2026 aangeboden door VeTeBe B.V;
  • De tussenwoning heeft een woonoppervlakte van 104 m² en beschikt over 4 kamers, waarvan 3 slaapkamers;
  • De woning is gebouwd In 1995 en ligt in de buurt Maasveld I in Tegelen.

Beschrijving

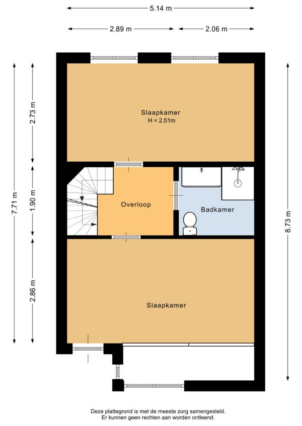
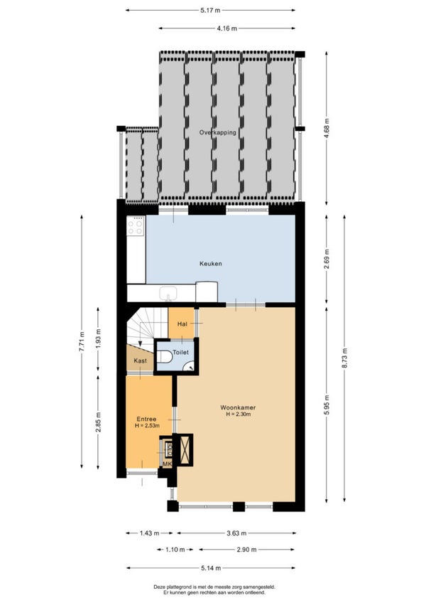
In een rustige woonwijk in Tegelen ligt deze charmante rijtjeswoning. De woning, met een woonoppervlakte van 104 m2, heeft een Frans balkon, zonnepanelen en veel daglicht, wat het perfect maakt voor starters en senioren. Bij binnenkomst in de hal vind je een meterkast en trapkast. De sfeervolle woonkamer is modern ingericht en biedt een elektrische sfeerhaard en openslaande deuren naar de half open keuken. Deze keuken is uitgerust met een inductiekookplaat, afzuigkap, vaatwasser en een ingebouwde koelkast. De knusse tuin biedt een terras, kunstgras en een houten schuur. Op de eerste verdieping zijn er 2 ruime slaapkamers en een moderne badkamer met inloopdouche. De zolder heeft een extra kamer die als derde slaapkamer kan dienen. Met energielabel B, dakisolatie en 8 zonnepanelen is de woning energiezuinig.

Overdracht

Vraagprijs
€ 345.000 k.k.
Aangeboden sinds
27-01-2026
Status
Beschikbaar
Beschikbaar
Per direct

Oppervlakte en inhoud

Woonoppervlakte
104 m²
Perceeloppervlakte
118 m²

Bouw

Type woning
Huis
Soort woning
Tussenwoning (rijtjeshuis), Eengezinswoning
Soort bouw
Bestaande bouw
Bouwjaar
1995

Indeling

Aantal kamers
4
Aantal slaapkamers
3
Aantal badkamers
1

Buitenruimte

Dakterras
Niet aanwezig

Energie

Energielabel
B
Meld een probleem met deze woning