Woning verhuren

Contact met de makelaar

Deze woning is gevonden buiten ons eigen netwerk. Met de knop hieronder kom je direct bij de aanbieder terecht.

Verhuurd onder voorbehoud

Te huur: Appartement Emmy Andriessestraat 306 in Amsterdam

Bekijk kaart
1087 ML (IJburg-Zuid)
€ 1.725 per maand
  • 111 m²
  • 3 kamers
  • 2009

Beschrijving

U HEEFT EEN OBJECTCODE NODIG ALS U ONS BELT. DE CODE IS: 8 6 5 2 9
Bezichtiging
Wij plannen alleen een bezichtiging wanneer u een Qii account heeft aangemaakt en uw gegevens via DigiD aan ons, ter inzage, heeft vrijgegeven (reageer via 'Neem contact op' voor de vervolgstappen). LET OP: Minimaal inkomen van € 82.800, -

Omschrijving
Een ruim 3 kamer appartement gelegen in Amsterdam Oost in de wijk IJburg

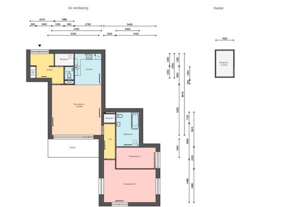
Indeling?
Gezamenlijke entree met trappenhuis. Hal met doorloop naar de slaapkamers, separaat toilet, badkamer, woonkamer met luxe open keuken. Externe berging.

Bijzonderheden
Beschikbaar ca. per eind januari
Bouwjaar 2009
Label A
Lift wel aanwezig
3e etage
2 slaapkamers
Loggia of balkon
Luxe keuken met inbouwapparatuur
Badkamer met douche en bad
Inpandig en externe berging
Appartement wordt ongemeubileerd verhuurd
Huurder dient zelf zorg te dragen voor het sauzen of behangen van de muren en wanden en het leggen van een vloerbedekking
Huurprijs per maand € 1.725, - (excl. servicekosten)
Servicekosten per maand € 34, - (incl. BTW)
Naamplaatje indien het een woning in een complex betreft (éénmalig) € 16,50
Huurder dient zelf gas en/of elektra en water aan te vragen

Inkomenseis
Kredietwaardig en voldoet aan inkomensnormen (48x de netto huur als bruto jaarinkomen);
Bij één inkomen dient het bruto jaarsalaris minimaal ca. 48 keer de maandhuur van de woning te zijn (bij deze woning van € 1.725, - huur per maand, is het bruto jaarsalaris dus minimaal € 82.800, -). Bij twee inkomens dienen de twee bruto jaarsalarissen samen minimaal 48 keer de maandhuur van de woning te zijn.
Waarborgsom van tweemaal de netto huur € 3.450, -

Huurperiode
Een huurovereenkomst voor ten minste één jaar en wordt daarna automatisch verlengd voor onbepaalde tijd;
Na de minimale huurperiode van één jaar bedraagt de opzegtermijn voor de huurder één maand;
De huurperiode kan op elke dag van de maand ingaan. Yvastgoed bepaalt de ingangsdatum van de huur.

Toewijzing
Maximaal twee volwassen personen op de huurovereenkomst;
Toetsing inkomen op alle contractanten, zegt één contractant op zal er opnieuw een toetsing worden gedaan, is het inkomen onvoldoende dienen alle contractanten op te zeggen;
Huurder dient stabiel, vast en toereikend inkomen uit werk te hebben;
Woning wordt niet verhuurd aan studenten;
Friends-contracten worden niet verstrekt;
Garantstelling (door bijvoorbeeld ouders) worden niet geaccepteerd;
De woning kan niet als pied-à-terre worden gehuurd;
Huurder dient zich op het adres in te schrijven bij de gemeente;
Huurders van Ymere die een sociale huurwoning achterlaten krijgen voorrang, met uitzondering van een tijdelijk contract;
Een creditcheck maakt onderdeel uit van onze toewijzingsprocedure, bij aanmelding verleent u hiervoor automatisch toestemming;

Parkeren (verplichte afname
Kosten voor de parkeerplaats zijn € 125, - exclusief servicekosten € 14, -

Overnames:
Vloer in gehele woning
Gordijnen in gehele woning
Stellingkast in bergingen
Regendouche

*Deze aanmelding is met zorg samengesteld, de informatie die wordt verstrekt is echter indicatief er kunnen geen rechten aan worden ontleend.

Overdracht

Huurprijs
€ 1.725 per maand
  • Exclusief: Servicekosten
Aangeboden sinds
13-11-2025
Status
Verhuurd onder voorbehoud
Beschikbaar
In overleg
Huurovereenkomst
Onbepaalde tijd
Onderhoudsstaat
Goed

Oppervlakte en inhoud

Woonoppervlakte
111 m²
Inhoud
279 m³

Bouw

Type woning
Appartement
Soort woning
Tussenverdieping
Soort bouw
Bestaande bouw
Bouwjaar
2009

Indeling

Aantal kamers
3
Aantal slaapkamers
2
Aantal woonlagen
1

Buitenruimte

Balkon
Niet aanwezig
Dakterras
Niet aanwezig

Energie

Energielabel
A

Parkeergelegenheid

Aanwezig
Nee

Garage

Aanwezig
Nee
Meld een probleem met deze woning