Woning verhuren

Contact met de makelaar

Deze woning is gevonden buiten ons eigen netwerk. Met de knop hieronder kom je direct bij de aanbieder terecht.

Nieuw

Te huur: Appartement Borneostraat in Amsterdam

Bekijk kaart
1094 CL (Indische Buurt-West)
€ 2.500 per maand
  • 57 m²
  • 4 kamers
  • Gemeubileerd

Beschrijving

Borneostraat 34D, een modern, gemeubileerd 2-slaapkamer appartement in de populaire oostkant van Amsterdam.

Locatie:
Dit comfortabele appartement is gelegen in de levendige Indische Buurt, een opkomend havengebied waar hippe eetgelegenheden zich bevinden in omgebouwde industriële ruimtes, en laat-19e eeuwse gebouwen restaurants, supermarkten en bakkerijen huisvesten. Je bent ook binnen 5 minuten fietsen naar het Flevopark, een populaire picknickplek met uitzicht op het Nieuwe Diepmeer.

De Borneostraat ligt om de hoek van de Javastraat, die bekend staat om zijn winkels, bars en restaurants. Ook binnen 10 minuten lopen vind je de beroemde Dappermarkt en het is nog eens 5 minuten om het Oosterpark te bereiken. Als je liever op grotere schaal winkelt, is het Oostpoort winkelcentrum 5 minuten fietsen.

Rechtover de straat van het appartement loopt de tramlijn. Station Muiderpoort is 9 minuten lopen.

De geschatte wachttijd voor een parkeervergunning is momenteel 4 maanden. Als je een elektrisch voertuig hebt, kan je aanvraag prioriteit krijgen als je voldoet aan de voorwaarden voor een milieuvriendelijke parkeervergunning.

Indeling:
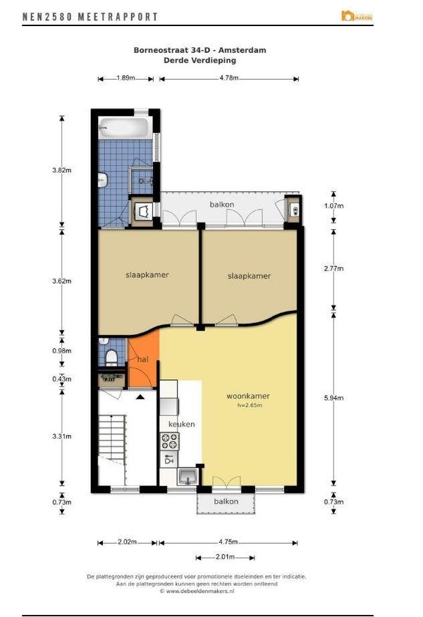
Het appartement bevindt zich op de derde verdieping, bereikbaar via de trap. Het heeft een energielabel A vanwege de recent geïnstalleerde hybride warmtepomp. Er ligt een prachtige eikenhouten vloer door het hele appartement.

De lichte woonkamer heeft een klein balkon met uitzicht op het levendige plein voor het huis. De open keuken beschikt over alle noodzakelijke apparatuur, zoals een combi-oven-magnetron, een 4-pits gasfornuis, vaatwasser, ingebouwde koelkast met een klein vriesvak.

Beide slaapkamers zijn verbonden met de woonkamer en hebben beide toegang tot het zonnige, op het zuiden gelegen balkon aan de achterkant. De tweede slaapkamer bevat een grote kast voor voldoende opslagruimte. De en-suite badkamer is ruim en licht, met een aparte douche en jacuzzi-badkuip. Er is een wasmachine en droger in een aparte kast in de badkamer.

Al met al is dit een comfortabel en huiselijk appartement waar je je snel thuis zult voelen.

Voorwaarden:

  • Beschikbaar: 26/01/2026
  • Huurprijs: €2500 exclusief utiliteiten
  • Model A (minimale periode van bij voorkeur 24 maanden)
  • Borg: 2 maanden kale huur
  • Energielabel A
  • Gedeeltelijk gemeubileerd
  • Het is het beste geschikt voor een werkende professional alleen of een stel, vanwege de badkamer die en suite is bij de hoofd slaapkamer.
  • Huisdieren zijn niet toegestaan.

DISCLAIMER
Deze informatie is door ons met de nodige zorg samengesteld. Van onze kant wordt echter geen aansprakelijkheid aanvaard voor enige onvolledigheid, onnauwkeurigheid of anderszins, of de gevolgen ervan. Alle afmetingen en dimensies zijn indicatief.

Overdracht

Huurprijs
€ 2.500 per maand
Aangeboden sinds
19-01-2026
Status
Te huur
Beschikbaar
Per 26-01-2026
Huurovereenkomst
Onbepaalde tijd
Looptijd
Minimaal 12 maanden
Borg
€ 4.950
Interieur
Gemeubileerd
Onderhoudsstaat
Redelijk

Oppervlakte en inhoud

Woonoppervlakte
57 m²
Inhoud
142 m³

Bouw

Type woning
Appartement
Soort woning
Bovenwoning
Soort bouw
Bestaande bouw
Bouwjaar
1912

Indeling

Aantal kamers
4
Aantal slaapkamers
2
Aantal badkamers
1
Aantal woonlagen
1
Verdieping
4
Voorzieningen
  • Jacuzzi
  • Douche

Buitenruimte

Balkon
Aanwezig
Tuin
Niet aanwezig
Dakterras
Niet aanwezig

Energie

Energielabel
A

Bergruimte

Schuur/Berging
Niet aanwezig

Parkeergelegenheid

Aanwezig
Nee

Garage

Aanwezig
Nee

Huurvoorwaarden

Roken toegestaan
Nee
Huisdieren toegestaan
Nee
Meld een probleem met deze woning