Woning verhuren

Contact met de makelaar

Deze woning is gevonden buiten ons eigen netwerk. Met de knop hieronder kom je direct bij de aanbieder terecht.

Nieuw

Te huur: Appartement Bernard Loderstraat 131 in Amsterdam

Bekijk kaart
1063 PG (Slotermeer-West)
€ 1.480 per maand
  • 81 m²
  • 3 kamers
  • 2009

Beschrijving

U HEEFT EEN OBJECTCODE NODIG ALS U ONS BELT. DE CODE IS: 8 7 0 4 8
Bezichtiging
Wij plannen alleen een bezichtiging wanneer u een Qii account heeft aangemaakt en uw gegevens via DigiD aan ons, ter inzage, heeft vrijgegeven (reageer via 'Neem contact op' voor de vervolgstappen). LET OP: Minimaal inkomen van € 71.040,-

Parkeren (verplichte afname)
Kosten voor de parkeerplaats zijn € 60,- exclusief servicekosten € 8,50

Omschrijving
Een ruim 3 kamer appartement gelegen in Amsterdam in de wijk West/Slotermeer.

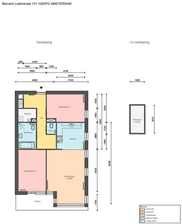
Indeling
Gezamenlijke entree met trappenhuis. Hal met doorloop naar de slaapkamers, separaat toilet, badkamer met douche en bad, woonkamer met luxe open keuken. Interne en externe berging.

Bijzonderheden
-Beschikbaar ca. per direct
-Bouwjaar 2009
-Label A
-Lift aanwezig
-1e etage
-2 slaapkamers
-Balkon
-Luxe keuken met inbouwapparatuur
-Badkamer met douche en bad
-Inpandige en externe berging
-Appartement wordt ongemeubileerd verhuurd
-Huurder dient zelf zorg te dragen voor het sauzen of behangen van de muren en wanden en het leggen van een vloerbedekking
-Huurprijs per maand € 1.480,- (excl. servicekosten )
-Servicekosten per maand € 40,91 (incl. BTW)
-Naamplaatje indien het een woning in een complex betreft (éénmalig) € 16,50
-Huurder dient zelf gas en/of elektra en water aan te vragen

Inkomenseis
-Kredietwaardig en voldoet aan inkomensnormen (48x de netto huur als bruto jaarinkomen);
-Bij één inkomen dient het bruto jaarsalaris minimaal ca. 48 keer de maandhuur van de woning te zijn (bij deze woning van € 1.480,- huur per maand, is het bruto jaarsalaris dus minimaal € 71.040,-). Bij twee inkomens dienen de twee bruto jaarsalarissen samen minimaal 48 keer de maandhuur van de woning te zijn.
-Waarborgsom van tweemaal de netto huur € 2.960,-

Huurperiode
-Een huurovereenkomst voor ten minste één jaar en wordt daarna automatisch verlengd voor onbepaalde tijd;
-Na de minimale huurperiode van één jaar bedraagt de opzegtermijn voor de huurder één maand;
-De huurperiode kan op elke dag van de maand ingaan. Yvastgoed bepaalt de ingangsdatum van de huur.

Toewijzing
-Maximaal twee volwassen personen op de huurovereenkomst;
-Toetsing inkomen op alle contractanten, zegt één contractant op zal er opnieuw een toetsing worden gedaan, is het inkomen onvoldoende dienen alle contractanten op te zeggen;
-Huurder dient stabiel, vast en toereikend inkomen uit werk te hebben;
-Woning wordt niet verhuurd aan studenten;
-Friends-contracten worden niet verstrekt;
-Garantstelling (door bijvoorbeeld ouders) worden niet geaccepteerd;
-De woning kan niet als pied-à-terre worden gehuurd;
-Huurder dient zich op het adres in te schrijven bij de gemeente;
-Huurders van Ymere die een sociale huurwoning achterlaten krijgen voorrang, met uitzondering van een tijdelijk contract;
-Een creditcheck maakt onderdeel uit van onze toewijzingsprocedure, bij aanmelding verleent u hiervoor automatisch toestemming;

Overnames
Diverse raambekleding en wastafelmeubel

*Deze aanmelding is met zorg samengesteld, de informatie die wordt verstrekt is echter indicatief er kunnen geen rechten aan worden ontleend.

Overdracht

Huurprijs
€ 1.480 per maand
  • Exclusief: Servicekosten
Aangeboden sinds
16-12-2025
Status
Te huur
Beschikbaar
Per direct
Huurovereenkomst
Onbepaalde tijd
Borg
€ 2.960
Onderhoudsstaat
Goed

Oppervlakte en inhoud

Woonoppervlakte
81 m²
Inhoud
204 m³

Bouw

Type woning
Appartement
Soort woning
Tussenverdieping
Soort bouw
Bestaande bouw
Bouwjaar
2009

Indeling

Aantal kamers
3
Aantal slaapkamers
2
Aantal woonlagen
1

Buitenruimte

Balkon
Niet aanwezig
Dakterras
Niet aanwezig

Energie

Energielabel
A

Parkeergelegenheid

Aanwezig
Nee

Garage

Aanwezig
Nee
Meld een probleem met deze woning