Woning verhuren

Contact met de makelaar

Deze woning is gevonden buiten ons eigen netwerk. Met de knop hieronder kom je direct bij de aanbieder terecht.

Te huur: Appartement Rijnlandlaan 271 in Amsterdam

Bekijk kaart
1062 MX (Westlandgracht)
€ 3.325 per maand
  • 91 m²
  • 4 kamers
  • Gestoffeerd

Beschrijving

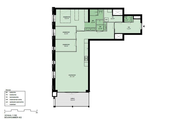
INTRODUCTIE: Wonen in pure luxe met veel ruimte, omringd door groen, met veel voorzieningen nabij, maar toch binnenin de mooie stad Amsterdam. Dat kan hier allemaal in het net opgeleverde wooncomplex Cornelis. Een prachtig wooncomplex dat is voortgekomen uit de wens om ruimte, groen en duurzaamheid te combineren met wonen in de grote stad. Gezinnen hoeven de stad niet meer uit te trekken voor meer ruimte en comfort. Grootstedelijke beleving sluit bij het complex Cornelis naadloos aan op duurzaamheid en groen, met een geweldige woonbeleving als resultaat. Het gebouw is de WINNAAR geworden bij de verkiezing van beste woningbouwproject van Amsterdam 2025! DE OMGEVING: Het complex is gelegen in de hippe Schipluidenbuurt, direct op de grens tussen Amsterdam Zuid en Nieuw West. Het is een plek met veel gezellige bars en restaurants in de buurt. Ook het trein- en metrostation Lelylaan, het Rembrandtpark en het Vondelpark liggen op loopafstand. Recent zijn er aan de overkant twee supermarkten en een sportschool geopend. HET PAND: Er is bij de ontwikkeling van dit pand is bewust gekeken naar de wensen van de toekomstige bewoners. Deze woningen hebben allemaal een zeer hoog afwerkingsniveau en bieden allemaal lekker veel leefruimte. Daarnaast is het het groene woonaspect overal terug te vinden, zowel via de materiaalkeuzes als bij de gemeenschappelijke buitenruimtes. Alle verdiepingen zijn per lift bereikbaar, maar het pand is dusdanig ingericht dat er ook echt interactie is tussen de bewoners onderling. Er is zelfs een gemeenschappelijke huiskamer beschikbaar voor de bewoners! Onder het gebouw bevinden zich de ruime fietsenberging en de garageplekken. Er zijn enkele verschillende type woningen beschikbaar in het pand. Dit appartement heeft een buitengewoon gewilde indeling en de afwerking is van een zeer hoog niveau. Je voelt je er dan ook direct in thuis! HET APPARTEMENT: Dit appartement is gelegen op de 4e verdieping en is bereikbaar per lift en per trap. Het energielabel van dit appartement is A+++. Het uitzicht naar buiten is spectaculair. Het is een zeer licht appartement met vooral veel ruimte. De afwerking is tot in detail uitgewerkt en heeft geleid tot dit schitterende appartement. BINNENIN: Bij binnenkomst via de lift of het trappenhuis kom je aan bij het appartement. De ruimtelijke en lichte indeling van dit appartement valt direct in het oog. De riante woonkamer is gelegen aan de zonnige zuidzijde en heeft aangrenzend een fijn zonnig terras van bijna 9 m2. De woonkamer heeft zowel aan de achterzijde als aan de zijkant ramen, zodat er een geweldig lichte ruimte is ontstaan. De strakke moderne half open keuken is van het Deense design merk KVIK, en is uiteraard voorzien van luxe inbouwapparatuur. Naast de woonkamer bevinden zich twee slaapkamers. Daarnaast is er de riante ouderslaapkamer met eigen badkamer. Deze badkamer is voorzien van een fraaie inloopdouche, een toilet en een wasmeubel. Het appartement beschikt over een tweede badkamer met luxe inloopdouche en een dubbele wastafel. Op de hal ligt er ook een apart toilet. En er is een ruime berging waar ook de wasmachineaansluiting is te vinden. Door het gehele appartement ligt een fraaie visgraat vloer een met rustieke hout uitstraling. Alle vloeren binnen het appartement zijn voorzien van vloerverwarming. ENKELE KENMERKEN: - Huurprijs: € 3.325,- p.m. excl. warmte, elektra, water, kabel en internet - Servicekosten: € 100,- p.m., onder andere voor gebruik en schoonmaak gemeenschappelijke ruimten, lift en glasbewassing - Waarborgsom: 2 maanden huur - Energielabel A+++ - Oppervlakte ca. 93m2 (gemeten conform NEN2580) - Beschikbaar per direct - Huurcontract voor onbepaalde tijd, model A. De minimale huurperiode voor het appartement bedraagt 1 jaar - Jaarlijkse huurprijsindexatie conform de wettelijke CPI. - 3 Slaapkamers en 2 badkamers - Warme en luxueuze afwerking - Gestoffeerde verhuur - Leuk en zonnig privéterras op het zuiden - Een parkeerplek in de ondergelegen parkeergarage is in overleg en tegen meerprijs te huren - Volledig nieuwe oplevering in een toonaangevend wooncomplex. DISCLAIMER: Aan de plattegronden kunnen geen rechten worden ontleend.

Overdracht

Huurprijs
€ 3.325 per maand
Aangeboden sinds
15-12-2025
Status
Te huur
Beschikbaar
Per direct
Borg
€ 6.650
Interieur
Gestoffeerd
Onderhoudsstaat
Zeer goed

Oppervlakte en inhoud

Woonoppervlakte
91 m²
Inhoud
277 m³

Bouw

Type woning
Appartement
Soort woning
Galerijflat, Appartement
Soort bouw
Bestaande bouw
Bouwjaar
2025

Indeling

Aantal kamers
4
Aantal slaapkamers
3
Aantal badkamers
2
Aantal woonlagen
1
Voorzieningen
  • Alarm
  • Lift
  • Glasvezelaansluiting
  • Douche
  • Zonnecollectoren
  • Bergruimte
  • Toilet

Buitenruimte

Balkon
Aanwezig
Dakterras
Niet aanwezig

Energie

Isolatie
Volledig geïsoleerd
Verwarming
Stadsverwarming
Warm water
Stadsverwarming
Energielabel
A+++

Parkeergelegenheid

Aanwezig
Ja
Soort parkeergelegenheid
Garage

Garage

Aanwezig
Ja
Meld een probleem met deze woning