Woning verhuren

Contact met de makelaar

Deze woning is gevonden buiten ons eigen netwerk. Met de knop hieronder kom je direct bij de aanbieder terecht.

Te huur: Huis Brantwijk in Amstelveen

Bekijk kaart
1181 MT (Elsrijk Oost)
€ 5.500 per maand
  • 176 m²
  • 7 kamers
  • Gestoffeerd

Beschrijving

De Brantwijk ligt in een gewilde woonwijk, genaamd Elsrijk in Amstelveen, bekend om zijn groene, gezinsvriendelijke sfeer. Het is een rustige en veilige gemeenschap met een mix van jonge gezinnen en langjarige bewoners. De buurt is dichtbij uitstekende scholen, waaronder internationale instellingen, en is omgeven door parken en speeltuinen. Lokale voorzieningen zoals supermarkten, winkels en restaurants zijn op korte loop- of fietsafstand. Het levendige stadscentrum van Amstelveen is gemakkelijk bereikbaar en biedt een breed scala aan culturele en recreatieve activiteiten. De locatie biedt een vredige suburban sfeer terwijl het goed verbonden is met de drukte van Amsterdam.

Details:
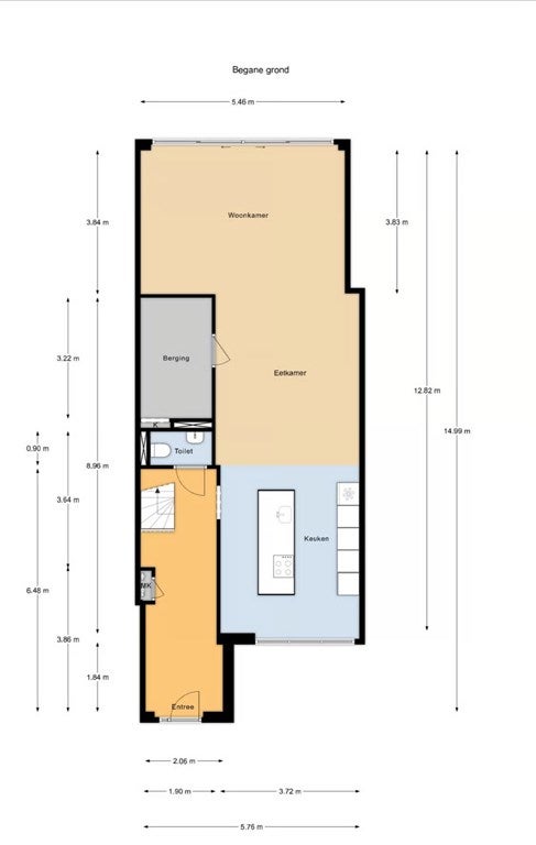
• Oppervlakte van het pand: 176 m2
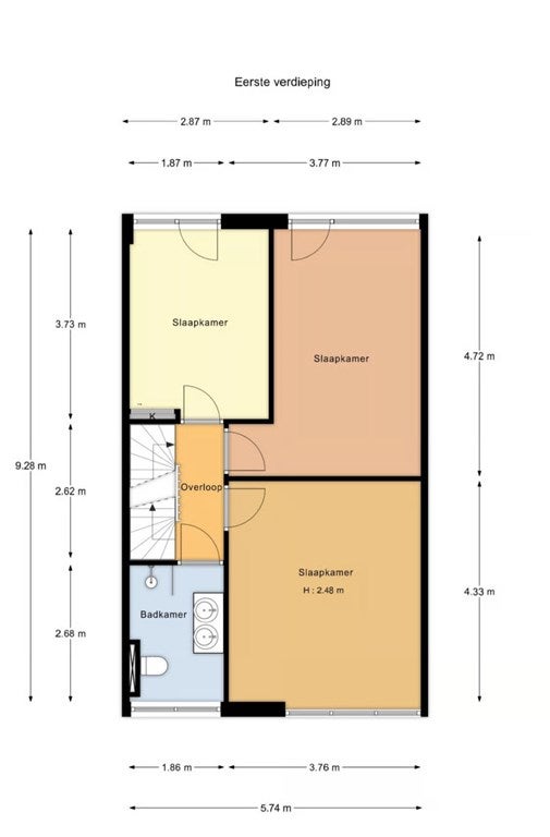
• Aantal slaapkamers: 6
• Aantal badkamers: 2
• Type huis: Eengezinswoning
• Bouwjaar van het huis: 1959 (maar volledig gerenoveerd in 2025)
• Interieurdecoratie: Semi-gemeubileerd
• Vloerbedekking: PVC
• Kwaliteit van het openbaar vervoer: Goed

Ook in dit huurhuis:
• Parkeermogelijkheid: vergunning (direct beschikbaar)
• Separaat douche
• Badkuip
• Separaat toilet
• Opslag: schuur
• Begane grond, 1e en 2e verdieping
• Vloerverwarming
• Energielabel: A
• Tuin (op het zuiden-westen)

Voorwaarden:
• Huisdieren toegestaan
• Geen garantstellers, de huurder moet zelf aan de inkomenseis voldoen
• Roken niet toegestaan
• Huurovereenkomsten onder voorbehoud van goedkeuring door de eigenaar
• Metingen conformeren niet aan NEN 2580
• Model C-contract
• De huurder kan na 1 jaar opzeggen
• De verhuurder kan na 3 jaar opzeggen (kan langer zijn indien echt noodzakelijk)
• Het contract kan worden verlengd indien wederzijds afgesproken

De huurprijs van dit huis is exclusief Gas/Electriciteit/Water, TV/Internet en lokale belastingen.

Overdracht

Huurprijs
€ 5.500 per maand
Aangeboden sinds
29-11-2025
Status
Te huur
Beschikbaar
Per direct
Borg
€ 11.000
Interieur
Gestoffeerd
Onderhoudsstaat
Zeer goed

Oppervlakte en inhoud

Woonoppervlakte
176 m²
Perceeloppervlakte
176 m²
Inhoud
450 m³

Bouw

Type woning
Huis
Soort woning
Tussenwoning (rijtjeshuis), Eengezinswoning
Soort bouw
Bestaande bouw
Bouwjaar
1959

Indeling

Aantal kamers
7
Aantal slaapkamers
6
Aantal badkamers
2
Aantal woonlagen
1
Voorzieningen
  • Bad
  • Douche
  • Toilet

Buitenruimte

Balkon
Niet aanwezig
Tuin
Aanwezig (1 m²)
Tuinbeschrijving
achtertuin
Achterom
Niet aanwezig
Dakterras
Niet aanwezig

Energie

Energielabel
A

Parkeergelegenheid

Aanwezig
Ja
Soort parkeergelegenheid
Betaald
Meld een probleem met deze woning