Woning verhuren

Contact met de makelaar

Deze woning is gevonden buiten ons eigen netwerk. Met de knop hieronder kom je direct bij de aanbieder terecht.

Nieuw

Te huur: Huis Graspol in Eindhoven

Bekijk kaart
5658 GH (Grasrijk)
€ 2.150 per maand
  • 130 m²
  • 5 kamers
  • Gestoffeerd

Beschrijving

Ruim, luxe afgewerkt en modern huis gelegen in de populaire woonomgeving Meerhoven.

Deze jonge en speels ingedeelde woning is voorzien van een grote carport en berging aan een gemeenschappelijk binnenterrein. Verder beschikt de woning over een tuingerichte woonkamer met nieuwe schuifpui, luxe woonkeuken, vier grote slaapkamers en een moderne badkamer. De achtertuin met natuursteen en een fijne terrasoverkapping is op het oosten gelegen.

De woning is gelegen aan een autoluwe straat in de wijk Grasrijk in Meerhoven nabij voorzieningen zoals winkels, scholen, kinderopvang, openbaar vervoer, een groot park en uitvalswegen naar A50, A58, A2 en A67.

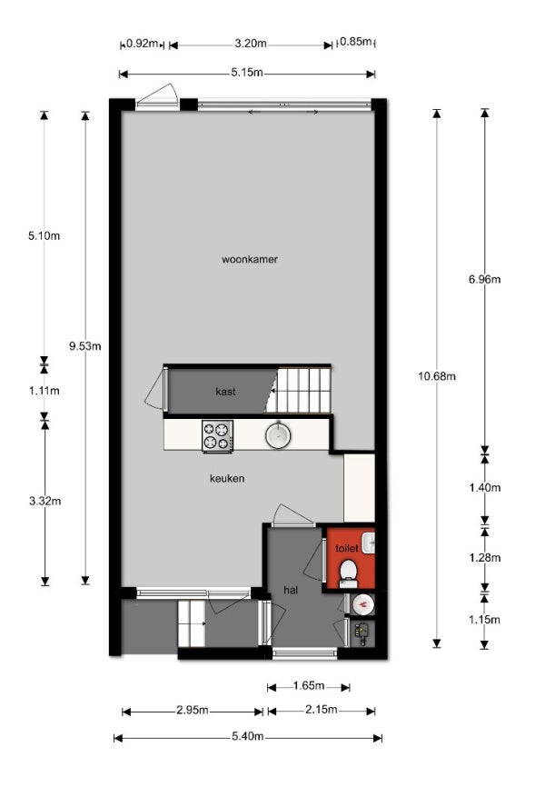
Indeling:
Begane grond:
Balustrade met toegang tot de overdekte entree. In de lichte hal bevinden zich de meterkast (7 groepen) met stadsverwarmingsunit en de volledig betegelde en moderne toiletruimte uitgerust met een vrij hangend toilet en fonteintje.

De gehele begane grond is voorzien van een fraaie tegelvloer met vloerverwarming als hoofdverwarming. Doordat er geen radiatoren beneden zijn biedt dit veel extra indelingsvrijheid.

Aan de voorzijde is de royale woonkeuken gelegen. Deze is van alle gemakken voorzien zoals een composiet werkblad, spoelbak, geïntegreerd zeeppompje, inductiekookplaat, afzuigkap, combi oven/magnetron, ingebouwd koffiezetapparaat, vaatwasser, koelkast (allen van Bosch/Siemens/Liebherr). De diverse kasten en lades bieden zeer veel opbergruimte en er is genoeg plaats voor een eettafel. Via de keuken is een ruime en praktische trapkast te bereiken.

Het sfeervolle, tuingerichte woongedeelte is aan de achterzijde gelegen. Een grote schuifpui en een loopdeur aan de achterzijde zorgen voor de benodigde lichtinval en een optimaal tuincontact. De schuifpui is aan 2 zijden open te schuiven. Tevens bevindt zich hier de trapopgang naar de eerste verdieping.

De onderhoudsvriendelijke en verzorgde achtertuin, gelegen op het oosten, is voorzien van een terras van natuursteen, een fijne terrasoverkapping met verlichting, kunstgras, borders met beplanting, buitenverlichting, buitenkraantje en elektra. Achterin de tuin staan een stenen berging voorzien van elektra en een grote carport met privé parkeerplaats. De poort biedt toegang tot een afgesloten gemeenschappelijk binnenterrein.

Eerste verdieping:
De overloop biedt toegang tot drie slaapkamers en de badkamer. De volledige eerste verdieping is voorzien van dezelfde laminaatvloer.

Slaapkamer 1, circa 10,5 m², is aan de achterzijde gelegen en is voorzien van een nette laminaatvloer en een draairaam. Hier bevinden zich tevens TV, radio en telefoonaansluitingen.

Slaapkamer 2, circa 10 m², is aan de voorzijde gelegen en is voorzien van een nette laminaatvloer en een Frans balkon. Hier bevinden zich tevens TV, radio en telefoonaansluitingen.

Slaapkamer 3, circa 9,5 m², is aan de achterzijde gelegen en is voorzien van een nette laminaatvloer en een draairaam. Hier bevinden zich tevens TV, radio en telefoonaansluitingen.

De volledig betegelde badkamer is uitgerust met een bad, inloopdouche, hangend toilet, designradiator en grote dubbele wastafel in meubel met planchet en spiegel.

Tweede verdieping:
Via een vaste trap is de tweede verdieping te bereiken. Ook deze verdieping is volledig voorzien van een lichte laminaatvloer. Op de ruime overloop/voorportaal met fraaie raampartij bevinden zich de witgoedaansluitingen en de mechanische ventilatie unit.

De royale vierde slaapkamer heeft een oppervlakte van circa 17 m² en is voorzien van een laminaatvloer en een Frans balkon.

Algemeen:

  • De woning is volledig geïsoleerd en voorzien van HR++ isolatieglas.
  • De hardhouten traptredes zijn bekleed met siergrind.
  • Ideaal gesitueerd ten opzichte van de Internationale School en ASML

Minimale huurperiode: 12 kalendermaanden

Huurprijs is exclusief stadsverwarming, elektra en water, TV/- internet en gemeentelijke belastingen.

Meer woninginformatie bekijken?

Log in of registreer gratis.

Overdracht

Huurprijs
€ 2.150 per maand
Aangeboden sinds
21-10-2025
Status
Te huur
Beschikbaar
Per 01-12-2025
Huurovereenkomst
Onbepaalde tijd
Looptijd
Minimaal 12 maanden
Borg
€ 3.225
Interieur
Gestoffeerd
Onderhoudsstaat
Goed

Oppervlakte en inhoud

Woonoppervlakte
130 m²
Inhoud
420 m³

Bouw

Type woning
Huis
Soort woning
Hoekwoning, Eengezinswoning
Soort bouw
Bestaande bouw
Bouwjaar
2007
Ligging
  • In een woonwijk
  • Nabij het openbaar vervoer

Indeling

Aantal kamers
5
Aantal slaapkamers
4
Aantal badkamers
1
Aantal woonlagen
3
Voorzieningen
  • Bad
  • Douche
  • Toilet

Buitenruimte

Balkon
Niet aanwezig
Tuin
Aanwezig (gelegen op het oosten)
Dakterras
Niet aanwezig

Energie

Energielabel
A

Bergruimte

Schuur/Berging
Aanwezig

Parkeergelegenheid

Aanwezig
Ja
Soort parkeergelegenheid
Openbaar

Garage

Aanwezig
Nee

Huurvoorwaarden

Roken toegestaan
Nee
Huisdieren toegestaan
Nee
Doelgroep
Werkende
Inkomenseis
€ 6.450
Maximaal aantal bewoners
4
Meld een probleem met deze woning
Contact met de makelaar Bel