Woning verhuren

Contact met de makelaar

Deze woning is gevonden buiten ons eigen netwerk. Met de knop hieronder kom je direct bij de aanbieder terecht.

Nieuw

Te huur: Huis Amazonelaan in Purmerend

Bekijk kaart
1448 XM (Amerika)
€ 2.800 per maand
  • 154 m²
  • 6 kamers
  • Gestoffeerd

Beschrijving

Riante eengezinswoning met 5 slaapkamers, 2 badkamers en garage te huur in Purmerend, Weidevenne

Gelegen aan een rustige straat in de geliefde wijk Weidevenne, vindt u deze royale eengezinswoning aan de Amazonelaan. De woning combineert ruimte en comfort met een gunstige ligging op loopafstand van scholen, openbaar vervoer en winkelcentrum Van Damplein. Een ideale woning voor gezinnen of huurders die ruimte, luxe en bereikbaarheid waarderen.

Indeling
Via de entree bereikt u de straatgerichte, ruime open keuken van ca. 27 m². Deze is modern uitgevoerd en voorzien van diverse inbouwapparatuur, waaronder een vaatwasser, afzuigkap, vriezer, koelkast, combimagnetron, oven en een inductiekookplaat. Tevens voorzien van een Quooker. Dubbele taatsdeuren geven toegang tot de uitgebouwde, tuingerichte woonkamer van ruim 38 m². De massief hardhouten vloer van Afzeliahout, de lichtkoepel en de grote raampartijen zorgen voor een warme uitstraling en veel lichtinval. Vanuit de woonkamer leiden openslaande deuren naar de zonnige achtertuin op het westen, die tevens toegang biedt tot de garage met elektrische deur en meer dan voldoende ruimte voor een grote auto.

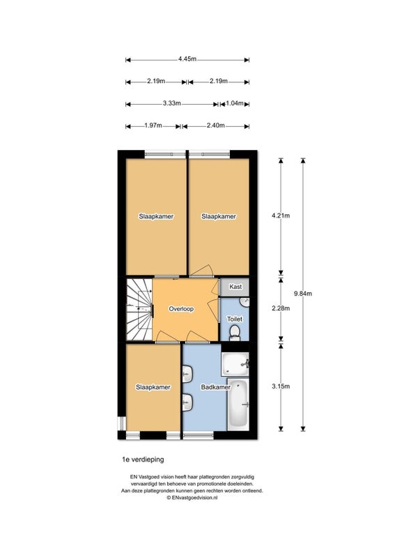
Op de eerste verdieping bevinden zich drie goed bemeten slaapkamers en een luxe badkamer met dubbele wastafels, inloopdouche en ligbad. Daarnaast is er een separaat toilet.
De tweede verdieping biedt nog eens twee ruime slaapkamers, waarvan één met een balkon op het westen, evenals een tweede badkamer met dubbele wastafel, inloopdouche en toilet. Hier vindt u tevens de wasmachineaansluiting.

Kenmerken

  • De woning wordt zonder meubels verhuurd
  • Huurprijs: € 2.800,- per maand
  • Borgsom: 2 maanden huur
  • Beschikbaar: per direct, onbepaalde tijd
  • 5 slaapkamers
  • 2 badkamers
  • 3 toiletten
  • Eigen garage met elektrische deur
  • Shutters van Jasno en deels stoffering beschikbaar als service
  • 3 airco-units (woonkamer en 2 slaapkamers)
  • Achtertuin en balkon op het westen

Omgeving
Weidevenne staat bekend om haar ruime opzet en gezinsvriendelijke karakter. Voor de dagelijkse boodschappen is winkelcentrum Van Damplein dichtbij, en basisscholen zijn op loop- en fietsafstand bereikbaar. Het centrum van Purmerend en het NS-station liggen op enkele minuten afstand, met een snelle verbinding naar Amsterdam. Ook de uitvalswegen richting de hoofdstad en de rest van de Randstad zijn eenvoudig bereikbaar.

Meer woninginformatie bekijken?

Log in of registreer gratis.

Overdracht

Huurprijs
€ 2.800 per maand
Aangeboden sinds
09-11-2025
Status
Te huur
Beschikbaar
Per direct
Huurovereenkomst
Onbepaalde tijd
Borg
€ 5.600
Interieur
Gestoffeerd
Onderhoudsstaat
Goed

Oppervlakte en inhoud

Woonoppervlakte
154 m²
Inhoud
462 m³

Bouw

Type woning
Huis
Soort woning
Hoekwoning, Eengezinswoning
Soort bouw
Bestaande bouw
Bouwjaar
2001
Ligging
  • Aan een rustige weg
  • In een woonwijk
  • Nabij het openbaar vervoer
  • Nabij een school
  • Nabij een winkelcentrum

Indeling

Aantal kamers
6
Aantal slaapkamers
5
Aantal badkamers
2
Aantal woonlagen
3
Voorzieningen
  • Bad
  • Glasvezelaansluiting
  • Buitenzonwering
  • Douche
  • Toilet

Buitenruimte

Balkon
Aanwezig
Tuin
Aanwezig (39 m², gelegen op het westen)
Dakterras
Niet aanwezig

Energie

Energielabel
A

Bergruimte

Schuur/Berging
Niet aanwezig

Parkeergelegenheid

Aanwezig
Ja
Soort parkeergelegenheid
Openbaar

Garage

Aanwezig
Ja

Huurvoorwaarden

Roken toegestaan
Nee
Huisdieren toegestaan
Nee
Doelgroep
Werkende
Inkomenseis
€ 8.400
Meld een probleem met deze woning
Contact met de makelaar Bel