Woning verhuren

Contact met de makelaar

Deze woning is gevonden buiten ons eigen netwerk. Met de knop hieronder kom je direct bij de aanbieder terecht.

Nieuw

Te huur: Huis Pater Thijssenstraat in Veghel

Bekijk kaart
5465 SG (Zijtaart)
€ 1.795 per maand
  • 130 m²
  • 6 kamers
  • Gestoffeerd

Beschrijving

123Wonen Eindhoven:

Per direct beschikbaar, gestoffeerde, ruime en energiezuinige woning in het gezellige Zijtaart(Veghel).

Welkom aan de Pater Thijssenstraat - een verrassend ruime en perfect onderhouden tussenwoning uit 2008 met energielabel A.

Deze woning is beschikbaar voor minimaal 12 maanden en daarna onbepaalde tijd, wordt gestoffeerd opgeleverd inclusief plafondlampen.

Hier geniet je van comfort, sfeer en rust, in een kindvriendelijke wijk waar het heerlijk wonen is!

De woning is voorzien van (gedeeltelijke)vloerverwarming, een gloednieuwe badkamer (2024), 10 zonnepanelen en maar liefst vier slaapkamers. Buiten vind je een onderhoudsvriendelijke tuin met overkapping, perfect voor lange zomeravonden. En als bonus: een speeltuin direct voor de deur.

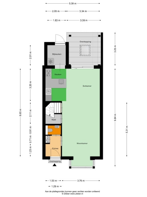
Indeling binnen:

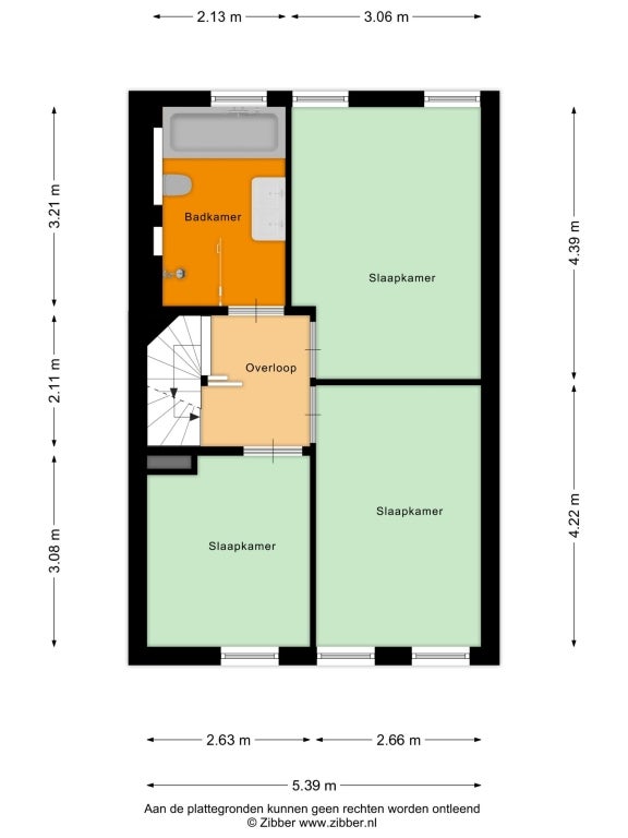
De lichte woonkamer met houten vloer, erker en schuifpui naar het terras voelt warm en ruim aan, De moderne keuken met kookeiland en inbouwapparatuur vormt het hart van het huis. Op de eerste verdieping vind je drie slaapkamers en de prachtige nieuwe badkamer met ligbad, inloopdouche en dubbele wastafel. De tweede verdieping biedt nog een royale slaapkamer, extra bergruimte en plek voor wasapparatuur.

Buitenleven:

De tuin is onderhoudsarm, netjes aangelegd met kunstgras, berging , overkapping en achterom- klaar om van te genieten!

Locatie:

Zijtaart is een gezellig dorp met een sterke gemeenschapszin, basisschool, dorpshuis en sportverenigingen. Je woont hier rustig, maar toch dicht bij Veghel en de uitvalswegen richting Eindhoven, Den Bosch en Nijmegen.

Ben jij op zoek naar een instapklare gezinswoning vol comfort, ruimte en energiezuinigheid? Dan is Pater Thijssenstraat precies wat je zoekt- kom snel kijken!

DETAILS:

- Huurprijs: € 1.795,- per maand, exclusief GWL, internet en gemeentelijke belastingen;
- Waarborgsom € 2.500,-;
- Per direct beschikbaar;
- Niet-roken woning.

Voor meer informatie of een vrijblijvende bezichtiging nodigen wij u van harte uit contact op te nemen.

Overdracht

Huurprijs
€ 1.795 per maand
Aangeboden sinds
14-10-2025
Status
Te huur
Beschikbaar
Per direct
Interieur
Gestoffeerd
Onderhoudsstaat
Zeer goed

Oppervlakte en inhoud

Woonoppervlakte
130 m²
Perceeloppervlakte
123 m²
Inhoud
460 m³

Bouw

Type woning
Huis
Soort woning
Tussenwoning (rijtjeshuis), Eengezinswoning
Soort bouw
Bestaande bouw
Bouwjaar
2008

Indeling

Aantal kamers
6
Aantal slaapkamers
4
Aantal badkamers
1
Voorzieningen
  • Bad
  • Open haard

Buitenruimte

Tuin
Aanwezig (123 m²)
Dakterras
Niet aanwezig

Energie

Isolatie
Vloerisolatie, HR glas, Dakisolatie, Muurisolatie
Energielabel
A

Garage

Aanwezig
Nee
Meld een probleem met deze woning
Contact met de makelaar Bel