Contact met de makelaar

Deze woning is gevonden buiten ons eigen netwerk. Met de knop hieronder kom je direct bij de aanbieder terecht.

Nieuw

Montfortstraat 55

Bekijk kaart
6433 JG Hoensbroek (Nieuw Lotbroek-Zuid)
€ 299.000 k.k.
  • 135 m²
  • 1 kamer
  • 1928

Samenvatting

  • Deze woning wordt sinds 20 december 2025 aangeboden door Schneiders Makelaardij;
  • De 2-onder-1-kapwoning heeft een woonoppervlakte van 135 m² en beschikt over 1 kamer;
  • De woning is gebouwd In 1928 en ligt in de buurt Nieuw Lotbroek-Zuid in Hoensbroek;
  • De woning beschikt onder andere over de volgende voorzieningen: Bad, Kabel TV, Glasvezelaansluiting, Rolgordijnen, Douche, Toilet.

Beschrijving

Overdracht

Vraagprijs
€ 299.000 k.k.
Aangeboden sinds
20-12-2025
Status
Beschikbaar
Beschikbaar
In overleg
Onderhoudsstaat
Goed

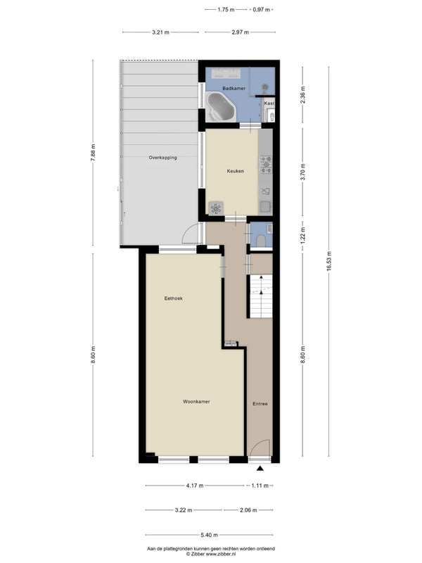
Oppervlakte en inhoud

Woonoppervlakte
135 m²
Perceeloppervlakte
284 m²
Inhoud
645 m³

Bouw

Type woning
Huis
Soort woning
2-onder-1-kapwoning, Eengezinswoning
Soort bouw
Bestaande bouw
Bouwjaar
1928

Indeling

Aantal kamers
1
Aantal badkamers
1
Aantal woonlagen
3
Voorzieningen
  • Bad
  • Kabel TV
  • Glasvezelaansluiting
  • Rolgordijnen
  • Douche
  • Toilet

Buitenruimte

Balkon
Niet aanwezig
Tuin
Aanwezig (157 m², gelegen op het noordoosten)
Dakterras
Niet aanwezig

Energie

Isolatie
Spouwmuurisolatie, Vloerisolatie, Dakisolatie
Verwarming
Warmtepomp
Cv-ketel
Intergas (Gas, uit 2017, Eigendom)
Energielabel
A+

Bergruimte

Schuur/Berging
Aanwezig

Parkeergelegenheid

Aanwezig
Ja
Soort parkeergelegenheid
Op eigen terrein

Garage

Aanwezig
Nee
Meld een probleem met deze woning