Woning verhuren

Contact met de makelaar

Deze woning is gevonden buiten ons eigen netwerk. Met de knop hieronder kom je direct bij de aanbieder terecht.

Nieuw

Te huur: Appartement Treurenburgstraat 241 in Eindhoven

Bekijk kaart
5613 EA (Villapark)
€ 1.228 per maand
  • 63 m²
  • 2 kamers
  • 2019

Beschrijving

TE HUUR: Treurenburgstraat 241 Eindhoven
Huurprijs: €1228,07 excl. €25 servicekosten en €55,97 kosten parkeerplaats
Beschikbaar per 01-03-2026

PRETTIGE LIGGING
In het plan PicusKade woon je tegen het centrum van Eindhoven aan, maar toch omgeven door rust en ruimte. Je hebt dus écht alles in de buurt: winkels, restaurants, de bioscoop, het station. PicusKade is een nieuwe wijk in Eindhoven, gebouwd tussen het NRE-terrein en het DAF-museum. Midden in Eindhoven met het centrum en alle voorzieningen op loopafstand. Ideaal dus voor de echte stadsliefhebber. Combineer de dynamiek van het centrum met je eigen plek in PicusKade.

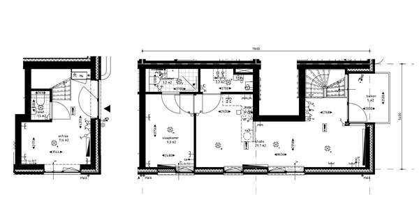
WONINGINDELING
Deze unieke huurwoning beschikt over 2 woonlagen, een slaapkamer, een balkon, een eigen berging en een eigen parkeerplaats in de afgesloten parkeergarage. Onderstaand treft u een opsomming van de stadswoning:

Begane grond:
- Eigen prive parkeerplaats in de afgesloten, overdekte, parkeergarage;
- Entree met ruimte voor garderobe, meterkast (voldoende groepen) en deels betegelde toiletruimte;
- Trap met toegang tot eerste verdieping.

Eerste verdieping:
- Woonkamer (29,7m2) met fraai uitzicht;
- Complete keuken voorzien van koelkast (met vriesvak), combi magentron-/oven, elektrische kookplaat, afzuigkap en vaatwasser;
- Technische ruimte met opstelplaats CV-ketel;
- Volledig betegelde badkamer met inloopdouche, vaste wastafel, toilet en designradiator;
- Slaapkamer (9,3m2).

Afwerkingsniveau:
- De gehele woning is voorzien van een net geschilderd glasvliesbehang;
- De huurwoning is thans bewoond en door de zittend huurder zijn voorzieningen aangebracht die mogelijk ter overname zijn zoals vloerafwerking, raambekleding en verlichting.

INKOMENSVEREISTEN
- Uw bruto maandinkomen dient minimaal 3,5 keer de maandhuur te bedragen. Vakantiegeld en vaste toeslagen mogen worden
meegeteld bij het maandinkomen;
- Het inkomen van uw partner wordt volledig (100%) meegeteld;
- U dient te beschikken over een arbeidscontract van minimaal één jaar. Nul (0)-uren-contracten kunnen niet worden meegeteld. Contracten via een detacheringsbureau/ uitzendbureau/ payroll organisatie, worden beoordeeld aan de hand van de voorwaarden;
- Minimale huurperiode bedraagt 12 maanden.

Overdracht

Huurprijs
€ 1.228 per maand
Aangeboden sinds
06-02-2026
Status
Te huur
Beschikbaar
Per 01-03-2026

Oppervlakte en inhoud

Woonoppervlakte
63 m²

Bouw

Type woning
Appartement
Soort woning
Bovenwoning
Soort bouw
Bestaande bouw
Bouwjaar
2019

Indeling

Aantal kamers
2
Aantal slaapkamers
1
Aantal badkamers
1
Aantal woonlagen
2
Voorzieningen
  • Mechanische ventilatie
  • Toilet

Buitenruimte

Balkon
Aanwezig
Tuin
Niet aanwezig
Dakterras
Niet aanwezig

Energie

Energielabel
A

Parkeergelegenheid

Aanwezig
Ja
Meld een probleem met deze woning