Te huur: Appartement Egelstraat 20 in Eindhoven
Bekijk kaart- 78 m²
- 3 kamers
- 2022
Beschrijving
/**
Te huur: Egelstraat 20 Eindhoven
Huurprijs: €1.475,- excl. €60,- servicekosten
Beschikbaar per 01-02-2026
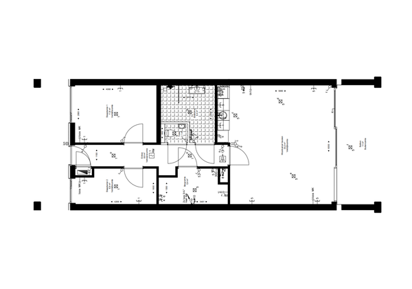
INDELING APPARTEMENT
Algemeen:
- Entree met bellentableau en brievenbussen;
- Trapopgang en lift naar verdiepingen.
Appartement (gelegen op de begane grond):
- Entree;
- Hal met voldoende ruimte voor een garderobe;
- Slaapkamer 1;
- Slaapkamer 2;
- (Deels) betegelde toiletruimte voorzien van zwevend toilet en fonteintje;
- (Deels) betegelde badkamer voorzien van inloopdouche met glazen douchewand en wastafel met spiegel;
- Technische ruimte voorzien van verwarmingsinstallatie, unit mechanische ventilatie en aansluitingen voor wasapparatuur;
- Woonkamer met open keuken voorzien van diverse inbouwapparatuur waaronder koelkast, vriezer, vaatwasser, inductiekookplaat en afzuigkap;
- Terras.
AFWERKING
- De vloeren in de woning zijn niet voorzien van vloerafwerking en dient dus door huurder te worden aangebracht (met uitzondering van tegelwerk in de toiletruimte en badkamer);
- De wanden in de woning zijn voorzien van scanbehang en muurverf in wit RAL 9010 (met uitzondering van tegelwerk in de toiletruimte en badkamer);
- De plafonds in de woning zijn voorzien van spuitpleisterwerk;
- De woning wordt verwarmd middels een warmtepomp (volledig gasloos).
Voor een betere beeldvorming van de woning en afwerking zijn diverse foto's van de woning en een plattegrond aan de advertentie toegevoegd.
Let op: aan de foto's en plattegrond kunnen geen rechten worden ontleend.
PARKEREN
- Er zijn 46 parkeerplaatsen gelegen achter het complex;
- De parkeerplaatsen zijn vooraf toegewezen aan bepaalde huisnummers;
- Op het terrein zijn 3 stuks laadpalen aangesloten welke zijn voorzien van een betaalsysteem.
HUURVOORWAARDEN
Om in aanmerking te komen voor deze huurwoning, worden door de verhuurder een aantal toewijzingscriteria gehanteerd:
- Uw bruto maandinkomen dient circa 3,5 keer de maandhuur te bedragen. Vakantiegeld en vaste toeslagen worden meegeteld;
- Het inkomen van uw partner wordt volledig meegeteld. Bij kandidaat huurders welke beide een AOW ontvangen, kunnen beide inkomens voor 100% worden meegeteld;
- U dient te beschikken over een arbeidscontract van minimaal één jaar. Nul (0)-uren-contracten kunnen niet worden meegeteld. Contracten via een detacheringsbureau/ uitzendbureau/ payroll organisatie, worden beoordeeld aan de hand van de voorwaarden.
Overige belangrijke informatie:
- Minimale huurperiode bedraagt 12 maanden;
- De servicekosten bedragen €60 per maand;
- Standaard waarborgsom bedraagt één maandhuur. Bij een arbeidscontract voor bepaalde tijd of huisdieren geldt een verhoogde waarborgsom van 2 maandhuren.
**/
Overdracht
- Huurprijs
-
€ 1.475 per maand
- Aangeboden sinds
- 14-01-2026
- Status
- Te huur
- Beschikbaar
- Per 01-02-2026
Oppervlakte en inhoud
- Woonoppervlakte
- 78 m²
Bouw
- Type woning
- Appartement
- Soort woning
- Galerijflat
- Soort bouw
- Bestaande bouw
- Bouwjaar
- 2022
Indeling
- Aantal kamers
- 3
- Aantal slaapkamers
- 2
- Aantal badkamers
- 1
- Aantal woonlagen
- 1
- Voorzieningen
-
- Lift
- Mechanische ventilatie
Buitenruimte
- Balkon
- Aanwezig
- Tuin
- Niet aanwezig
- Dakterras
- Niet aanwezig
Energie
- Energielabel
- A++
Parkeergelegenheid
- Aanwezig
- Ja