Woning verhuren

Contact met de makelaar

Deze woning is gevonden buiten ons eigen netwerk. Met de knop hieronder kom je direct bij de aanbieder terecht.

Nieuw

Te huur: Appartement Smakkelaarsveld in Utrecht

Bekijk kaart
3511 EB (Hoog-Catharijne NS en Jaarbeurs)
€ 2.500 per maand
  • 82 m²
  • 2 kamers
  • Gemeubileerd

Beschrijving

Bezichtiging
Aanmelden is verplicht. Geselecteerde kandidaten ontvangen een bevestiging per e-mail of telefonisch.
Controleer ook uw spamfolder.

Per direct beschikbaar
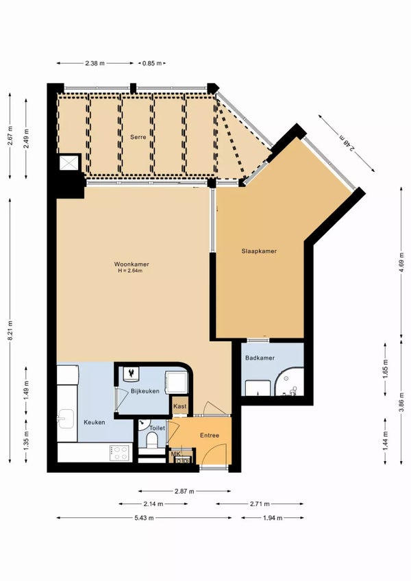
Royaal en licht gemeubileerd appartement van ca. 82 m², gelegen op de 7e etage in het hart van Utrecht. Door de vele grote raampartijen en de unieke serre geniet u hier van veel daglicht en een fantastisch uitzicht over de stad, terwijl u midden in het centrum woont, direct naast Hoog Catharijne en Utrecht Centraal.

Locatie
Wonen in het centrum van Utrecht betekent alles binnen handbereik: winkels, horeca, cultuur en openbaar vervoer. Dankzij de ligging op hoogte biedt het appartement rust en privacy, met uitzicht over de stad, terwijl de levendigheid van Utrecht zich letterlijk aan uw voeten bevindt.

Het appartement

  • Woonoppervlakte ca. 82 m²
  • Gelegen op de 7e etage
  • 1 ruime slaapkamer met en-suite badkamer
  • Lichte woonkamer met veel ramen
  • Unieke serre met volledig te openen ramen en dak
  • Halfopen keuken met inbouwapparatuur
  • Separate berging in de onderbouw
  • Gedeelde fietsenstalling op de begane grond
  • Eigen parkeerplaats in de parkeergarage mogelijk (optioneel, tegen meerprijs)
  • Gemeubileerd (zoals te zien op de foto’s)

Huurvoorwaarden

  • Huurprijs: € 2.500 per maand
  • Exclusief gas, water, elektra en overige nutsvoorzieningen
  • Beschikbaar: per direct
  • Borg: nader te bepalen
  • Huurperiode: korte en lange periode mogelijk

Aanmelden voor een bezichtiging
Stuur een korte introductie met:

  • Naam
  • Telefoonnummer
  • Inkomen en werksituatie
  • Gewenste huurperiode

Disclaimer: Deze informatie is met grote zorgvuldigheid samengesteld door Lemoo. Ondanks deze zorg kan Lemoo niet instaan voor de juistheid, volledigheid of actualiteit van de vermelde gegevens. Er kunnen dan ook geen rechten worden ontleend aan de inhoud van deze advertentie.

Lemoo aanvaardt geen aansprakelijkheid voor eventuele onjuistheden, onvolledigheden of vertragingen in de informatie, noch voor eventuele gevolgen van het gebruik ervan.

Alle opgegeven maten en oppervlakten zijn uitsluitend ter indicatie en kunnen afwijken van de werkelijke situatie.

Lemoo fungeert bij sommige advertenties enkel als publicatieplatform namens derden. In dat geval kunnen wij niet alle inhoudelijke vragen beantwoorden en verwijzen wij je door naar de betreffende aanbieder.

Overdracht

Huurprijs
€ 2.500 per maand
Aangeboden sinds
16-01-2026
Status
Te huur
Beschikbaar
Per direct
Bijzonderheden
Beschermd stads- of dorpsgezicht
Huurovereenkomst
Onbepaalde tijd
Interieur
Gemeubileerd
Onderhoudsstaat
Goed

Oppervlakte en inhoud

Woonoppervlakte
82 m²
Inhoud
265 m³

Bouw

Type woning
Appartement
Soort woning
Portiekflat, Appartement
Soort bouw
Bestaande bouw
Bouwjaar
2024
Ligging
  • In het centrum
  • Nabij een winkelcentrum

Indeling

Aantal kamers
2
Aantal slaapkamers
1
Aantal badkamers
1
Aantal woonlagen
1
Voorzieningen
  • Lift
  • Intercom
  • Rioolaansluiting
  • Schuifdeuren
  • Bergruimte
  • Toilet

Buitenruimte

Balkon
Aanwezig
Tuin
Niet aanwezig
Dakterras
Niet aanwezig

Energie

Verwarming
Stadsverwarming
Warm water
Stadsverwarming
Energielabel
A

Bergruimte

Schuur/Berging
Niet aanwezig

Parkeergelegenheid

Aanwezig
Ja
Soort parkeergelegenheid
Garage

Garage

Aanwezig
Nee

Huurvoorwaarden

Roken toegestaan
Nee
Huisdieren toegestaan
Nee
Meld een probleem met deze woning