Woning verhuren

Contact met de makelaar

Deze woning is gevonden buiten ons eigen netwerk. Met de knop hieronder kom je direct bij de aanbieder terecht.

Nieuw

Te huur: Huis Leo Gestelstraat 19 in Haarlem

Bekijk kaart
2023 XW (Kleverpark-zuid)
€ 3.850 per maand
  • 123 m²
  • 6 kamers
  • Gestoffeerd of gemeubileerd

Beschrijving

Prachtige, moderne en lichte hoekwoning (gebouwd in 2014) met 5 slaapkamers, tuin en eigen garage, gelegen in de populaire en kindvriendelijke wijk Kleverpark. Deze buurt staat bekend om de karakteristieke architectuur, groene straten en dorpse sfeer. De woning is goed onderhouden en biedt een comfortabel en eigentijds woongevoel met een royale indeling, moderne keuken en een zonnige, op het zuidoosten gelegen tuin met toegang tot de ruime garage.

De woning combineert energiezuinigheid met stijl en gebruiksgemak. Dankzij volledige isolatie, vloerverwarming in het hele huis, zes zonnepanelen en individuele thermostaten in elke kamer, is er in alle seizoenen sprake van een aangenaam wooncomfort.

Het NS-station Haarlem en het historische stadscentrum liggen op slechts enkele minuten fietsen, terwijl buurtwinkels, scholen en kinderopvang zich op korte afstand bevinden. De wijk biedt een divers aanbod aan lokale winkels, cafés en restaurants, evenals meerdere speeltuinen, kinderopvanglocaties en uitstekende scholen. De duinen, het strand van Bloemendaal aan Zee en recreatieplas Het Wed zijn eenvoudig per fiets bereikbaar. De uitvalswegen richting Amsterdam, Schiphol en Den Haag zijn goed toegankelijk. Een ideale combinatie van rustig wonen en nabijheid van de stad.

Indeling
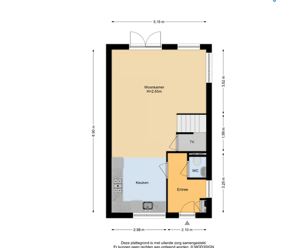
Begane grond
Entree met ruime hal, garderobe, meterkast en modern toilet met fontein. De lichte woonkamer beschikt over grote raampartijen en openslaande deuren naar de op het zuidoosten gelegen tuin, waardoor een prettige verbinding ontstaat tussen binnen en buiten. Aan de voorzijde bevindt zich de open keuken, voorzien van hoogwaardige inbouwapparatuur, waaronder een Quooker, vaatwasser, koelkast, vriezer, combi-oven/magnetron, 5-pits gaskookplaat en afzuigkap. De gehele begane grond is afgewerkt met houtlook vloertegels en voorzien van vloerverwarming.
Vanuit de tuin is toegang tot de privégarage, uitgerust met een elektrische roldoor en extra ruimte voor fietsen of opslag.

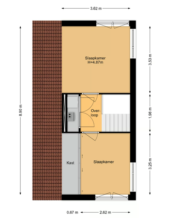
Eerste verdieping
Overloop met toegang tot drie slaapkamers: de ruime slaapkamer aan de voorzijde beschikt over openslaande deuren met Frans balkon, terwijl de twee slaapkamers aan de achterzijde uitkijken op de rustige binnentuin. De moderne badkamer is voorzien van een inloopdouche met glazen deuren, wastafelmeubel met extra kastruimte, handdoekradiator en tweede toilet.

Tweede verdieping
Overloop met afgesloten technische ruimte waar de cv-ketel (Intergas 2014), mechanische ventilatie en aansluitingen voor wasmachine en droger zijn. Op deze verdieping bevinden zich nog twee slaapkamers, beide met Franse balkons en hoge plafonds tot aan de nok, wat zorgt voor een ruimtelijk en licht gevoel.

Kenmerken
Woonoppervlakte ca. 123 m²
Bouwjaar 2014
Energielabel A
Zes zonnepanelen
Vloerverwarming door het hele huis
Elke kamer voorzien van eigen thermostaat
Alle slaapkamers voorzien van elektrische zonneschermen
Privégarage met elektrische roldeur
Parkeren via bewonersvergunning
Per fiets: NS-station Haarlem 4 min., recreatieplas Het Wed 14 min., strand 23 min.
De woning wordt aangeboden ongemeubileerd of deels gemeubileerd (in overleg)
De huurprijs is exclusief gas, water, elektra, TV/internet en lokale belastingen voor huurders
Diplomatencontract voor 2 jaar met een vaste periode van 12 maanden. Met eventuele kans op verlenging, welke tijdig bekend zal worden.
Verhuurder behoudt zich het recht van gunning voor.

Overdracht

Huurprijs
€ 3.850 per maand
  • Inclusief: Servicekosten
Aangeboden sinds
29-10-2025
Status
Te huur
Beschikbaar
Per direct
Huurovereenkomst
Tijdelijke verhuur
Looptijd
Maximaal 36 maanden
Borg
€ 7.700
Interieur
Gestoffeerd of gemeubileerd
Onderhoudsstaat
Zeer goed

Oppervlakte en inhoud

Woonoppervlakte
123 m²
Perceeloppervlakte
145 m²
Inhoud
493 m³

Bouw

Type woning
Huis
Soort woning
Hoekwoning, Eengezinswoning
Soort bouw
Bestaande bouw
Bouwjaar
2014
Ligging
  • Aan een rustige weg
  • In het centrum
  • In een woonwijk
  • Nabij het openbaar vervoer
  • Nabij een school

Indeling

Aantal kamers
6
Aantal slaapkamers
5
Aantal badkamers
1
Aantal woonlagen
3
Voorzieningen
  • Douche
  • Toilet
  • Wasruimte

Buitenruimte

Balkon
Niet aanwezig
Tuin
Aanwezig (30 m², gelegen op het zuidoosten)
Tuinbeschrijving
achtertuin
Dakterras
Niet aanwezig

Energie

Isolatie
Volledig geïsoleerd
Verwarming
CV-ketel, Volledige vloerverwarming
Warm water
CV-ketel
Energielabel
A

Bergruimte

Schuur/Berging
Aanwezig

Parkeergelegenheid

Aanwezig
Ja
Soort parkeergelegenheid
Vergunning

Garage

Aanwezig
Ja
Meld een probleem met deze woning
Contact met de makelaar Bel