- 153 m²
- 5 kamers
- Gemeubileerd
Beschrijving
Op de grens van Haarlem, in het prachtige Overveen, bevindt zich deze volledig gemeubileerde eengezinswoning. De hoekwoning beschikt over maar liefst vier ruime slaapkamers en twee badkamers, nog een groot pluspunt is de eigen achterom.
Omgeving:
De ligging is fantastisch, aan de rand van Overveen en Bloemendaal, op slechts 20 minuten lopen of 10 minuten fietsen van het centrum van Haarlem. Het is een groene en kindvriendelijke omgeving met meerdere basis- en middelbare scholen om de hoek. Stel je voor: je begint de dag actief door naar het strand te fietsen, waar je de dag start met een stevige wandeling en vervolgens geniet van een heerlijke cappuccino met uitzicht op zee.
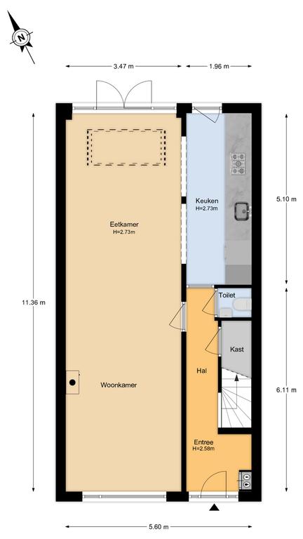
Indeling:
Bij binnenkomst tref je een ruime en sfeervolle hal die toegang biedt tot de riante woonkamer met een moderne open keuken (die van alle gemakken is voorzien). Aan de achterkant bevindt zich een ruime bijkeuken. Vanuit de woonkamer leiden openslaande deuren naar de achtertuin.
Eerste verdieping
Deze verdieping beschikt over twee ruime slaapkamers. Eén van de slaapkamers heeft een aangrenzend balkon. Daarnaast is er een moderne badkamer met ligbad en aparte douche.
Tweede verdieping
Op deze verdieping vind je de tweede moderne badkamer & twee ruime slaapkamers.
Opleveringsniveau:
Volledig gemeubileerd
Minimale voorwaarden:
Inkomen per maand circa: € 10.000,- bruto (gezamenlijk)
Maximaal aantal personen: Zeer geschikt voor een gezin of een werkend koppel, woningdelers zijn niet toegestaan.
Huisdieren: In overleg toegestaan
Roken: Niet toegestaan in de woning
Handig om te weten:
Ingangsdatum huurcontract: februari 2026
Contractduur: Type C, diplomatenclausule voor 12 maanden (in overleg langer)
Voorschotten p/m: Exclusief gas/ water & elektra
Waarborgsom: 2 maanden huur
Disclaimer
Deze informatie is met de grootst mogelijke zorgvuldigheid samengesteld. Desondanks kunnen er onvolledigheden of onjuistheden voorkomen en kunnen hieraan geen rechten worden ontleend. Alle genoemde afmetingen en oppervlakten zijn indicatief. Huurder heeft een eigen onderzoeksplicht voor alle voor hem/haar relevante zaken. De makelaar vertegenwoordigt de verhuurder.
Interesse in een bezichtiging?
Stuur een e-mail naar ****** en vermeld het adres in het onderwerp. Wij streven ernaar aanvragen zo snel mogelijk te beantwoorden.
Overdracht
- Huurprijs
-
€ 3.750 per maand
- Aangeboden sinds
- 12-12-2025
- Status
- Te huur
- Beschikbaar
- Per 02-02-2026
- Interieur
- Gemeubileerd
- Onderhoudsstaat
- Goed
Oppervlakte en inhoud
- Woonoppervlakte
- 153 m²
- Inhoud
- 550 m³
Bouw
- Type woning
- Huis
- Soort woning
- Hoekwoning, Eengezinswoning
- Soort bouw
- Bestaande bouw
- Bouwjaar
- 1924
Indeling
- Aantal kamers
- 5
- Aantal slaapkamers
- 4
- Aantal badkamers
- 2
- Aantal woonlagen
- 3
- Voorzieningen
-
- Bad
- Douche
- Toilet
Buitenruimte
- Balkon
- Aanwezig
- Tuin
- Aanwezig (48 m², gelegen op het zuidwesten)
- Tuinbeschrijving
- achtertuin, voortuin, zijtuin
- Dakterras
- Niet aanwezig
Energie
- Energielabel
- B
Bergruimte
- Schuur/Berging
- Aanwezig
- Omschrijving
- Aangebouwd steen
Garage
- Aanwezig
- Nee