Woning verhuren

Contact met de makelaar

Deze woning is gevonden buiten ons eigen netwerk. Met de knop hieronder kom je direct bij de aanbieder terecht.

Te huur: Huis Sipohout in Zoetermeer

Bekijk kaart
2719 KL (Rokkeveen-West)
€ 2.500 per maand
  • 123 m²
  • 6 kamers
  • Gemeubileerd

Beschrijving

PER DIRECT TE HUUR: GEMEUBILEERDE EENGEZINSWONING MET 5 SLAAPKAMERS!

Ruim en goed onderhouden 6-kamer eengezinswoning met energielabel B (ook zonnepanelen), 5 slaapkamers en een zonnig gelegen achtertuin. Met een woonoppervlakte van 123 m² is dit de ideale woning voor een gezin of voor wie behoefte heeft aan extra ruimte, bijvoorbeeld voor een thuiskantoor of logeerkamer. De woning is gelegen in de aantrekkelijke wijk Rokkeveen, vlakbij het Floriadepark met het aangrenzende Balijbos, wijkwinkelcentrum Rokkeveen, gezondheidscentrum, bibliotheek, NS-station en (basis)scholen. Naar de British School Den Haag (Leidschenveen) is het maar 8 km. Het is 17 km naar de Rotterdam International Secondary School (RISS).

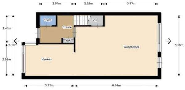
Indeling.

De woning is verdeeld over 3 woonlagen.

Begane grond:

Verzorgde voortuin. Hal met toiletruimte v.v. fonteintje. Vervolgens gaat u naar de ruime en lichte woonkamer met open keuken, met directe toegang tot de verzorgde achtertuin met achterom (met berging voor bijv. fietsen en tuingereedschap), waar je heerlijk kunt ontspannen of buiten kunt dineren tijdens zomerse avonden. De moderne keuken is voorzien van inbouwapparatuur, zoals inductiekookplaat, afzuigkap, koel- vriescombinatie en een combi-oven.

Eerste verdieping:

Overloop met aparte toiletruimte met fonteintje. Royale 1e slaapkamer met 2-persoonsbed en grote kledingkast. In de 2e slaapkamer staat een 1-persoonsbed en over de hele lengte een kledingkast.

In de 3e slaapkamer staat ook een 1-persoonsbed en een bureautje. Vervolgens is er een mooie en moderne badkamer, die is uitgerust met een badmeubel met dubbele wastafel en een mooie inloopdouche.

Tweede verdieping:

Er zijn daar nog 2 slaapkamers (slaapkamer 4 en 5), waarvan 1 nu als werkkamer wordt gebruikt en waar een bureau met stoel staat. In de andere slaapkamer staan twee 1-persoonsbedden. Op deze verdieping is ook de wasruimte met een wasmachine en een wasdroger.

Huurprijs: € 2.500,-- per maand excl. gas, elektra, water, tv/internet. Borg: 2 maanden huur.

Huurovereenkomst 12 maanden, met optie om te verlengen, in overleg.

Bijzonderheden:

- Woonkamer/keuken, 5 slaapkamers, 2 toiletten, luxe badkamer, voor- & achtertuin met berging.

- Volledig gemeubileerd. Een wasmachine en wasdroger zijn aanwezig in het huis.

- Energiezuinige woning, energielabel B, zonnepanelen (lage stroomkosten).

- Huurovereenkomst 12 maanden, met optie om te verlengen, in overleg.

- Zeer centraal gelegen, winkels zijn in de buurt.

- Naar de British School Den Haag (Leidschenveen) is het maar 8 km.

- Gratis parkeren, voldoende parkeergelegenheid beschikbaar.

- Kindvriendelijke buurt.

- Geschikt voor 1 persoon (met kinderen) of een stel (met kinderen).

- Geen huisdier.

Voor meer informatie of een bezichtiging kunt u contact opnemen met ******

Meer woninginformatie bekijken?

Log in of registreer gratis.

Overdracht

Huurprijs
€ 2.500 per maand
Aangeboden sinds
25-09-2025
Status
Te huur
Beschikbaar
Per direct
Interieur
Gemeubileerd

Oppervlakte en inhoud

Woonoppervlakte
123 m²
Perceeloppervlakte
119 m²
Inhoud
369 m³

Bouw

Type woning
Huis
Soort woning
Geschakelde woning, Eengezinswoning
Soort bouw
Bestaande bouw
Bouwjaar
1995

Indeling

Aantal kamers
6
Aantal slaapkamers
5
Aantal badkamers
1

Buitenruimte

Tuin
Aanwezig (119 m²)
Dakterras
Niet aanwezig

Energie

Energielabel
A

Garage

Aanwezig
Nee
Meld een probleem met deze woning
Contact met de makelaar Bel