Woning verhuren

Contact met de makelaar

Deze woning is gevonden buiten ons eigen netwerk. Met de knop hieronder kom je direct bij de aanbieder terecht.

Nieuw

Te huur: Appartement Nassaukade in Amsterdam

Bekijk kaart
1053 LT (Da Costabuurt)
€ 1.900 per maand
  • 28 m²
  • 1 kamer
  • Gemeubileerd

Beschrijving

Let op: Het is niet mogelijk om telefonisch een bezichtiging te plannen. Een bezichtiging kan alleen worden ingepland door ONLINE te reageren op deze advertentie.

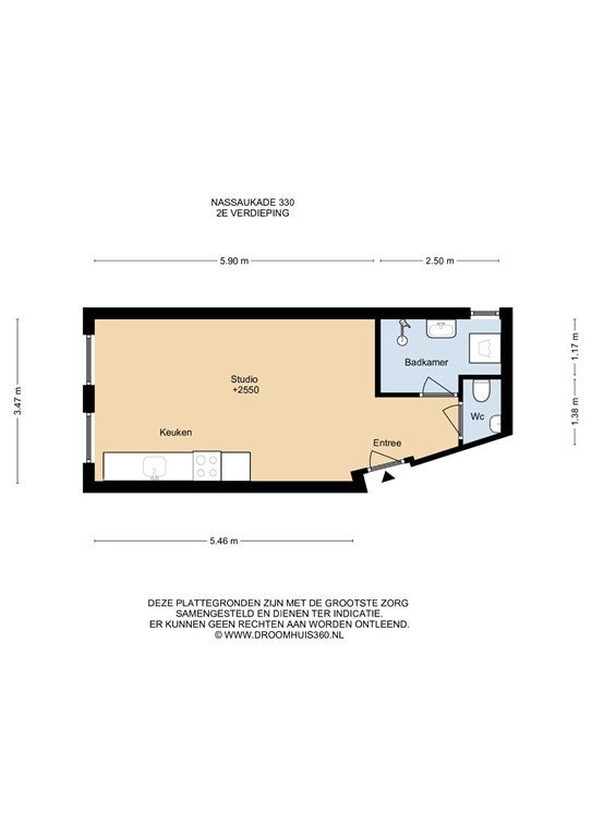
Prachtig nieuw gerenoveerd studio (28 m2) op de tweede verdieping in de Oud-West buurt. De studio is uitgerust met een luxe inbouwkeuken, een luxe badkamer met aparte douche en een aparte wc.

Het appartement bevindt zich in Oud-West, aan het einde van de Elandsgracht. Hier kun je uren wandelen in de Jordaan of door de 9 straatjes en genieten van de vele winkels, cafés en restaurants. Je kunt boodschappen doen bij de vele supermarkten en speciaalzaken. Je woont midden in de theaters, musea, bioscopen en clubs. Voor kinderen zijn er allerlei leuke speeltuinen in de buurt. De locatie, aan de buitenkant van de Grachtengordel, is zeer centraal en heeft goede verbindingen met andere delen van de stad. Het Leidseplein en het Vondelpark zijn slechts een steenworp afstand en je kunt binnen enkele minuten naar de Dam of het Museumplein in Oud-Zuid fietsen. Het openbaar vervoer is ook perfect georganiseerd. Aan de overkant van de straat ligt de Appeltjesmarkt met veel bus- en tramverbindingen zowel binnen als buiten de stad. Er is een directe busverbinding naar Schiphol en via de afritten S105 en S106 ben je in no-time op de A10.

Let op: Alleen een alleenstaande persoon mag dit appartement huren!

Details:
• Oppervlakte van het pand: 28 m2
• Aantal slaapkamers: geen, het is een studio
• Aantal badkamers: 0
• Type woning: Studio
• Bouwjaar van het appartement: 1899 (gerenoveerd in september 2020)
• Interieurinrichting: Gemeubileerd
• Vloerbedekking: Laminaat
• Kwaliteit van het openbaar vervoer: Goed

Ook in dit huurappartement:
• Aparte douche
• Aparte wc
• Gelegen op de tweede verdieping

Voorwaarden:
• Alleen geschikt voor een alleenstaande persoon vanwege de grootte van het appartement
• Roken niet toegestaan
• Huisdieren niet toegestaan
• Huurovereenkomsten onder voorbehoud van toestemming van eigenaar
• Maten komen niet conform NEN 2580

Bovenop de huurprijs komt een vast bedrag van 150 euro per maand voor Gas/Electriciteit/Water, TV/Internet.

De huurprijs van dit appartement is exclusief lokale belastingen.

Let op: Dit appartement heeft 212 punten, dus het is een woning in de vrije sector. Dit is te wijten aan de volgende speciale regeling in de puntentelling (waarbij de WOZ cap niet van toepassing is):

  1. Het pand bevindt zich in of nabij Amsterdam of Utrecht.
  2. De oppervlakte van alle kamers samen is minder dan 40 m².
  3. Het huis is gebouwd of gerenoveerd (volgens wettelijke energie-eisen) in ******.

Overdracht

Huurprijs
€ 1.900 per maand
Aangeboden sinds
06-11-2025
Status
Te huur
Beschikbaar
Per direct
Borg
€ 3.800
Interieur
Gemeubileerd
Onderhoudsstaat
Goed

Oppervlakte en inhoud

Woonoppervlakte
28 m²
Perceeloppervlakte
28 m²
Inhoud
70 m³

Bouw

Type woning
Appartement
Soort woning
Bovenwoning, Appartement
Soort bouw
Bestaande bouw
Bouwjaar
1899
Ligging
Nabij het openbaar vervoer

Indeling

Aantal kamers
1
Aantal badkamers
1
Aantal woonlagen
1
Voorzieningen
  • Douche
  • Toilet

Buitenruimte

Balkon
Niet aanwezig
Dakterras
Niet aanwezig

Energie

Energielabel
A
Meld een probleem met deze woning
Contact met de makelaar Bel