Woning verhuren

Contact met de makelaar

Deze woning is gevonden buiten ons eigen netwerk. Met de knop hieronder kom je direct bij de aanbieder terecht.

Nieuw

Te huur: Appartement Keizersgracht in Amsterdam

Bekijk kaart
1016 GC (Grachtengordel-West)
€ 3.250 per maand
  • 85 m²
  • 3 kamers
  • Gestoffeerd of gemeubileerd

Beschrijving

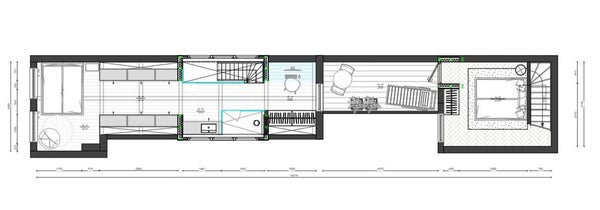
Prachtig appartement op een toplocatie aan de Keizersgracht in De Jordaan in het centrum van Amsterdam! Het appartement bevindt zich op de tweede en derde verdieping en is volledig gerenoveerd in 2017. Het appartement beschikt over twee slaapkamers en twee badkamers en een gezellige terras op de derde verdieping.

Indeling:
Via de gezamenlijke trap bereik je de tweede verdieping waar je het appartement binnenkomt. De woonkamer is aan de voorkant gelegen en kijkt uit op de prachtige gracht. De keuken is volledig uitgerust met inbouwapparatuur. Aan de achterkant van het huis is er een grote badkamer met inloopdouche, dubbele wastafel en een toilet. De master bedroom is gelegen op de derde verdieping aan de voorkant en heeft een eigen douche. De tweede slaapkamer is aan de achterzijde en heeft toegang tot de gezellige terras.

Omgeving:
Het pand is gelegen aan een van de mooiste grachten in Amsterdam, in het midden van de Jordaan, aan de rand van de populaire 'Negen Straatjes'. De 'Negen Straatjes' worden gekenmerkt door een verscheidenheid aan boetieks, cafés en restaurants. De Westerkerk, het Anne Frank Huis en de Dam zijn op loopafstand van het object.

De bereikbaarheid met het openbaar vervoer is uitstekend. De tramhalte voor lijnen 2, 11 en 12 is op loopafstand. Dit betekent dat het Centraal Station binnen een paar minuten bereikbaar is. De Zuidas is in 10 minuten bereikbaar via metrostation Rokin.

Het pand is bereikbaar met de auto via de A10 ringweg, afrit S106.

Overdracht

Huurprijs
€ 3.250 per maand
Aangeboden sinds
06-11-2025
Status
Te huur
Beschikbaar
Per 01-12-2025
Borg
€ 5.900
Interieur
Gestoffeerd of gemeubileerd
Onderhoudsstaat
Goed

Oppervlakte en inhoud

Woonoppervlakte
85 m²
Perceeloppervlakte
85 m²
Inhoud
224 m³

Bouw

Type woning
Appartement
Soort woning
Bovenwoning, Dubbel bovenhuis
Soort bouw
Bestaande bouw
Bouwjaar
1880
Ligging
  • Aan het water
  • In het centrum
  • Nabij het openbaar vervoer

Indeling

Aantal kamers
3
Aantal slaapkamers
2
Aantal badkamers
2
Aantal woonlagen
1
Voorzieningen
  • Dakterras
  • Toilet

Buitenruimte

Balkon
Niet aanwezig
Dakterras
Aanwezig
Meld een probleem met deze woning
Contact met de makelaar Bel