Woning verhuren

Contact met de makelaar

Deze woning is gevonden buiten ons eigen netwerk. Met de knop hieronder kom je direct bij de aanbieder terecht.

Nieuw

Te huur: Appartement Okeghemstraat in Amsterdam

Bekijk kaart
1075 PM (Willemspark)
€ 4.500 per maand
  • 125 m²
  • 4 kamers
  • Gemeubileerd

Beschrijving

BESCHIKBAAR PER 29 DECEMBER 2026 | GEMEUBILEERDE DUBBELE BENEDENWONING | 3 SLAAPKAMERS | TUIN | WILLEMSPARKBUURT, OUD-ZUID

Beschikbaar per: 29 december 2026
Contracttype: Model C – maximaal 24 maanden
Waarborgsom: 2 maanden huur
Huisdieren: in overleg

Op een fantastische locatie in Amsterdam Oud-Zuid bieden wij deze volledig gemeubileerde dubbele benedenwoning aan, gelegen in een charmant pand uit 1913 en verdeeld over twee woonlagen plus een ruime kelder. De woning is stijlvol afgewerkt, behoudt prachtige authentieke details en beschikt over drie slaapkamers, een eigen patiotuin én veel opbergruimte. Een ideale woning voor expats, gezinnen of stellen die tijdelijk willen wonen op een van de meest geliefde plekken van de stad.

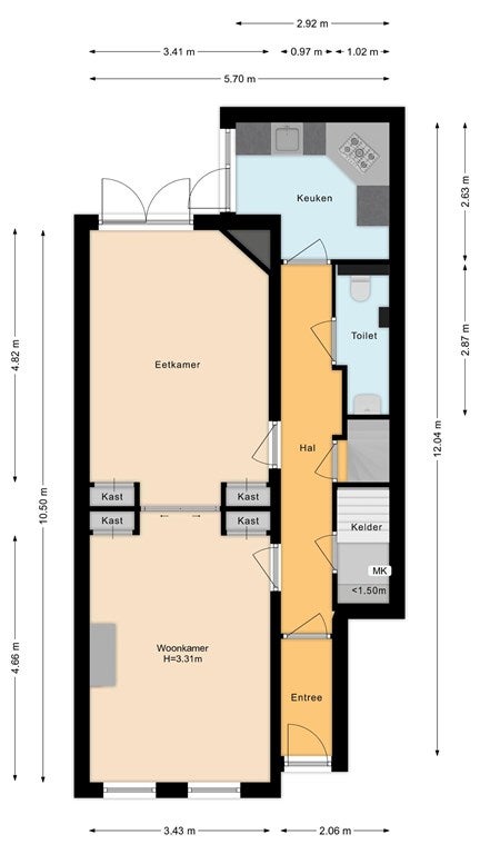
Indeling

Kelder:
Ruime kelder met veel bergruimte, voorzien van wasmachine, droger, extra koelkast en vriezer.

Begane grond:
Eigen entree met glas-in-loodramen. Centrale hal met trap naar de kelder en eerste verdieping, en een separaat toilet met fonteintje.

De klassieke woonkamer en suite beschikt over hoge plafonds (3.31 m), glas-in-lood schuifdeuren, marmeren schouwen, ingebouwde kasten en openslaande deuren naar de tuin.

De gesloten keuken aan de tuinzijde is uitgerust met:
• Gasfornuis
• Siemens elektrische oven
• Siemens magnetron
• Samsung koelkast met vriesvak
• Bosch vaatwasser

Tuin:
Bescheiden patiotuin op het westen met vlonderterras, vaste plantenbak en houten schutting. Een heerlijke plek om na werk van de zon te genieten.

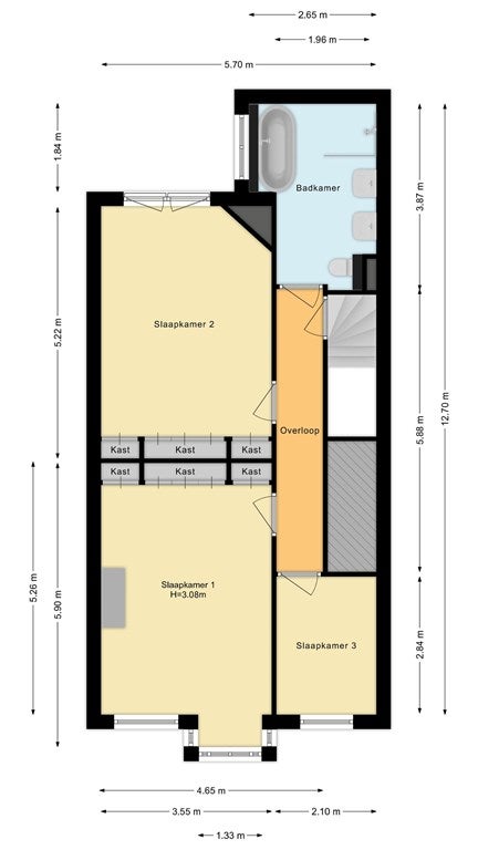
Eerste verdieping:
Drie slaapkamers, waarvan twee met ingebouwde kasten en klassieke elementen zoals glas-in-lood, marmeren schouwen en een Frans balkon.
De derde slaapkamer is momenteel ingericht als home office en biedt prachtig uitzicht aan de voorzijde van de woning.

De luxe badkamer is voorzien van:
• Vrijstaand ligbad
• Inloopregendouche
• Dubbele wastafel
• Tweede toilet
• Inbouwspots

Locatie: – Willemsparkbuurt, Oud-Zuid
Een rustige, groene en zeer geliefde buurt op steenworp afstand van het Vondelpark. Alle voorzieningen zoals supermarkten, koffietentjes, speciaalzaken, kinderopvang, basisscholen en sportfaciliteiten liggen binnen enkele minuten lopen.

Uitstekende bereikbaarheid met het OV dankzij diverse tramhaltes in de buurt. Station Amsterdam Zuid bevindt zich op slechts 7 minuten fietsen. Met de auto zijn de A10, A2 en A9 snel en eenvoudig bereikbaar.

Kenmerken:
• Gemeubileerd
• Beschikbaar per 29 december 2026
• Model C – maximaal 24 maanden
• Borg: 2 maanden huur
• Huisdieren in overleg
• Woonoppervlak verdeeld over twee etages + kelder
• 3 slaapkamers
• Veel authentieke details (glas-in-lood, schouwen, hoge plafonds, inbouwkasten)
• Eigen patiotuin op het westen
• Ruime kelder met veel bergruimte
• Fantastische ligging in de Willemsparkbuurt, Amsterdam Oud-Zuid
• Parkeren via vergunningensysteem

Overdracht

Huurprijs
€ 4.500 per maand
Aangeboden sinds
17-11-2025
Status
Te huur
Beschikbaar
Per 29-12-2025
Borg
€ 9.000
Interieur
Gemeubileerd
Onderhoudsstaat
Zeer goed

Oppervlakte en inhoud

Woonoppervlakte
125 m²
Inhoud
602 m³

Bouw

Type woning
Appartement
Soort woning
Dubbel benedenhuis, Appartement
Soort bouw
Bestaande bouw
Bouwjaar
1913
Ligging
In het centrum

Indeling

Aantal kamers
4
Aantal slaapkamers
3
Aantal badkamers
1
Aantal woonlagen
2
Voorzieningen
  • Bad
  • Douche
  • Toilet

Buitenruimte

Balkon
Niet aanwezig
Tuin
Aanwezig (7 m², gelegen op het zuiden)
Tuinbeschrijving
achtertuin
Dakterras
Niet aanwezig

Energie

Energielabel
D
Meld een probleem met deze woning
Contact met de makelaar