Woning verhuren

Contact met de makelaar

Deze woning is gevonden buiten ons eigen netwerk. Met de knop hieronder kom je direct bij de aanbieder terecht.

Nieuw

Te huur: Appartement Tomatenstraat 75 in Den Haag

Bekijk kaart
2564 CL (Vruchtenbuurt)
€ 2.250 per maand
  • 101 m²
  • 4 kamers
  • Gestoffeerd of gemeubileerd

Beschrijving

Stijlvol Boven Appartement op Tomatenstraat 75, Den Haag!

Dit prachtig gemeubileerde boven appartement, gelegen in de populaire Vruchtenbuurt, biedt zowel comfort als luxe. Met een lichte en ruime woonkamer, een moderne open keuken, drie royale slaapkamers en een zonnig dakterras, is dit de perfecte plek om thuis te komen.

Indeling
De privé-ingang op de begane grond leidt naar de eerste verdieping, waar je een ruime overloop vindt met een apart toilet en een stijlvolle woonkamer die zich over de volle lengte van het appartement uitstrekt, met elegante houten vloeren. De moderne open keuken aan de voorkant is volledig uitgerust met inbouwapparatuur en biedt toegang tot een zonnig balkon.

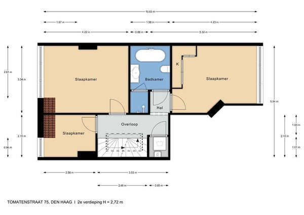
Op de tweede verdieping zijn er drie ruime slaapkamers en een luxe badkamer met een inloopdouche, een vrijstaand bad, een wastafelmeubel en een tweede toilet. Daarnaast is er een aparte wasruimte en een zolder voor extra opbergruimte.

Het grote dakterras biedt veel zonlicht en privacy - een perfecte plek om te ontspannen.

Locatie
Het appartement is ideaal gelegen nabij de winkels aan De Savornin Lohmanplein, Fahrenheitstraat en Vlierboom- en Appelstraat. Openbaar vervoer, waaronder RandstadRail lijn 3 en buslijnen 21 en 23, is op loopafstand. Het strand, de duinen en parken zoals Bosjes van Pex en Meer en Bos zijn ook gemakkelijk bereikbaar.

Verschillende (internationale) scholen, waaronder The International School of The Hague en de Europese School, bevinden zich in de nabijheid.

Opmerkingen:

  • Beschikbaar vanaf 1 februari
  • Beschikbaar voor een minimum van 12 maanden en een maximum van 24 maanden
  • Huurprijs van €2.250,- per maand
  • Voorschot voor nutsvoorzieningen €200,- per maand
  • Vaste betaling voor TV en internet van €35 per maand
  • 3 slaapkamers
  • Volledig gemeubileerd
  • 101 m² woonoppervlakte
  • Dakterras
  • Energielabel D

Reageer op tijd op nieuw woningaanbod

Meer dan de helft van de reacties komt binnen 48 uur. Ontvang direct notificaties bij nieuw aanbod en reageer sneller met Pararius+.

Probeer Pararius+ 14 dagen € 0,01

Overdracht

Huurprijs
€ 2.250 per maand
Aangeboden sinds
09-01-2026
Status
Te huur
Beschikbaar
Per 01-02-2026
Huurovereenkomst
Tijdelijke verhuur
Looptijd
Maximaal 25 maanden
Borg
€ 4.500
Interieur
Gestoffeerd of gemeubileerd
Onderhoudsstaat
Goed

Oppervlakte en inhoud

Woonoppervlakte
101 m²
Inhoud
250 m³

Bouw

Type woning
Appartement
Soort woning
Bovenwoning, Appartement
Soort bouw
Bestaande bouw
Bouwjaar
1929
Ligging
  • In een woonwijk
  • Nabij het openbaar vervoer

Indeling

Aantal kamers
4
Aantal slaapkamers
3
Aantal badkamers
1
Aantal woonlagen
1
Verdieping
1
Voorzieningen
  • Dakterras
  • Toilet

Buitenruimte

Balkon
Niet aanwezig
Dakterras
Aanwezig

Energie

Energielabel
D
Meld een probleem met deze woning