Woning verhuren

Contact met de makelaar

Deze woning is gevonden buiten ons eigen netwerk. Met de knop hieronder kom je direct bij de aanbieder terecht.

Nieuw

Te huur: Appartement Isingstraat in Den Haag

Bekijk kaart
2522 KD (Laakkwartier-Oost)
€ 1.503 per maand
  • 75 m²
  • 4 kamers
  • Kaal

Beschrijving

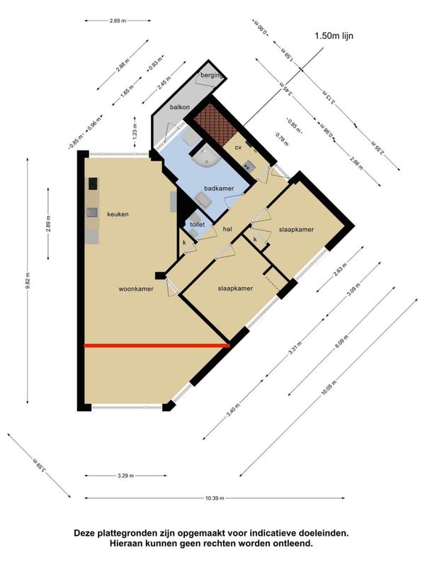
Alleen geschikt voor 3 studenten die nu niet in Den-Haag wonen! Zie de plattegrond voor de indeling. De woning is niet gemeubileerd. Op de foto's is de kamer aan de woonkamer nog niet te zien want daar is later pas een muur geplaatst.

De 3 kamers hebben elk een eigen prijs:

Kamer A: grootste bestaande slaapkamer: € 510

Kamer B: kleinere bestaande slaapkamer: € 475

Kamer C (aan woonkamer): € 518

De woning is bij renovatie o. a voorzien van nieuwe kozijnen met dubbel glas, nieuwe keuken en badkamer, grotendeels nieuw stucwerk, schilderwerk, vloeren en vernieuwde CV Installatie.

Ligging:
De woning is gelegen in het gedeelte tussen de Oudemansstraat en de Allard Piersonlaan. Openbaar vervoer om de hoek, dag/avondwinkels en supermarkten rondom Lorentzplein op loopafstand.

Reageer op tijd op nieuw woningaanbod

Meer dan de helft van de reacties komt binnen 48 uur. Ontvang direct notificaties bij nieuw aanbod en reageer sneller met Pararius+.

Probeer Pararius+ 14 dagen € 0,01

Overdracht

Huurprijs
€ 1.503 per maand
Aangeboden sinds
08-01-2026
Status
Te huur
Beschikbaar
Per direct
Huurovereenkomst
Tijdelijke verhuur
Looptijd
Maximaal 24 maanden
Borg
€ 2.255
Interieur
Kaal
Onderhoudsstaat
Zeer goed

Oppervlakte en inhoud

Woonoppervlakte
75 m²

Bouw

Type woning
Appartement
Soort woning
Portiekflat
Soort bouw
Bestaande bouw
Bouwjaar
1931
Ligging
Nabij het openbaar vervoer

Indeling

Aantal kamers
4
Aantal slaapkamers
3
Aantal badkamers
1
Aantal woonlagen
1

Buitenruimte

Balkon
Aanwezig
Tuin
Niet aanwezig
Dakterras
Niet aanwezig

Energie

Energielabel
B

Bergruimte

Schuur/Berging
Niet aanwezig

Parkeergelegenheid

Aanwezig
Ja
Soort parkeergelegenheid
Openbaar

Garage

Aanwezig
Nee

Huurvoorwaarden

Roken toegestaan
Nee
Huisdieren toegestaan
Nee
Doelgroep
Student, Werkende student
Meld een probleem met deze woning