Woning verhuren

Contact met de makelaar

Deze woning is gevonden buiten ons eigen netwerk. Met de knop hieronder kom je direct bij de aanbieder terecht.

Nieuw

Te huur: Appartement Paul Gabriëlstraat 159 A in Den Haag

Bekijk kaart
2596 VD (Van Hoytemastraat en omgeving)
€ 3.000 per maand
  • 155 m²
  • 6 kamers
  • Gestoffeerd

Beschrijving

Ruim ongemeubileerd pand verdeeld over drie verdiepingen, met een geweldig dakterras en gelegen in de mooie Benoordenhoutbuurt. Om de hoek van de levendige Van Hoytemastraat, waar je een verscheidenheid aan speciaalzaken, boetieks en eetgelegenheden kunt vinden. Het strand van Scheveningen is op fietsafstand, en het groen van het Haagse Bos en Landgoed Clingendael is ook dichtbij. Verschillende internationale organisaties zijn gemakkelijk te bereiken.

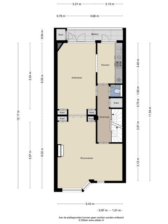
Indeling:
Entree op straatniveau, met een interne trap naar de eerste verdieping. De overloop geeft toegang tot de lichte woon- en eetkamer. Sierlijke plafonds, houten vloeren, decoratieve schoorstenen en originele ensuite deuren met glas-in-lood zijn aanwezig. De halfopen keuken is voorzien van inbouwapparatuur zoals een 5-pits gasfornuis, vaatwasser, koelkast, oven en magnetron. Vanuit de eetruimte heb je toegang tot het zonnige balkon op het zuidoosten. Separaat toilet in de gang.

De trap leidt naar de tweede verdieping, waar vier slaapkamers zijn gelegen - twee aan de voorkant van het pand en twee aan de achterkant. Twee slaapkamers hebben toegang tot een balkon. De grote badkamer beschikt over een bad en douche. De derde verdieping biedt toegang tot de vijfde slaapkamer met aanvullende keuken, die een groot en zonnig dakterras heeft met prachtig uitzicht op de skyline van Den Haag.

Opmerkingen:

  • Onmiddellijk beschikbaar
  • Beschikbaar voor een minimale periode van 12 maanden
  • Energielabel B
  • Ongemeubileerd
  • Vijf slaapkamers
  • Dichtbij internationale scholen
  • Bushaltes in de buurt

Overdracht

Huurprijs
€ 3.000 per maand
Aangeboden sinds
16-01-2026
Status
Te huur
Beschikbaar
Per direct
Borg
€ 3.000
Interieur
Gestoffeerd
Onderhoudsstaat
Goed

Oppervlakte en inhoud

Woonoppervlakte
155 m²
Inhoud
450 m³

Bouw

Type woning
Appartement
Soort woning
Bovenwoning, Dubbel bovenhuis
Soort bouw
Bestaande bouw
Bouwjaar
1932
Ligging
In een woonwijk

Indeling

Aantal kamers
6
Aantal slaapkamers
5
Aantal badkamers
1
Aantal woonlagen
3
Verdieping
1
Voorzieningen
  • Dakterras
  • Toilet

Buitenruimte

Balkon
Aanwezig
Dakterras
Aanwezig

Energie

Energielabel
B
Meld een probleem met deze woning