Woning verhuren

Contact met de makelaar

Deze woning is gevonden buiten ons eigen netwerk. Met de knop hieronder kom je direct bij de aanbieder terecht.

Nieuw

Te huur: Appartement Lichtstraat in Eindhoven

Bekijk kaart
5611 XK (Witte Dame)
€ 2.235 per maand
  • 103 m²
  • 3 kamers
  • Gemeubileerd

Beschrijving

Type: 3-kamer appartement
Locatie: Centrum / Eindhoven

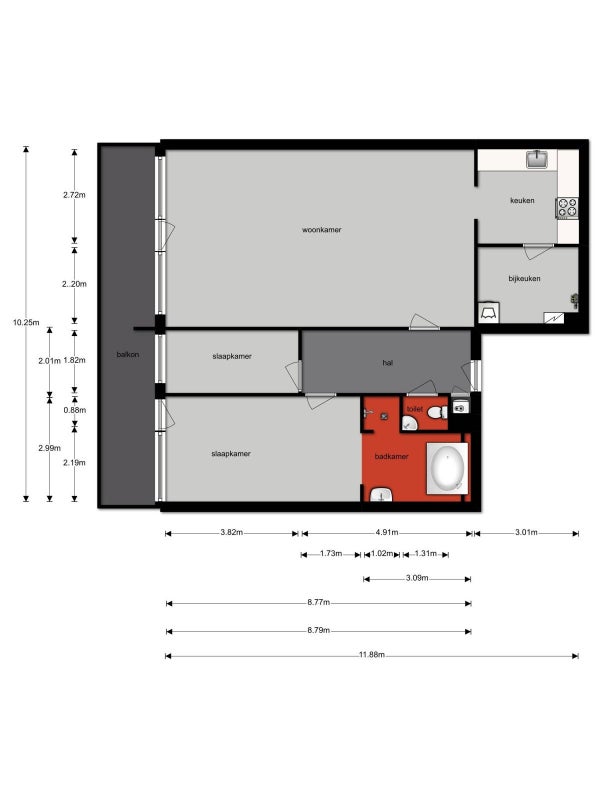
Geheel gemeubileerd 3-kamer appartement op de 2e etage van een appartementencomplex in het centrum van Eindhoven gelegen, voorzien van o.a. balkon, lift en een privé parkeerplaatsen. Totale oppervlakte van het appartement bedraagt circa 110M2.

Globale indeling:
Representatieve entree met o.a. bellentableau, lift, trappenhuis en elektrische deuropener met intercominstallatie.

Appartement:
Entree, ruime hal met toilet en garderobe.
Ruime woonkamer afmeting ca. 50M2 met tevens toegang tot ruim balkon. Halfopen keuken voorzien van o.a. vaatwasser, magnetron, inductie kookplaat en voldoende opbergmogelijkheden. Daarnaast is een bijkeuken aanwezig, met wasmachine, wasdroger en diepvriezer.
Ruime ouderslaapkamer van circa 16m2 v.v. 2-persoonsbed en ensuite badkamer v.v. zeer ruim meerpersoons ligbad/jacuzzi, wastafel en separate douche. De tweede slaapkamer is momenteel in gebruik als studeerkamer en is v.v. een bureau en ruime linnenkast.

Tevens behoren bij dit appartement een berging en een privé parkeerplaats gelegen in het souterrain.

De huurprijs is inclusief servicekosten en parkeerplaats, maar exclusief stadsverwarming, water en elektra, tv/internet en gemeentelijke belastingen.

Minimale huurperiode: 12 maanden.

Overdracht

Huurprijs
€ 2.235 per maand
Aangeboden sinds
07-11-2025
Status
Te huur
Beschikbaar
Per direct
Huurovereenkomst
Onbepaalde tijd
Looptijd
Minimaal 12 maanden
Borg
€ 3.500
Interieur
Gemeubileerd
Onderhoudsstaat
Goed

Oppervlakte en inhoud

Woonoppervlakte
103 m²
Inhoud
280 m³

Bouw

Type woning
Appartement
Soort woning
Portiekflat, Appartement
Soort bouw
Bestaande bouw
Bouwjaar
2003
Ligging
  • In het centrum
  • Nabij het openbaar vervoer
  • Nabij een winkelcentrum

Indeling

Aantal kamers
3
Aantal slaapkamers
2
Aantal badkamers
1
Aantal woonlagen
1
Voorzieningen
  • Kabel TV
  • Lift
  • Internetaansluiting
  • Toilet

Buitenruimte

Balkon
Aanwezig
Tuin
Niet aanwezig
Dakterras
Niet aanwezig

Bergruimte

Schuur/Berging
Aanwezig

Parkeergelegenheid

Aanwezig
Ja
Soort parkeergelegenheid
Garage

Garage

Aanwezig
Nee

Huurvoorwaarden

Roken toegestaan
Nee
Huisdieren toegestaan
Nee
Doelgroep
Werkende
Inkomenseis
€ 7.350
Maximaal aantal bewoners
3
Meld een probleem met deze woning
Contact met de makelaar Bel