Woning verhuren

Contact met de aanbieder

Deze woning is gevonden buiten ons eigen netwerk. Via de knop hieronder ga je direct naar de website van de aanbieder.

Nieuw

Te huur: Appartement Verspronckweg 150 C 36 in Haarlem

Bekijk kaart
2023 BP (Kleverpark-noord)
€ 2.126 per maand
  • 93 m²
  • 2 kamers
  • Kaal

Beschrijving

Deze woning is gesitueerd in een indrukwekkend monumentaal schoolgebouw uit de jaren 20, gelegen in de gewilde Kleverpark buurt dat is getransformeerd in 2022 tot 178 luxe, gerenoveerde en nieuwgebouwde appartementen. Ook zijn er bij het complex twee gemeenschappelijke tuinen, gemeenschappelijke fiets bergingen en gemeenschappelijke elektrische deelauto’s en -fietsen via het bedrijf HELY Deelvervoer.

Alle appartementen zijn voorzien van een vloerverwarming/koelsysteem (geen gas in het gebouw). De woningen worden opgeleverd ZONDER vloerbedekking, gordijnen of lampen – de huurder dient dit zelf te regelen of over te nemen van de huidige huurder. Aan het einde van de huurperiode dient de woning in dezelfde beginstaat te worden opgeleverd, tenzij de volgende huurder bereid is deze toegevoegde zaken over te nemen.

Dit bijzondere maisonnette appartement aan de Verspronckweg 150 C36, gelegen op de tweede verdieping, wordt aangeboden inclusief een parkeerplaats in de ondergelegen garage en een externe berging.

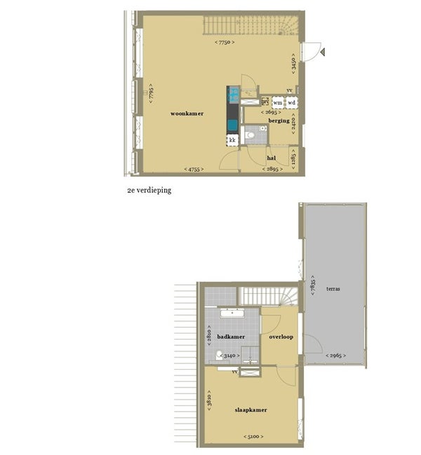
Indeling:
Lift of trap naar 2e verdieping: entree, open woonkamer met complete keuken (v.v. inductiekookplaat, vaatwasser, combi-oven, koelkast met vriesvak en afzuigkap). Hal met toilet en ruime berging met aansluitingen voor wasmachine en droger.

Trap naar 2e verdieping: overloop met toegang naar terras. Slaapkamer en ruime badkamer met inloopdouche, wastafel en toilet.

Waarborgsom is afhankelijk van de persoonlijke situatie van de huurder (als u bijvoorbeeld zzp'er bent of een tijdelijk contract heeft, dan is de borg 2 maanden).

Diversen:
Woonoppervlakte 93m2;
Maisonnette met 2 verdiepingen
Ruim terras
Volledig keuken (nductiekookplaat, vaatwasser, combi-oven, koelkast met vriesvak en afzuigkap) en badkamer (uit 2021), alle muren zijn behang klaar en geschilderd;
Verder wordt de woning kaal opgeleverd: bij C36 is de
GEEN GAS IN HET GEHELE COMPLEX;
Vloerverwarming en -koeling;
Minimaal huurperiode is 12 maanden, onbepaalde huurovereenkomst;
Borg maximaal 2 maanden;
Niet geschikte voor studenten of kandidaten zonder inkomsten of vermogen (ook niet met een borgsteller).
Huisdieren wel toegestaan.

Overdracht

Huurprijs
€ 2.126 per maand
Prijs per m²
€ 23
Aangeboden sinds
20-02-2026
Status
Te huur
Beschikbaar
Per 02-03-2026
Borg
€ 4.252
Interieur
Kaal
Onderhoudsstaat
Zeer goed

Oppervlakte en inhoud

Woonoppervlakte
93 m²
Inhoud
364 m³

Bouw

Type woning
Appartement
Soort woning
Maisonnette, Appartement
Soort bouw
Bestaande bouw
Bouwjaar
2021
Ligging
In een woonwijk

Indeling

Aantal kamers
2
Aantal slaapkamers
1
Aantal badkamers
1
Aantal woonlagen
2
Verdieping
3
Voorzieningen
  • Lift
  • Glasvezelaansluiting
  • Dakterras
  • Douche
  • Toilet
  • Wasruimte

Buitenruimte

Balkon
Niet aanwezig
Dakterras
Aanwezig

Energie

Isolatie
Dubbele beglazing
Verwarming
Volledige vloerverwarming, Warmte terugwininstallatie
Warm water
Centrale verwarming
Energielabel
A

Bergruimte

Schuur/Berging
Aanwezig

Parkeergelegenheid

Aanwezig
Ja
Soort parkeergelegenheid
Openbaar

Garage

Aanwezig
Nee
Meld een probleem met deze woning