Woning verhuren

Contact met de makelaar

Deze woning is gevonden buiten ons eigen netwerk. Met de knop hieronder kom je direct bij de aanbieder terecht.

Nieuw

Te huur: Appartement Mariëttahof 73 in Haarlem

Bekijk kaart
2033 WT (Architectenbuurt)
€ 2.245 per maand
  • 80 m²
  • 2 kamers
  • Gemeubileerd

Beschrijving

Zie onder voor de Nederlandse tekst!!

  • Dit compleet gemeubileerde 2-slaapkamer appartement beschikt over een ruim balkon op het zuidwesten. Het is ideaal gelegen nabij verschillende winkels voor dagelijkse boodschappen, waaronder een supermarkt, een bakker en een slagerij, die alle 7 dagen per week open zijn. Het biedt ook uitstekende verbindingen met het openbaar vervoer, met zowel Haarlem Centraal Station als Spaarnwoude Station op fietsafstand. Uitstekende verbindingen met het openbaar vervoer zijn op loopafstand en het appartement is gunstig gelegen nabij belangrijke wegen naar Alkmaar, Amsterdam, Schiphol en Den Haag. Het centrum van Haarlem is met de fiets binnen 10 minuten te bereiken en het strand van Bloemendaal is slechts 25 minuten verwijderd! Achter het complex bevindt zich een afgesloten privé-parkeerplaats, waar de huurder toegang toe heeft. Voor deze privé-parkeerplaats wordt een vergoeding van €100,00 in aanvulling op de huurprijs in rekening gebracht.

    Begane grond: Centrale entree met lift naar alle verdiepingen.

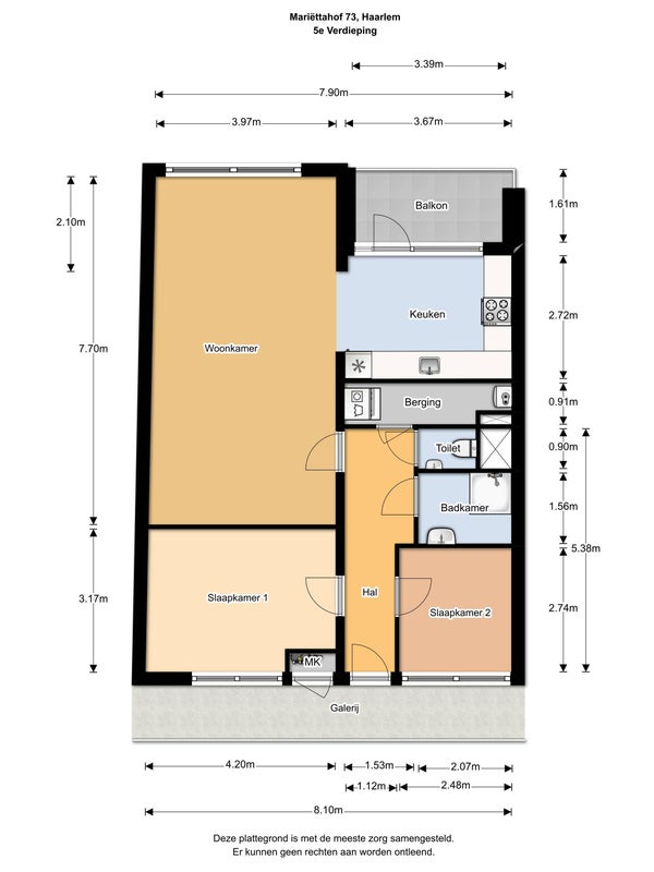
    Vijfde verdieping: Centrale hal die toegang biedt tot alle kamers, twee slaapkamers (de kleinste slaapkamer is volledig ingericht als inloopkast) aan de achterzijde van het appartement en een zeer grote, mooi ingerichte woonkamer met panoramisch uitzicht over de stad aan de voorzijde van het complex. Een moderne open keuken is voorzien van een koelkast/vriezer, gaskookplaat met afzuigkap en een grote heteluchtoven. Ook is er een zonnig balkon op het zuidwesten beschikbaar. Een moderne badkamer met een douche en wastafel is ook aanwezig. Er is een apart toilet en een ruime berging waar wasmachine en droger zich ook bevinden.

    De huurder heeft ook toegang tot een grote berging onder het complex.

    Kortom, een fraai gemeubileerd appartement op een ideale locatie met gemakkelijke toegang tot diverse vervoersmogelijkheden naar Amsterdam en Schiphol, beschikbaar voor een huurperiode van maximaal 30 maanden.

    Details:

    • Volledig gemeubileerd appartement
    • Woonoppervlakte van ca.80m² en inhoud van 248m³, een balkon op het zuidwesten van ca.6m². Een privé-berging van 5m² is beschikbaar in de kelder van het complex.
    • Naast de maandelijkse huur is de huurder verantwoordelijk voor de kosten van gas, elektriciteit, water (vast maandelijks bedrag van € 35,00), TV/internet en gemeentelijke belastingen.
    • Dit appartement omvat een parkeerplaats in de afgesloten parkeerplaats achter het complex. In aanvulling op de huurprijs, wordt er maandelijks € 100,00 in rekening gebracht aan de huurder voor deze privé-parkeerplaats.
    • De huurperiode is gebaseerd op een overeenkomst van bepaalde tijd Model L (met het oog op toekomstig gebruik door bloedverwanten en aanverwanten) van maximaal 30 maanden.
    • Huisdieren en roken zijn niet toegestaan.
    • De verhuurder heeft duidelijk de voorkeur om het pand niet te verhuren aan woningdelers en/of gezinnen.
    • Deze woning kan worden gehuurd door een huurder met een stabiel, voldoende maandelijks inkomen uit werk en helaas niet met een garantsteller of een huurder die de woning niet zelf zal bewonen.

      Compleet volledig gemeubileerd 3-kamer appartement met ruim balkon op het zuidwesten gesitueerd. Ideale locatie ten opzichte van diverse winkels voor de dagelijkse boodschappen zoals de supermarkt, een bakker en een slagerij welke 7 dagen in de week open zijn. Daarnaast is er een goede verbinding met openbaar vervoer en is zowel station Haarlem CS en Spaarnwoude Station op fietsafstand. Goede verbindingen met het openbaar vervoer op korte loopafstand en naast de uitvalswegen gelegen richting Alkmaar, Amsterdam, Schiphol en Den Haag. Op de fiets ben je binnen 10 minuten in het centrum van Haarlem en binnen 25 minuten lig je op het strand van Bloemendaal! Achter het complex bevind zich een afgesloten en privaat parkeerterrein waar de huurder toegang tot krijgt, naast de huurprijs wordt er € 100,00 voor deze private parkeerplaats door berekend aan de huurder.

    Parterre: Centrale entree inclusief lift naar alle verdiepingen.

    Vijfde verdieping: Centrale hal welke toegang verleent aan alle vertrekken, twee slaapkamers (de kleinste kamer is volledig ingericht als inloopkast) aan de achterzijde van het appartement en een zeer grote fraai ingerichte woonkamer met wijds uitzicht over de stad gelegen aan de voorzijde van het complex. Moderne open keuken voorzien van koel,-/vrieskast, gaskookplaat met afzuigkap en grote heteluchtoven. Zonnig balkon gesitueerd op het Zuidwesten. Moderne badkamer met douche en wastafel. Separaat toilet en een ruime berging waar tevens de wasmachine/droger staan opgesteld.

    Onder het complex heeft de huurder nog de beschikking over een ruime berging.

    Kortom een fraai gemeubileerd appartement op een ideale locatie ten opzichte van diverse vervoersmogelijkheden richting Amsterdam en Schiphol, beschikbaar voor een huurperiode van maximaal 30 maanden.

    Bijzonderheden:

    • Compleet gemeubileerd appartement
    • Woonoppervlak van ca.80m² en inhoud van 248m³, een balkon gesitueerd op het zuidwesten van ca.6m². In de onderbouw van het complex is er een private berging van 5m² beschikbaar
    • De huurder dient naast de maandelijkse huursom zorg te dragen voor de kosten van gas, elektra, water (vast maandelijks bedrag van € 35,00), TV/Internet en Gemeentelijke belastingen
    • Dit appartement beschikt over een parkeerplaats op de achter het complex gelegen afgesloten parkeerplaats, naast de huurprijs wordt er maandelijks € 100,00 voor deze private parkeerplaats door berekend aan de huurder;
    • Huurperiode is op basis van bepaalde tijd Model L huurovereenkomst (met het oog op toekomstig gebruik door bloed- en aanverwanten) maximaal 30 maanden
    • Huisdieren en roken zijn/is niet toegestaan
    • Verhuurder geeft duidelijk de voorkeur de woning niet te verhuren aan woningdelers en/of gezinnen
    • Deze woning kan worden gehuurd door een huurder met een eigen maandelijks stabiel toereikend inkomen uit werk en helaas niet met een garantsteller of een huurder die de woning niet zelf zal bewonen.

Meer woninginformatie bekijken?

Log in of registreer gratis.

Overdracht

Huurprijs
€ 2.245 per maand
Aangeboden sinds
11-11-2025
Status
Te huur
Beschikbaar
Per direct
Huurovereenkomst
Tijdelijke verhuur
Looptijd
Maximaal 30 maanden
Borg
€ 4.440
Interieur
Gemeubileerd
Onderhoudsstaat
Goed

Oppervlakte en inhoud

Woonoppervlakte
80 m²
Inhoud
248 m³

Bouw

Type woning
Appartement
Soort woning
Galerijflat, Appartement
Soort bouw
Bestaande bouw
Bouwjaar
1992
Ligging
  • In een woonwijk
  • Vrij uitzicht

Indeling

Aantal kamers
2
Aantal slaapkamers
1
Aantal badkamers
1
Aantal woonlagen
1
Voorzieningen
  • Kabel TV
  • Lift
  • Internetaansluiting
  • Buitenzonwering
  • Douche
  • Toilet

Buitenruimte

Balkon
Aanwezig
Tuin
Niet aanwezig
Dakterras
Niet aanwezig

Energie

Isolatie
Dubbele beglazing
Energielabel
B

Bergruimte

Schuur/Berging
Aanwezig

Parkeergelegenheid

Aanwezig
Ja
Soort parkeergelegenheid
Op eigen terrein

Garage

Aanwezig
Nee

Huurvoorwaarden

Roken toegestaan
Nee
Huisdieren toegestaan
Nee
Doelgroep
Werkende
Maximaal aantal bewoners
2
Meld een probleem met deze woning
Contact met de makelaar Bel