- 50 m²
- 2 kamers
- Gestoffeerd
Beschrijving
KRUIDENHOF 28, LEIDEN
Op de begane grond gelegen van het nieuwbouwcomplex ''DE RUYTER'' staat dit gestoffeerde 2-kamer (1 slaapkamer) appartement aan de achterzijde van gebouw B met luxe keuken, badkamer en eigen tuintje.
Het liefst willen we het allemaal. Duurzaam buiten wonen en toch vlakbij de stad. Die wens wordt werkelijkheid bij ”De Ruyter” in Leiden. Wonen aan / buiten de singel maar toch minder dan vijf minuten fietsen, zo dichtbij is het bruisende hart van Leiden. Een nieuwbouwcomplex met 46 huurappartementen ( 2 en 3 kamer) in Leiden.
De woningen zijn verdeeld over 2 gebouwen (Gebouw A en Gebouw B). Gebouw A aan de Zijlsingel zijde is geheel ontworpen in de sfeer van de aangrenzende percelen. Hierdoor is de beleving van het gebouw authentiek. De buitenmuren zijn opgetrokken uit een baksteen die past in het straatbeeld.
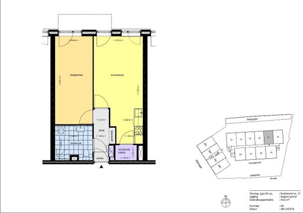
Indeling:
Entree aan de zijkant van het gebouw met bellenplateau en brievenbussen. Entree op de begane grond. Binnenkomst in hal met toegang tot de verschillende vertrekken. Woonkamer met luxe openkeuken voorzien van vaatwasser, koelkast, inductie kookplaat, afzuigkap en combi-magnetron. Luxe badkamer met inloopdouche, wastafel, toilet designradiator en wasmachine aansluiting. Vanuit de hal toegang tot de slaapkamer.
Kenmerken:
De woningen worden gebouwd met een epc norm van minder dan 0,4. met behulp van zonnepanelen en of warmtepomp bereiken ze een energielabel van A+++. dit betekent een lage energierekening van uw energiebedrijf. Alle woningen zijn ingepakt met isolatie, waardoor geluid en warmte / koude binnen je eigen woning blijft. Alle ramen worden voorzien van isolerende hr++ beglazing. Door de gehele woning ligt vloerverwarming. De constructie van het gebouw is zeer degelijk met onder andere betonnen vloeren.
Opleveringsniveau:
- PVC vloer
- wandafwerking met renovlies behang en gesaust
- volledig ingerichte keukens met vaatwasser, inductiekookplaat, combi magnetron, koelkast
- badkamers met douche en wastafel
- raambekleding
- plafondverlichting
Bijzonderheden:
- Huurprijs van € 1.695,- is excl. elektra, water en TV/Internet
- Beschikbaar per 1 februari 2026
- Bijkomende verplichte kosten van € 78,- per maand voor servicekosten
- Bijkomende verplichte kosten van € 95,57,- voor contract met InWarmte
- Gestoffeerde oplevering
Overdracht
- Huurprijs
-
€ 1.695 per maand
- Aangeboden sinds
- 19-01-2026
- Status
- Te huur
- Beschikbaar
- Per 01-02-2026
- Huurovereenkomst
- Onbepaalde tijd
- Borg
- € 1.695
- Interieur
- Gestoffeerd
- Onderhoudsstaat
- Zeer goed
Oppervlakte en inhoud
- Woonoppervlakte
- 50 m²
- Inhoud
- 140 m³
Bouw
- Type woning
- Appartement
- Soort woning
- Bovenwoning, Appartement
- Soort bouw
- Bestaande bouw
- Bouwjaar
- 2020
- Ligging
-
- In een woonwijk
- Nabij het openbaar vervoer
- Beschut gelegen
Indeling
- Aantal kamers
- 2
- Aantal slaapkamers
- 1
- Aantal badkamers
- 1
- Aantal woonlagen
- 1
- Verdieping
- 1
- Woonlagen complex
- 2
- Voorzieningen
-
- Kabel TV
- Lift
- Glasvezelaansluiting
- Douche
- Zonnepanelen
- Toilet
Buitenruimte
- Balkon
- Niet aanwezig
- Tuin
- Aanwezig (8 m², gelegen op het noorden)
- Dakterras
- Niet aanwezig
Energie
- Isolatie
- Volledig geïsoleerd
- Verwarming
- Warmtepomp
- Energielabel
- A+++
Bergruimte
- Schuur/Berging
- Niet aanwezig
Parkeergelegenheid
- Aanwezig
- Ja
- Soort parkeergelegenheid
- Vergunning
Garage
- Aanwezig
- Nee
Huurvoorwaarden
- Roken toegestaan
- Nee
- Huisdieren toegestaan
- Nee
- Doelgroep
- Werkende