Woning verhuren

Contact met de makelaar

Deze woning is gevonden buiten ons eigen netwerk. Met de knop hieronder kom je direct bij de aanbieder terecht.

Nieuw

Te huur: Appartement Sir Winston Churchillln 283 F054 in Rijswijk

Bekijk kaart
2288 DA (Plaspoelpolder)
€ 4.000 per maand
  • 210 m²
  • 4 kamers
  • Gestoffeerd

Beschrijving

Uniek riant ruim en licht 3-slaapkamer appartement, dit komt zelden op de markt.
Gelegen op de negende verdieping van een modern appartementencomplex in Rijswijk, biedt dit ruime hoekappartement met drie slaapkamers een panoramisch uitzicht op Delft en Rotterdam.
Met een indrukwekkende plafondhoogte van meer dan drie meter en kamerhoge ramen langs het grootste deel van de 35 meter hoge gevel, baadt het appartement in natuurlijk licht, wat bijdraagt aan het gevoel van vrijheid en ruimte.
De locatie is ideaal; er is een ruime keuze aan supermarkten en winkels in de buurt van het appartement, waaronder een winkelcentrum met handige parkeergelegenheid voor de grotere boodschappen.
Openbaar vervoer (trein, tram, bus) is op loopafstand en verbindt het appartement met Den Haag, Rotterdam en andere Nederlandse steden, en Schiphol.
Belangrijke uitvalswegen zijn binnen enkele minuten te bereiken (A4 Den Haag / Amsterdam (Schiphol), A12 Den Haag / Utrecht, A13 Den Haag / Rotterdam).

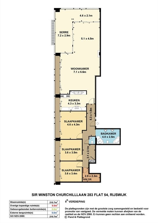
Indeling: gezamelijke entree op de begane grond, met lift naar de negende verdieping, entree van het appartement.
Alle ruimtes in het appartement zijn verbonden door een brede gang.
Met een vloeroppervlak van 210 m² en drie goed bemeten slaapkamers is dit appartement ruim genoeg voor de meeste gezinnen.
Schuifdeuren van vloer tot plafond verbinden de royale woonkamer van 70 m² met de loggia van 30 m², waardoor er een grote flexibele ruimte ontstaat om te eten, te zitten, gasten te ontvangen en te werken.
Twee grote glazen schuifdeuren in de voorgevel openen de loggia naar buiten en bieden een onbelemmerd uitzicht op het zuiden.

Het appartement beschikt over een riante aparte keuken met gasfornuis, afzuigkap, koelkast, vriezer, magnetron/oven en vaatwasser.
De wasruimte is voorzien van een wasmachine en droger en dient tevens als ruime bergruimte.
Vanuit de gang is een gastentoilet bereikbaar, terwijl de ruime privébadkamer is voorzien van een bad, een ruime douche, een hangtoilet en twee aparte wastafels met opbergkasten.

Het appartement wordt verwarmd door centrale verwarming, met extra vloerverwarming in de loggia.
In de warmere maanden maken speciale ventilatieopeningen in de gevel het mogelijk om mobiele airco's aan te sluiten om de slaapkamers en woonkamer te koelen.

In de kelder van het complex bevindt zich een aparte berging, die groot genoeg is voor het stallen van fietsen en andere grote spullen.
Het appartement beschikt over een eigen parkeerplaats in de afgesloten parkeergarage onder het complex.
Een tweede parkeerplaats is op aanvraag beschikbaar en kan voor de duur van het huurcontract worden gehuurd.

Het weten waard:

  • de huurprijs is exclusief gas, water, electra, tv en internet;
  • de waarborgsom is 1 maand;
  • de minimale huurperiode is 1 jaar;
  • gestoffeerd;
  • drie dubbel glas;
  • centrale verwarming;
  • vloerverwarming / airconditioning;
  • berging aanwezig;
  • lift aanwezig;
  • huisdieren (in overleg) / roken niet toegestaan;
  • eigen parkeerplaats;

Deze woning is zeker een bezichtiging waard!
Neem gerust contact met ons om een bezichtiging af te spreken.

Expat & Property Management - your partner in quality rentals.

Overdracht

Huurprijs
€ 4.000 per maand
  • Inclusief: Servicekosten
Aangeboden sinds
14-10-2025
Status
Te huur
Beschikbaar
Per direct
Borg
€ 4.000
Interieur
Gestoffeerd
Onderhoudsstaat
Zeer goed

Oppervlakte en inhoud

Woonoppervlakte
210 m²
Inhoud
630 m³

Bouw

Type woning
Appartement
Soort woning
Bovenwoning, Appartement
Soort bouw
Bestaande bouw
Bouwjaar
1997
Ligging
  • Aan een rustige weg
  • In een woonwijk
  • Nabij het openbaar vervoer
  • Nabij een school
  • Vrij uitzicht

Indeling

Aantal kamers
4
Aantal slaapkamers
3
Aantal badkamers
1
Aantal woonlagen
1
Voorzieningen
  • Toilet
  • Wasruimte

Buitenruimte

Balkon
Niet aanwezig
Dakterras
Niet aanwezig

Parkeergelegenheid

Aanwezig
Ja
Soort parkeergelegenheid
Garage

Garage

Aanwezig
Nee
Meld een probleem met deze woning
Contact met de makelaar Bel