Woning verhuren

Contact met de makelaar

Deze woning is gevonden buiten ons eigen netwerk. Met de knop hieronder kom je direct bij de aanbieder terecht.

Nieuw

Te huur: Appartement Peppelweg in Rotterdam

Bekijk kaart
3053 GM (Schiebroek)
€ 1.340 per maand
  • 57 m²
  • 3 kamers
  • Gemeubileerd

Beschrijving

Geweldig appartement voor delers

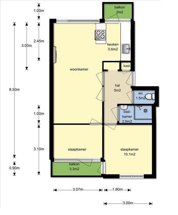
Op een unieke locatie een geweldig 2-slaapkamer appartement gelegen op de derde verdieping in Rotterdam-Noord in de trendy wijk van Hillegersberg- Schiebroek. Het appartement wordt gemeubileerd verhuurd en is voorzien van meubels, moderne keuken, badkamer en laminaat vloer. Het is gelegen nabij vele winkels, restaurants, supermarkt en openbaar vervoer.

Ingang, derde verdieping

Entree,
Woonkamer ingericht met lounge is voorzien van hoekbank, bijzettafel en het eetgedeelte is voorzien van ruime tafel met 4 stoelen en open keuken. De moderne keuken is voorzien van koel/ vries combi, vaatwasser en kookplaat.

Het appartement heeft twee balkons, 1 met uitzicht op het rododendronplein ( waar iedere vrijdag de vers markt is) en toegankelijk vanuit de keuken en 1 aan de achterzijde van de woning waar middags de zon op staat. Deze is toegankelijk vanuit de slaapkamers.

De hoofdslaapkamer is ingericht met twee persoons boxspring en kledingkast. De tweede slaapkamer is ingericht met een 2 persoons bed.
De badkamer is voorzien van douche, wasbak en spiegel.
De toilet is separaat.

Huurprijs bedraagt € 1.340,-- per maand excl. g/w/e/tv/i
Minimale huurperiode is 12 maanden
Borg bedraagt € 2.680,-- ( 2 maanden huur)

Hillegersberg-Schiebroek
Hillegersberg-Schiebroek ligt in het noorden van Rotterdam, op slechts 15 minuten van het centrum van Rotterdam. Alle soorten activiteiten kunnen worden ondernomen in de omgeving van het appartement, waaronder fietsen, sportclubs (voetbal V.O.C. / hockey H.C.R. / cricket). Luxe shoppen in de Bergse Dorpsstraat in Hillegersberg en de Peppelweg in Schiebroek en trendy bars en restaurants in de directe omgeving.
Golf
De prachtige golfbanen van de De Hooge Rotterdamsche of Seve liggen op slechts 10 minuten rijden.
Dineren
Leuke en goede restaurants zoals Abrazo, Zotte, Rijntje, de Nieuwe Chinese Muur, Gianfranco en Brasserie Thuis zijn plaatsen op 5/10 minuten afstand.
Vervoer
Openbaar vervoer zoals de tram, bus en metro liggen op 5 minuten loopafstand van de woning (Meijersplein / Melanchthon weg) met directe verbinding naar Rotterdam Centraal Station Den Haag. Het centrum van Rotterdam kan binnen 7 minuten met de metro worden bereikt. Gemakkelijke toegang tot de snelwegverbinding A13 en A20 (Den Haag / Gouda) / Amsterdam)
Rotterdam Airport ligt op 10 minuten met de taxi. Amsterdam Airport is bereikbaar per taxi of hogesnelheidstrein, beide in ongeveer 1 uur totale reistijd.

Overdracht

Huurprijs
€ 1.340 per maand
Aangeboden sinds
19-01-2026
Status
Te huur
Beschikbaar
Per 01-02-2026
Huurovereenkomst
Onbepaalde tijd
Borg
€ 2.680
Interieur
Gemeubileerd
Onderhoudsstaat
Goed

Oppervlakte en inhoud

Woonoppervlakte
57 m²
Inhoud
135 m³

Bouw

Type woning
Appartement
Soort woning
Portiekflat, Appartement
Soort bouw
Bestaande bouw
Bouwjaar
1958
Ligging
  • In een woonwijk
  • Nabij het openbaar vervoer

Indeling

Aantal kamers
3
Aantal slaapkamers
2
Aantal badkamers
1
Aantal woonlagen
1
Verdieping
5
Woonlagen complex
4
Voorzieningen
  • Douche
  • Toilet

Buitenruimte

Balkon
Aanwezig
Tuin
Niet aanwezig
Dakterras
Niet aanwezig

Energie

Energielabel
B

Bergruimte

Schuur/Berging
Niet aanwezig

Parkeergelegenheid

Aanwezig
Ja
Soort parkeergelegenheid
Openbaar

Garage

Aanwezig
Nee

Huurvoorwaarden

Roken toegestaan
Nee
Huisdieren toegestaan
Nee
Meld een probleem met deze woning