Te huur: Appartement Grote Visserijstraat in Rotterdam
Bekijk kaart- 113 m²
- 3 kamers
- Gestoffeerd
Beschrijving
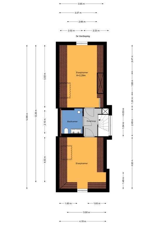
Wij bieden een prachtig 3 kamer gerenoveerd appartement aan op de 2e en 3e etage met balkon. De woning is volledig gerenoveerd! De heerlijke lichte woonkamer is voorzien van een heerlijke open keuken met koopeiland en alle apparatuur die benodigd is. Er bevinden zich twee prima formaat slaapkamers die beide gelegen zijn op de derde etage. De badkamer en toilet zijn beide volledig nieuw en gaaf betegeld.
De buurt in Rotterdam-West heeft al vele harten veroverd door de mooie oude gevels. Het is hier rustig en comfortabel wonen, in een bruisende woonomgeving met vele winkels, cafés en eetgelegenheden. De weekmarkt op het Visserijplein ligt om de hoek, op loopafstand vind je vele winkels aan de Schiedamseweg, het Mathenesserplein en de Vierambachtstraat. Met de tram of de metro zit je vrijwel direct in het centrum van Rotterdam. Snelwegen A20 en A13 zijn gemakkelijk en snel bereikbaar.
Huurvoorwaarden:
De inkomenseis voor deze woning is gesteld op 3x de huur (bruto inkomen), waarbij het hoogste salaris voor 100% mag worden meegerekend en het laagste voor 75%.
Bijzonderheden:
• De huurprijs is exclusief gas/licht/water.
• Huisdieren in overleg.
• Minimale huurperiode: 12 maanden.
• Appartement is gedeeltelijk gestoffeerd.
- In geval van woningdelers, maximaal 2 personen.
Kenmerken:
• Oppervlakte ca: 113 m2
• EPA-label: Energie label: B
• Installaties: CV ketel
• Oplevering: In overleg
• Dit appartement is in een goede staat en voorzien van;
– kunststof raamkozijnen met dubbelglas
– laminaatvloer (met ondervloer)
– badkamer met douche, toilet, design radiator, wastafel en ligbad
– keuken met kookeiland en met diverse inbouwapparatuur
– CV ketel installatie met radiatoren.
Overdracht
- Huurprijs
-
€ 2.050 per maand
- Aangeboden sinds
- 24-11-2025
- Status
- Te huur
- Beschikbaar
- In overleg
- Borg
- € 4.100
- Interieur
- Gestoffeerd
- Onderhoudsstaat
- Goed
Oppervlakte en inhoud
- Woonoppervlakte
- 113 m²
- Inhoud
- 339 m³
Bouw
- Type woning
- Appartement
- Soort woning
- Bovenwoning, Appartement
- Soort bouw
- Bestaande bouw
- Bouwjaar
- 1924
Indeling
- Aantal kamers
- 3
- Aantal slaapkamers
- 2
- Aantal badkamers
- 1
- Aantal woonlagen
- 2
Buitenruimte
- Balkon
- Aanwezig
- Dakterras
- Niet aanwezig
Energie
- Energielabel
- B