Woning verhuren

Contact met de makelaar

Deze woning is gevonden buiten ons eigen netwerk. Met de knop hieronder kom je direct bij de aanbieder terecht.

Nieuw

Te huur: Appartement Peppelweg in Rotterdam

Bekijk kaart
3052 GL (Schiebroek)
€ 1.750 per maand
  • 88 m²
  • 2 kamers
  • Gemeubileerd

Beschrijving

Stijlvol en Ruim 2-Kamerappartement met Groen Uitzicht – Perfect voor Expats!

Bent u expat en op zoek naar een comfortabel, goed gelegen appartement in Rotterdam? Welkom aan de Peppelweg 46C – een modern en ruim 3-kamerappartement in het hart van Rotterdam-Noord (Hillegersberg-Schiebroek). Deze woning biedt royale leefruimte, een groene omgeving en uitstekende openbaarvervoersverbindingen – direct voor de deur.

Bijzonder aan dit appartement:

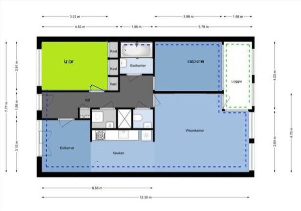
  • Halfopen, volledig uitgeruste keuken (2,38 m x 3,30 m)
  • Lichte en ruime woonkamer (ca. 12 m x 3 m / 5 m) met toegang tot een overdekte loggia/balkon op het oosten, met ochtendzon en uitzicht op groen en water
  • Ruime slaapkamer aan de achterzijde (3,85 m x 2,89 m) met uitzicht op het balkon (1,80 m x 4,20 m)
  • Badkamer met ligbad/douchecombinatie en wastafelmeubel (1,88 m x 1,96 m)
  • Toegang via lift
  • Vrij parkeren in de directe omgeving
  • Let op: de slaapkamer aan de voorzijde is momenteel verhuurd als kantoor. De huurder betaalt € 500,- per maand aan huur.

Locatie:

Het appartement ligt in een rustige en centrale wijk van Hillegersberg-Schiebroek, met een ideale balans tussen rust, groen en stedelijke voorzieningen. Het winkelgebied Peppelweg/Rododendronplein ligt op loopafstand, met supermarkten, bakkers, restaurants en een gezellige weekmarkt op vrijdag. Openbaar vervoer is uitstekend geregeld met tram, metro en RandstadRail direct voor de deur – waardoor Rotterdam Centraal en Den Haag snel bereikbaar zijn. Perfect voor forenzen!

Indeling:

  • Centrale entree met lift naar de derde verdieping
  • Gedeelde entree van het appartement
  • Hal met was-/stookruimte en separaat toilet (1,12 m x 1,18 m)
  • Ruime woonkamer met toegang tot het balkon/loggia
  • Lichte, halfopen keuken
  • Eén slaapkamer
  • Eén verhuurde kamer met maandelijkse huuropbrengst
  • Badkamer met ligbad/douche en wastafel

Huurprijs en voorwaarden:

Huurprijs: € 1750,– excl. gas, water, elektra, tv/internet

Waarborgsom: € 3500,–

Minimale huurperiode: 12 maanden

Overdracht

Huurprijs
€ 1.750 per maand
Aangeboden sinds
15-10-2025
Status
Te huur
Beschikbaar
Per 01-11-2025
Huurovereenkomst
Onbepaalde tijd
Looptijd
Minimaal 12 maanden
Borg
€ 3.500
Interieur
Gemeubileerd
Onderhoudsstaat
Goed

Oppervlakte en inhoud

Woonoppervlakte
88 m²
Inhoud
225 m³

Bouw

Type woning
Appartement
Soort woning
Galerijflat, Appartement
Soort bouw
Bestaande bouw
Bouwjaar
1996
Ligging
  • Aan een park
  • In een woonwijk
  • Vrij uitzicht

Indeling

Aantal kamers
2
Aantal slaapkamers
1
Aantal badkamers
1
Aantal woonlagen
1
Voorzieningen
  • Bad
  • Toilet

Buitenruimte

Balkon
Aanwezig
Tuin
Niet aanwezig
Dakterras
Niet aanwezig

Energie

Energielabel
B

Bergruimte

Schuur/Berging
Niet aanwezig

Parkeergelegenheid

Aanwezig
Ja
Soort parkeergelegenheid
Openbaar

Garage

Aanwezig
Nee

Huurvoorwaarden

Roken toegestaan
Nee
Huisdieren toegestaan
Nee
Doelgroep
Werkende
Meld een probleem met deze woning
Contact met de makelaar Bel