Woning verhuren

Contact met de makelaar

Deze woning is gevonden buiten ons eigen netwerk. Met de knop hieronder kom je direct bij de aanbieder terecht.

Nieuw

Te huur: Appartement Gedempte Zalmhaven in Rotterdam

Bekijk kaart
3016 DT (Nieuwe Werk)
€ 2.495 per maand
  • 85 m²
  • 3 kamers
  • Gemeubileerd

Beschrijving

Luxe gemeubileerd 3-kamer appartement aan de Gedempte Zalmhaven te Rotterdam. Dit net afgewerkte hoek-appartement is gelegen op de 17e etage met skyline uitzicht over 'de Maas' en 'Het park'. Dit prestigieus appartementencomplex aan de Maas ligt in het populaire Scheepvaartkwartier te midden van groene parken, historie en kunst, cultuur, het stadscentrum en alles wat Rotterdam te bieden heeft.

In De Zalmhaven woont u vlakbij de oever van de Maas, het groenste gebied van de binnenstad en op loopafstand van het culturele hart van Rotterdam. De Zalmhaven bevindt zich in het originele, authentieke Scheepvaartkwartier. Hier woont u chic-maritiem, groen en tegelijkertijd urbaan. De zalmhaven is tevens goed te bereiken met de auto en met de tram en waterbus op loopafstand.

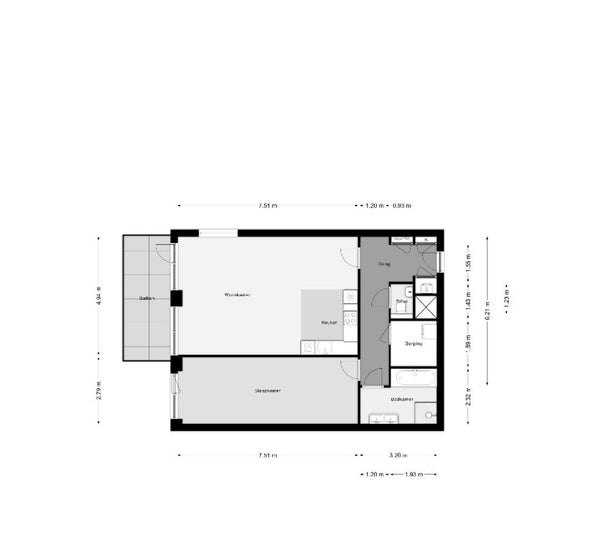
IndelingBegane grondGezamenlijke royale entree met brievenbussen, bellentableau, liften en toegang tot de garage. 17e etageU komt het appartement binnen in de L vormige hal met toegang tot alle vertrekken.De woonkamer met open keuken vormt het hart van de woning. De woonkamer beschikt over een 3-persoons bank en bijbehorende fauteuil, een salontafel, vloerkleed, tv en tv-meubel. Verder scheidt de eettafel met 4 stoelen, het zitgedeelte van de keuken.De keuken is afgewerkt met strakke, zwarte kasten en een wit keukenblad en beschikt over een inductiekookplaat, vaatwasser, afzuigkap, combi-oven/magnetron, koelkast, vriezer en veel opbergruimte.Direct vanuit de woonkamer heeft u toegang tot de 2 slaapkamers. Slaapkamer 1 is ingericht met een 2 persoons bed en kledingkast. Slaapkamers 2 ( kamer 2 wordt binnenkort gerealiseerd ) kan optioneel ingedeeld worden als eveneens een slaapkamer of een kantoor.De badkamer is net afgewerkt met grijze tegels en een marmerlook ligbad met bubbelfunctie. Ook beschikt de badkamer over een inloopdouche en wastafelmeubel en spiegel. Het separate toilet met fontein heeft dezelfde marmerlook als in de badkamer en is bereikbaar vanuit de hal.Inpandige berging waar de wasmachine staat opgesteld.Vanuit de woonkamer is er ook toegang tot een ruim balkon met uitzicht op de Maas. Hier geniet u van een prachtige zonsondergang.Het gehele appartement is afgewerkt en ingericht met hoogwaardige kwaliteit materialen en meubels. De glazen afscheidingswanden tussen de woonkamer en slaapkamers worden nog geplaatst.De parkeerplaats in de parkeergarage is optioneel erbij te huren voor €150 per maand.De huurprijs wordt verhoogt met een voorschot voor stookkosten.

Overdracht

Huurprijs
€ 2.495 per maand
  • Inclusief: Servicekosten
Prijs per m²
€ 29
Aangeboden sinds
10-02-2026
Status
Te huur
Beschikbaar
Per 11-02-2026
Borg
€ 2.350
Interieur
Gemeubileerd

Oppervlakte en inhoud

Woonoppervlakte
85 m²

Bouw

Type woning
Appartement
Soort woning
Galerijflat
Soort bouw
Bestaande bouw
Bouwjaar
2021

Indeling

Aantal kamers
3
Aantal slaapkamers
2
Voorzieningen
  • Bad
  • Lift
  • Bergruimte

Buitenruimte

Balkon
Aanwezig
Dakterras
Niet aanwezig

Energie

Verwarming
CV-ketel
Energielabel
A++

Bergruimte

Schuur/Berging
Aanwezig

Parkeergelegenheid

Aanwezig
Ja

Garage

Aanwezig
Ja

Huurvoorwaarden

Huisdieren toegestaan
Nee
Meld een probleem met deze woning