Woning verhuren

Contact met de makelaar

Deze woning is gevonden buiten ons eigen netwerk. Met de knop hieronder kom je direct bij de aanbieder terecht.

Te huur: Huis Soendastraat 1 in Haarlem

Bekijk kaart
2022 XT (Soendabuurt)
€ 3.665 per maand
  • 111 m²
  • 5 kamers
  • Gestoffeerd

Beschrijving

WAT BEWEEGT JOU? De verhuurder van deze woning ‘beweegt’ altijd graag naar iets duurzaams en kwaliteit! Het doel: Sfeervol wonen in een volledig gerenoveerde eengezinswoning met energielabel A.

Gelegen aan de geliefde Soendastraat in Haarlem is deze prachtige, volledig gerenoveerde tussenwoning gelegen. De woning beschikt over een woonoppervlakte van ca. 111 m² en voelt na de renovatie totaal niet als een authentieke woning met bouwjaar 1916, door de hoogwaardige renovatie voelt alles als nieuw. Bovendien beschikt de woning over energielabel A (dit is uitzonderlijk in deze wijk) wat zorgt voor comfortabele én duurzame woongenoot.

Met een woonoppervlakte die ruim 10% groter is dan het straatgemiddelde én een perceel dat eveneens groter is, biedt deze woning meer ruimte dan gebruikelijk in de Indischewijk.

De Soendastraat ligt midden in de gezellige en kindvriendelijke Indischewijk. Een buurt met veel jonge gezinnen en een prettige, rustige sfeer. Op korte loopafstand bevinden zich diverse voorzieningen zoals supermarkten, scholen (inclusief de Internationale School Haarlem – ISH) en sportmogelijkheden. Het historische centrum van Haarlem ligt op fietsafstand, net als het treinstation. Uitvalswegen richting Amsterdam, Schiphol en Alkmaar zijn binnen enkele minuten bereikbaar.

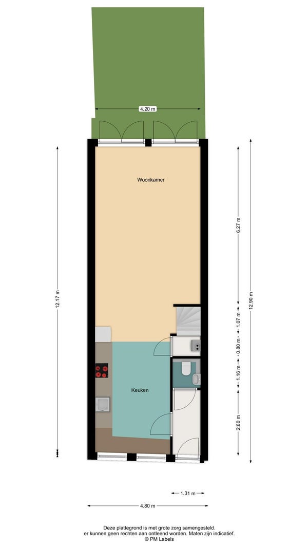
Parterre: Entree met separaat toilet geeft toegang tot de lichte en moderne leefkeuken voorzien van diverse inbouwapparatuur waaronder een grote oven, moderne inductie kookplaat, koel,-/ vriescombinatie en een vaatwasser, tevens is er een relaxte zitbank direct aan de raampartij. Royale woonkamer met grote dubbele openslaande deuren naar de achtertuin, waardoor binnen en buiten prachtig in elkaar overlopen. De tuin is onderhoudsvriendelijk aangelegd en fijn privaat.

Eerste verdieping: Centrale overloop geeft toegang tot twee volwaardige slaapkamers en een luxe badkamer voorzien van inloopdouche, ligbad en wastafelmeubel.

Tweede verdieping: Wederom geeft hier de overloop toegang aan twee slaapkamers en een tweede badkamer met douche, toilet, wastafelmeubel en in dit geval ook de aansluitingen voor een wasmachine/wasdroger. Hierdoor is de woning bijzonder geschikt voor gezinnen, logees of werken vanuit huis.

Bijzonderheden:

  • Woonoppervlakte ca.111m² en inhoud van 397m³
  • De huurder dient naast de maandelijkse huursom zorg te dragen voor de kosten van gas, elektra, water, TV/Internet en Gemeentelijke belastingen
  • De woning wordt deels gestoffeerd aangeboden, dit houdt in dat de vloeren zijn afgewerkt en dat de lampen hangen. Voor de raamdecoratie kan de huurder naar eigeninzicht iets voor regelen
  • Huurcontract van minimaal 18 maanden welke stilzwijgend over zal lopen in een onbepaalde tijd situatie (Model A huurovereenkomst)
  • Gunstige ligging ten opzichte van alle faciliteiten die Haarlem te bieden hebben
  • Parkeergelegenheid op basis van een parkeervergunning te verkrijgen via de gemeente Haarlem, maar ook vrij van kosten in de omgeving naar gelang daar plaats is
  • Huisdieren en roken zijn/is niet toegestaan
  • Verhuurder geeft duidelijk de voorkeur de woning niet te verhuren aan woningdelers
  • Deze woning kan worden gehuurd door een huurder met een eigen maandelijks stabiel toereikend inkomen uit werk en helaas niet met een garantsteller of een huurder die de woning niet zelf zal bewonen.

Kortom: een instapklare, ruime en energiezuinige woning op een perfecte locatie in Haarlem. Hier hoef je alleen nog maar je spullen neer te zetten en te genieten.

Overdracht

Huurprijs
€ 3.665 per maand
Aangeboden sinds
03-12-2025
Status
Te huur
Beschikbaar
Per direct
Huurovereenkomst
Onbepaalde tijd
Looptijd
Minimaal 18 maanden
Borg
€ 7.280
Interieur
Gestoffeerd
Onderhoudsstaat
Zeer goed

Oppervlakte en inhoud

Woonoppervlakte
111 m²
Inhoud
397 m³

Bouw

Type woning
Huis
Soort woning
Hoekwoning, Eengezinswoning
Soort bouw
Bestaande bouw
Bouwjaar
1916
Ligging
  • Aan een rustige weg
  • In een woonwijk
  • Nabij het openbaar vervoer
  • Nabij een winkelcentrum

Indeling

Aantal kamers
5
Aantal slaapkamers
4
Aantal badkamers
2
Aantal woonlagen
3
Voorzieningen
  • Bad
  • Kabel TV
  • Glasvezelaansluiting
  • Douche
  • Bergruimte
  • Toilet

Buitenruimte

Balkon
Niet aanwezig
Tuin
Aanwezig (21 m², gelegen op het noorden)
Dakterras
Niet aanwezig

Energie

Isolatie
Volledig geïsoleerd
Energielabel
A

Bergruimte

Schuur/Berging
Niet aanwezig

Parkeergelegenheid

Aanwezig
Nee

Garage

Aanwezig
Nee

Huurvoorwaarden

Roken toegestaan
Nee
Huisdieren toegestaan
Nee
Doelgroep
Werkende
Meld een probleem met deze woning