Woning verhuren

Contact met de makelaar

Deze woning is gevonden buiten ons eigen netwerk. Met de knop hieronder kom je direct bij de aanbieder terecht.

Nieuw

Te huur: Huis Pastoriestraat in Pernis Rotterdam

Bekijk kaart
3195 HT (Pernis)
€ 3.000 per maand
  • 120 m²
  • 4 kamers
  • Gemeubileerd

Beschrijving

Wonen in een comfortabele, ruime woning aan een rustige straat in Pernis Rotterdam!

Deze woning uit 1996 is gelegen aan de rustige Pastoriestraat 56 in de geliefde woonwijk van Pernis, Rotterdam. De buurt kenmerkt zich door een ontspannen en veilige sfeer, ideaal voor gezinnen en rustzoekers. De woning ligt aan een kalme straat, waardoor u volop kunt genieten van privacy en rust.

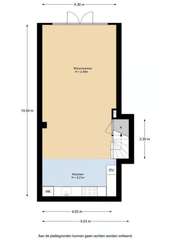
De royale woonkamer van 43m² met een gezellig tuinkamergevoel zorgt voor veel licht en ruimte om te ontspannen of gasten te ontvangen. Hier ervaart u het ultieme woongenot met een fijne verbinding naar de tuin.

De keuken van 9m² is functioneel en modern, uitgerust met een gaskookplaat, ingebouwde apparaten waaronder een combi-magnetron, afzuigkap, koelkast, oven en een praktische enkele hendel mengkraan. Deze keuken biedt alles wat u nodig heeft voor het bereiden van uw favoriete maaltijden.

De woning beschikt over drie slaapkamers, variërend in grootte van 8m², 17m² en nogmaals 8m². Hierdoor is er voldoende ruimte voor zowel ouders, kinderen als eventueel een werk- of hobbykamer.

Er zijn twee badkamers van elk 6m². Eén badkamer is voorzien van een bad en wastafel, terwijl de andere beschikt over een bad, aparte douche en wastafel. Zo ervaart u comfort en gemak voor het hele gezin.

De zonnige achtertuin van 59m² op het zuiden is een ideale plek om te ontspannen, te tuinieren of gezellig buiten te zitten. De totale kavelgrootte bedraagt 173m², wat voldoende ruimte biedt voor vele buitenactiviteiten.

Interesse? Neem snel contact op voor een bezichtiging en ontdek wat deze prachtige woning u te bieden heeft!

Overdracht

Huurprijs
€ 3.000 per maand
Aangeboden sinds
18-11-2025
Status
Te huur
Beschikbaar
Per direct
Huurovereenkomst
Tijdelijke verhuur
Looptijd
Maximaal 24 maanden
Borg
€ 6.000
Interieur
Gemeubileerd
Onderhoudsstaat
Zeer goed

Oppervlakte en inhoud

Woonoppervlakte
120 m²
Inhoud
425 m³

Bouw

Type woning
Huis
Soort woning
Hoekwoning, Eengezinswoning, Dijkwoning
Soort bouw
Bestaande bouw
Bouwjaar
1996
Ligging
  • Aan een rustige weg
  • In een woonwijk

Indeling

Aantal kamers
4
Aantal slaapkamers
3
Aantal badkamers
2
Aantal woonlagen
3
Voorzieningen
  • Bad
  • Kabel TV
  • Glasvezelaansluiting
  • Buitenzonwering
  • Douche
  • Dakraam
  • Toilet

Buitenruimte

Balkon
Niet aanwezig
Tuin
Aanwezig (58 m², gelegen op het zuiden)
Dakterras
Niet aanwezig

Energie

Isolatie
Dubbele beglazing, Vloerisolatie, Volledig geïsoleerd, Dakisolatie, Muurisolatie
Warm water
Gas boiler
Cv-ketel
Remaha (Gas, uit 2015, Eigendom)
Energielabel
A

Bergruimte

Schuur/Berging
Aanwezig

Parkeergelegenheid

Aanwezig
Ja
Soort parkeergelegenheid
Openbaar

Garage

Aanwezig
Nee

Huurvoorwaarden

Roken toegestaan
Nee
Huisdieren toegestaan
Nee
Doelgroep
Werkende
Inkomenseis
€ 13
Maximaal aantal bewoners
5
Meld een probleem met deze woning
Contact met de makelaar Bel