Woning verhuren

Contact met de makelaar

Deze woning is gevonden buiten ons eigen netwerk. Met de knop hieronder kom je direct bij de aanbieder terecht.

Transparante huurprijs

De makelaar, die deze woning aanbiedt, heeft een gedetailleerde opbouw van de huurprijs gegeven. Hierdoor is inzichtelijk wat de totale huurprijs is (inclusief bijkomende kosten zoals elektriciteit, internet of servicekosten), zodat jij weet waar je aan toe bent. Als een makelaar de totale huurprijs invult, noemen wij dit een transparante huurprijs.

Wij doen er alles aan om jou duidelijkheid te geven over de te betalen huurprijs. Heb je toch twijfels of zie je een andere huurprijs op de website van de makelaar? Laat het ons weten.

Meer informatie
Nieuw

Te huur: Appartement Sophiastraat in Breda

Bekijk kaart
4811 EK (Valkenberg)
Kale huurpijs: € 810 per maand
  • 50 m²
  • 3 kamers
  • Gestoffeerd

Beschrijving

Gelieve uw interesse uitsluitend per e-mail/ Pararius kenbaar te maken.

Niet geschikt voor woningdelers.

Te huur geheel gerenoveerd, sfeervol appartement aan de

Sophiastraat, nabij het centrum, het Valkenberg en het centraal

station.

Begane grond: Separate inpandige ruime (fietsen)berging. Deze

berging is privé en behoort tot de woning.

Gedeelde opgang, trappenhuis naar tweede verdieping: entree

woning. Hal welke toegang geeft tot alle ruimtes. Aparte toilet en

inpandige berging met wasmachine-aansluiting. Aan de voorzijde een

sfeervolle woonkamer. Open keuken voorzien van een elektrische

kookplaat, oven, afzuigkap, koelvriescombinatie en vaatwasser. De

keuken is voorzien van een bar om aan te eten.

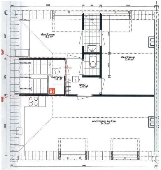
Vanuit de woonkamer is de grote slaapkamer (circa 13 m2) aan de

achterzijde te bereiken Kleine, luxe badkamer met wastafel en

douche. Tweede slaapkamer circa 08 m2.

Het geheel is compleet gerenoveerd en in uitstekende staat. De

woning is voorzien van een sfeervolle pvc-vloer met visgraat motief.

De woning heeft een eigen aansluiting voor gas, water en elektra.

Huurprijs:

€.950,00 incl. servicekosten. Exclusief energie en gebruikerslasten.

Overdracht

Kale huurprijs
€ 810 per maand
Aangeboden sinds
10-11-2025
Status
Te huur
Beschikbaar
Per 01-12-2025
Huurovereenkomst
Onbepaalde tijd
Looptijd
Minimaal 12 maanden
Borg
€ 950
Interieur
Gestoffeerd

Prijsopbouw

Kale huurprijs
€ 810
Stoffering
€ 140
Totale huurprijs
€ 950

Nog zelf regelen: gas, water, elektriciteit, internet, televisie en meubels

Oppervlakte en inhoud

Woonoppervlakte
50 m²

Bouw

Type woning
Appartement
Soort woning
Portiekflat
Soort bouw
Bestaande bouw
Bouwjaar
1961
Ligging
Nabij het openbaar vervoer

Indeling

Aantal kamers
3
Aantal slaapkamers
2
Aantal badkamers
1
Aantal woonlagen
2

Buitenruimte

Balkon
Niet aanwezig
Tuin
Niet aanwezig
Dakterras
Niet aanwezig

Bergruimte

Schuur/Berging
Niet aanwezig

Parkeergelegenheid

Aanwezig
Nee

Garage

Aanwezig
Nee

Huurvoorwaarden

Roken toegestaan
Nee
Huisdieren toegestaan
Nee
Meld een probleem met deze woning
Contact met de makelaar Bel