Woning verhuren

Contact met de makelaar

Deze woning is gevonden buiten ons eigen netwerk. Met de knop hieronder kom je direct bij de aanbieder terecht.

Nieuw

Te huur: Appartement Dirk Hartogstraat in Breda

Bekijk kaart
4812 GE (Heuvel)
€ 1.750 per maand
  • 77 m²
  • 3 kamers
  • Kaal

Beschrijving

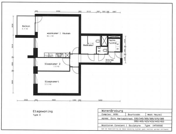
Dit appartement op de 3e verdieping (type E) heeft een totale woonoppervlakte van 77m² met oa. woonkamer/keuken van ca 32m2 en heeft 2 slaapkamers, en aparte toilet, badkamer, een technische ruimte en een balkon op het westen.

Dit appartement heeft een parkeerplaats naast het complex, een eigen berging, gemeenschappelijke fietsenberging en twee liften. Dit appartement is gesitueerd in de exclusieve woontoren "Constant" in een parkachtige omgeving aan de rand van het groene buitengebied van Breda, doch letterlijk op fietsafstand van het centrum. In de woning ligt een laminaatvloer welke ter overname is.

Begane grond
Hier treft u de entree aan van het complex. Dit betreft een afgesloten ruime centrale entree met de opstelling van de brievenbussen, het trappenhuis, 2 liften en toegang tot de bergingen

Hal/entree
De hal/ entree biedt toegang tot de living/keuken, badkamer, 2 slaapkamers, de toiletruimte, technische ruimte met aansluiting wasmachine.

Toiletruimte
De separate betegelde toiletruimte heeft een wandcloset en fonteintje.

Badkamer
Betegelde badkamer van ca. 6m² met douche, toilet en vaste wastafel.

Technische ruimte
In de technische ruimte treft u de mechanische ventilatie-unit vv van warmteterugwinfunctie aan..

Berging
Beneden in het gebouw is een privé berging aanwezig.

Het balkon (6,3m2) ligt op het westen

De keuken heeft een keramische kookplaat, combi-magnetron, vaatwasser, wasemkap en een inbouwkoelkast.

Er is een eigen parkeerplaats naast het complex gereserveerd.

Het complex is gelegen in het "Woonpark Sculptura", ten zuidwesten van Breda. Deze groene wijk met een geheel eigen karakter, grenst aan de ecologische zone "het Mastbos" en is daarmee onderdeel van de groene long die de bruisende Bredase binnenstad verbindt met het buitengebied. "Woonpark Sculptura" grenst aan het recentelijk aangelegde park en is tevens op korte afstand gesitueerd van de gezellige oude dorpskern van Princenhage.

Het centrum van Breda met haar royale voorzieningen niveau is op fietsafstand gelegen. Tevens is er een uitstekende busverbinding naar de omliggende woonwijken en het Centraal Station. Het rijkswegennet A16, A27, A58 en A59 is eenvoudig te bereiken.

De appartementen in dit complex worden volledig verwarmd door middel van vloerverwarming. Hierdoor zijn er geen radiatoren aanwezig, wat een extra ruimtelijk effect geeft. Dit klimaatsysteem zorgt ervoor dat het appartement op aangename temperatuur blijft, waarbij de temperatuur per ruimte instelbaar is. Dit appartement beschikt tevens over een comfort koeling systeem. Dat wil zeggen dat het koele water dat tijdens de zomer door de vloerleidingen wordt gepompt, de warmte uit de woning opneemt. Zo blijven alle ruimtes ook tijdens de warme zomerdagen op een aangename temperatuur. Voor de ventilatie binnen het appartement is een mechanische ventilatie met warmte-terugwininstallatie aanwezig.

  • Aan deze presentatie kunnen geen rechten ontleend worden.
    De in de woning aanwezige vloer is ter overname
    De huurprijs is exclusief servicekosten € 49,76 en excl parkeerplaats 35,00 (buiten)

Overdracht

Huurprijs
€ 1.750 per maand
Aangeboden sinds
04-12-2025
Status
Te huur
Beschikbaar
Per 01-02-2026
Huurovereenkomst
Onbepaalde tijd
Looptijd
Minimaal 12 maanden
Borg
€ 1.750
Interieur
Kaal
Onderhoudsstaat
Goed

Oppervlakte en inhoud

Woonoppervlakte
77 m²
Inhoud
300 m³

Bouw

Type woning
Appartement
Soort woning
Portiekflat, Appartement
Soort bouw
Bestaande bouw
Bouwjaar
2011
Ligging
  • Nabij het openbaar vervoer
  • Open gebied

Indeling

Aantal kamers
3
Aantal slaapkamers
2
Aantal woonlagen
1
Voorzieningen
Toilet

Buitenruimte

Balkon
Aanwezig
Tuin
Niet aanwezig
Dakterras
Niet aanwezig

Energie

Energielabel
A

Bergruimte

Schuur/Berging
Niet aanwezig

Parkeergelegenheid

Aanwezig
Ja
Soort parkeergelegenheid
Op eigen terrein

Garage

Aanwezig
Nee

Huurvoorwaarden

Roken toegestaan
Nee
Huisdieren toegestaan
Nee
Doelgroep
Werkende
Meld een probleem met deze woning