Woning verhuren

Contact met de makelaar

Deze woning is gevonden buiten ons eigen netwerk. Met de knop hieronder kom je direct bij de aanbieder terecht.

Nieuw

Te huur: Appartement Denneweg 70 A in Den Haag

Bekijk kaart
2514 CJ (Voorhout)
€ 4.000 per maand
  • 195 m²
  • 5 kamers
  • Gestoffeerd

Beschrijving

Denneweg 70-A Den Haag met parkeerplaats

Op een van de mooiste locaties van Den Haag bevindt zich deze werkelijk schitterende, luxe bovenwoning. Gelegen aan de charmante Denneweg, bekend om zijn kunstgalerieën, exclusieve boetieks en uitstekende restaurants, bevindt u zich op loopafstand van het prachtige Lange Voorhout en het Centraal Station. Ook de statige lanen en sfeervolle pleinen van Den Haag liggen letterlijk om de hoek. De woning beschikt over vier ruime slaapkamers, twee badkamers en zelfs een privé sauna, ideaal om heerlijk te ontspannen na een drukke dag. Het royale zonneterras met buitenhaard maakt het mogelijk om het hele jaar door van de buitenlucht te genieten.

Indeling:
Entree, hal met trap naar de 1e verdieping. Hal, overloop, Ruime doorgebroken woonkamer met een open haard welke middels een schuifseperatie toegang bied tot de separate zitkamer (incl B&O Home Cinema set) De woning beschikt over een prachtige luxe keuken volledig voorzien van inbouwapparatuur. De woonkeuken is verder voorzien van een ingebouwde open haard en ruim genoeg voor een eettafel met zes stoelen.

1e verdieping: ruime overloop met vaste kasten, master bedroom (incl B&O tv) voorzien van eigen luxe badkamer met douche, ruim bad, wastafelmeubel en toilet. Op deze verdieping vind u verder nog twee extra slaapkamers en een tweede badkamer met douche en toilet.

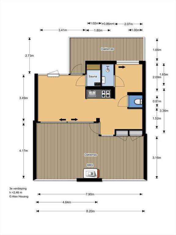
2e verdieping: open ruimte welke voor meerdere doeleinden is te gebruiken, bijvoorbeeld als slaapkamer. U vindt hier onder meer een extra keuken, sauna, badkamer en toilet. De hoofdruimte geeft aan weerszijden toegang tot een buitenruimte. Ca. 30m2 terras voorzien van buitenhaard.

Kenmerken:

  • minimale huurtermijn is 12 maanden
  • huurprijs is exclusief nutsvoorzieningen
  • huurprijs inclusief parkeerplaats
  • borg is één maand huur
  • Energielabel is C
  • 4 ruime slaapkamers
  • 2 badkamers
  • privé sauna

Overdracht

Huurprijs
€ 4.000 per maand
  • Exclusief: Servicekosten
Aangeboden sinds
19-01-2026
Status
Te huur
Beschikbaar
Per direct
Interieur
Gestoffeerd
Onderhoudsstaat
Zeer goed

Oppervlakte en inhoud

Woonoppervlakte
195 m²
Inhoud
650 m³

Bouw

Type woning
Appartement
Soort woning
Bovenwoning, Appartement
Soort bouw
Bestaande bouw
Bouwjaar
1905

Indeling

Aantal kamers
5
Aantal slaapkamers
3
Aantal badkamers
1
Aantal woonlagen
2
Verdieping
2
Voorzieningen
  • Bad
  • Douche
  • Toilet

Buitenruimte

Balkon
Niet aanwezig
Tuin
Niet aanwezig
Dakterras
Niet aanwezig

Energie

Isolatie
Gedeeltelijk dubbele beglazing
Warm water
CV-ketel
Energielabel
C

Parkeergelegenheid

Aanwezig
Ja
Soort parkeergelegenheid
Op eigen terrein

Garage

Aanwezig
Ja
Omschrijving
Parkeerplaats
Meld een probleem met deze woning