Woning verhuren

Contact met de makelaar

Deze woning is gevonden buiten ons eigen netwerk. Met de knop hieronder kom je direct bij de aanbieder terecht.

Onder optie

Te huur: Appartement Raamstraat in Dordrecht

Bekijk kaart
3311 VR (Centrum)
€ 1.700 per maand
  • 87 m²
  • 3 kamers
  • Gestoffeerd

Beschrijving

Lindershof - Wonen in hartje binnenstad Dordrecht !

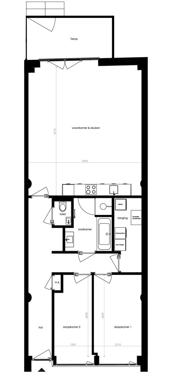
Momenteel bieden wij dit royale en gestoffeerde 3 kamer huurappartement aan van ca. 87 m2 met o.a. 2 slaapkamers, vloerverwarming, energielabel A+ en eigen buitenruimte.

Het appartement is hoogwaardig afgewerkt en voorzien van een nette pvc vloer met hoge plinten, moderne keuken met alle denkbare inbouwapparatuur, luxe badkamer voorzien van ligbad en inloopdouche en badmeubel.

Dit appartement is perfect voor wie op zoek is naar een comfortabel en instapklaar huurappartement in het historisch centrum van Dordrecht.

Over het Lindershof;
Ruimte, rust en comfortabel wonen in het historisch centrum van Dordrecht.
De gevels van het gebouw zijn hersteld en op subtiele manier voorzien van ramen, waardoor oud en nieuw nauwelijks van elkaar te onderscheiden zijn.
Aan de achterzijde van het gebouw ontstaat een hof, waaraan het project haar naam dankt.

Algemeenheden:

  • Duurzaam, gasloos wonen en voorzien van vloerverwarming
  • Energielabel A+
  • Extra hoge woonkamerplafond
  • Bijbehorende berging in de onderbouw
  • Voorschot warmte en servicekosten totaal €200,- p.m.
  • Parkeerabonnement aan te vragen via de openbare garages om de hoek
  • Gezamenlijke binnenhof en fietsenstalling
  • Oplevering november

Huurvoorwaarden:
Inkomenscriteria ca. 3 x kale huur netto ( = inkomen per maand )
(2e inkomen kan voor 100% worden meegerekend)

Huurovereenkomst onbepaalde tijd, minimale duur van 12 maanden.
Waarborgsom € 3.400,-
Toewijzing op basis van o.a inkomen, positieve screening en kredietwaardigheid.

Enthousiast geworden?
Neem contact op met ons kantoor voor een bezichtiging.

Meer woninginformatie bekijken?

Log in of registreer gratis.

Overdracht

Huurprijs
€ 1.700 per maand
  • Exclusief: Servicekosten
Aangeboden sinds
21-10-2025
Status
Onder optie
Beschikbaar
Per 04-11-2025
Bijzonderheden
Monumentaal pand
Interieur
Gestoffeerd
Onderhoudsstaat
Zeer goed

Oppervlakte en inhoud

Woonoppervlakte
87 m²
Perceeloppervlakte
87 m²
Inhoud
300 m³

Bouw

Type woning
Appartement
Soort woning
Portiekflat, Appartement
Soort bouw
Nieuwbouw
Bouwjaar
2023
Ligging
In het centrum

Indeling

Aantal kamers
3
Aantal slaapkamers
2
Aantal woonlagen
1
Voorzieningen
  • Lift
  • Mechanische ventilatie

Buitenruimte

Balkon
Niet aanwezig
Tuin
Aanwezig (12 m²)
Tuinbeschrijving
zonneterras
Dakterras
Niet aanwezig

Energie

Verwarming
Volledige vloerverwarming, Warmtepomp
Warm water
Elektrische boiler
Energielabel
A+

Bergruimte

Schuur/Berging
Aanwezig
Omschrijving
Inpandig

Parkeergelegenheid

Aanwezig
Ja
Soort parkeergelegenheid
Betaald

Garage

Aanwezig
Nee
Meld een probleem met deze woning
Contact met de makelaar Bel