Woning verhuren

Contact met de makelaar

Deze woning is gevonden buiten ons eigen netwerk. Met de knop hieronder kom je direct bij de aanbieder terecht.

Transparante huurprijs

De makelaar, die deze woning aanbiedt, heeft een gedetailleerde opbouw van de huurprijs gegeven. Hierdoor is inzichtelijk wat de totale huurprijs is (inclusief bijkomende kosten zoals elektriciteit, internet of servicekosten), zodat jij weet waar je aan toe bent. Als een makelaar de totale huurprijs invult, noemen wij dit een transparante huurprijs.

Wij doen er alles aan om jou duidelijkheid te geven over de te betalen huurprijs. Heb je toch twijfels of zie je een andere huurprijs op de website van de makelaar? Laat het ons weten.

Meer informatie
Nieuw

Te huur: Appartement Weissenbruchlaan in Rotterdam

Bekijk kaart
3054 LN (Hillegersberg Noord)
Kale huurpijs: € 2.395 per maand
  • 84 m²
  • 3 kamers
  • Gemeubileerd

Beschrijving

Weissenbruchlaan ****** Rotterdam

UITSLUITEND REAGEREN VIA EMAIL, TELEFONISCH WORDEN GEEN AFSPRAKEN INGEPLAND!

Huurperiode: minimaal 12 maanden
Woning (ca.84m2).

Zeer charmant volledig gemeubileerd 3-kamer appartement gelegen op de tweede verdieping met uitzicht op de Bergse Voorplas in Hillegersberg. Het hele appartement is gestoffeerd en volledig gemeubileerd en voorzien van mooie sfeerverlichting en dubbelglas en vloerverwarming.

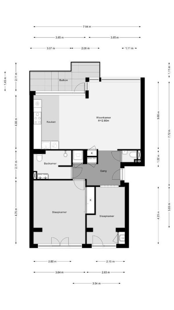
Indeling:
Op de begane grond is de centrale entree met een lift en trappenhuis naar de verdiepingen en de kelder. Bij binnenkomst van het appartement op de tweede verdieping is de entree, de bergkast, wasruimte en het toilet. Via de hal kom je in de woon-eetkamer die is voorzien van een heerlijk balkon.

De luxe open keuken is voorzien van de benodigde apparatuur zoals magnetron combi-oven, gasfornuis, een vaatwasser, quooker keukenkraan en een koel-vriescombinatie. De woning heeft 2 ruime slaapkamers gelegen aan de achterzijde van het appartement. De badkamer heeft een inloopdouche, een dubbele wastafelcombinatie en een bidet. In de kelder van het appartementen complex bevindt zich een opslagruimte. Op ca.200 meter afstand van de entree/begane grond is het gratis parkeren.

Hillegersberg:
Deze rustige wijk genst aan het Lage Bergse Bos. Het winkelplein aan de Van Beethovensingel met tram- en bushalte zijn om de hoek gelegen. Binnen 100 meter is de rechtstreekse tramverbinding naar Rotterdam Centraal station. Diverse middelbare scholen, vele sportverenigingen, de Bergse Plassen, de Rotte Meren en de winkels en horeca rondom de Bergse Dorpsstraat bevinden zich op loopafstand. Het centrum van Rotterdam ligt op ca.20 minuten fietsafstand. Rotterdam The Hague Airport en de snelwegen rondom Rotterdam zijn snel bereikbaar.

Bijzonderheden:

  • Energielabel C
  • Woonoppervlakte 84 m²
  • Dubbel glas
  • Roken niet toegestaan

Huurprijs:
Voor het huren van deze woning geldt een inkomenseis van 3 keer de maandhuur als bruto salaris.

  • Studenten zijn niet toegestaan
  • Huurprijs per maand : € 2.395,- excl. gas, licht en water en gemeentelijke lasten woonlasten.
  • Service kosten / meubilering: €100,- per maand
  • Waarborgsom: € 4.500,-
  • Huurcontract minimaal 12 maanden
  • Beschikbaar per direct.
  • Er kunnen geen rechten worden ontleend aan de gegevens, tekst en foto's van dit object.

Meer woninginformatie bekijken?

Log in of registreer gratis.

Overdracht

Kale huurprijs
€ 2.395 per maand
Aangeboden sinds
06-11-2025
Status
Te huur
Beschikbaar
Per 10-12-2025
Huurovereenkomst
Onbepaalde tijd
Borg
€ 4.500
Interieur
Gemeubileerd

Prijsopbouw

Kale huurprijs
€ 2.395
Meubels
€ 100
Totale huurprijs
€ 2.495

Nog zelf regelen: gas, water, elektriciteit, internet en televisie

Oppervlakte en inhoud

Woonoppervlakte
84 m²

Bouw

Type woning
Appartement
Soort woning
Portiekflat
Soort bouw
Bestaande bouw
Bouwjaar
1959
Ligging
Nabij het openbaar vervoer

Indeling

Aantal kamers
3
Aantal slaapkamers
2
Aantal badkamers
1
Aantal woonlagen
2

Buitenruimte

Balkon
Aanwezig
Tuin
Niet aanwezig
Dakterras
Niet aanwezig

Energie

Energielabel
C

Bergruimte

Schuur/Berging
Niet aanwezig

Parkeergelegenheid

Aanwezig
Nee

Garage

Aanwezig
Nee

Huurvoorwaarden

Roken toegestaan
Nee
Doelgroep
Werkende
Inkomenseis
€ 6.500
Maximaal aantal bewoners
2
Meld een probleem met deze woning
Contact met de makelaar Bel