Te huur: Appartement Maashavenkade in Rotterdam
Bekijk kaart- 106 m²
- 3 kamers
- Gemeubileerd
Beschrijving
| Niet geschikt voor woningdelers / not suitable to share |
Stijlvol gemeubileerd 4-kamerappartement met balkon, eigen parkeerplaats en uniek uitzicht over de Maashaven, midden in bruisend Katendrecht, waar stadse levendigheid en comfort samenkomen!
Katendrecht is een van de meest bruisende zones van de stad, die zijn rauwe rafelrandjes heeft weten te behouden. Daarnaast biedt het schiereiland tal van leuke en hippe restaurants, ijssalons en barretjes, zoals Fenix Food Factory, kantine Walhalla, SS Rotterdam en CEO Baas van het vlees. Daarnaast kunt u ook via de voetgangers- en fietsersbrug Rijnhavenbrug een uitstapje maken naar de Wilhelminapier met onder andere: Luxor theater, bioscoop “LantarenVenster”, Nederlands Fotomuseum, restaurants en Hotel New York. Maar deze brug dient ook als de verbinding tussen Katendrecht en het centrum, waardoor het centrum nu dichtbij is!
Openbaar Vervoer
Het metrostation Rijnhaven ligt aan het begin van Schiereiland Katendrecht. Daarnaast is er een buslijn over heel Katendrecht. Maar u kunt ook geheel in stijl gebruikmaken van de watertaxi.
Indeling:
Begane grond
Eigen entree vanaf de straat, middels trapopgang komt u uit in de hal op de 2de verdieping.
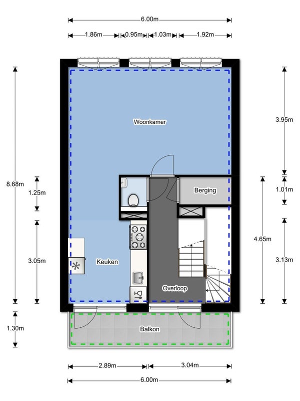
2de verdieping
Hal. Toilet met fonteintje. Vanuit de hal is er toegang tot de lichte woonkamer aan de voorzijde met zijn grandioze uitzicht over de Maashaven. Aan de achterzijde van de woonkamer is de half open keuken met voornamelijk SIEMENS-inbouwapparatuur gelegen. Vanuit de keuken is er tevens toegang tot het balkon. Dit balkon is daarnaast ook te betreden vanuit de hal.
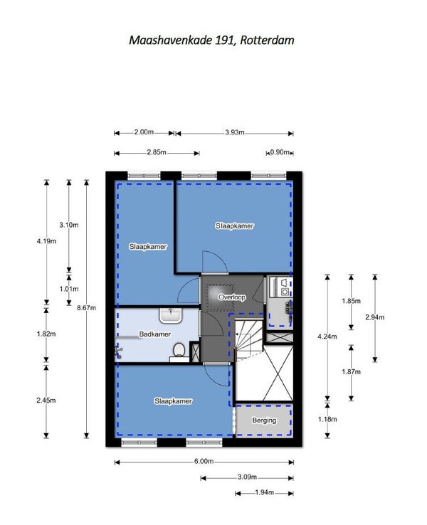
3de verdieping
Op de slaapverdieping zijn 3 kamers. Daarnaast is er een badkamer, voorzien van inloopdouche, wastafelmeubel, tweede toilet en design radiator.
In de afgesloten parkeergarage is één parkeerplaats beschikbaar.
Bijzonderheden
- Gemeubileerd
- 3 slaapkamers
- Parkeerplaats in afgesloten parkeergarage
- Uitzicht op de Maashaven
Huurvoorwaarden:
- Beschikbaar per direct;
- Minimaal 12 maanden onbepaalde tijd
- €120,- euro per maand voor de parkeerplaats (verplichte afname);
- Waarborgsom 1,5 maanden;
- De huurprijs is exclusief water, elektra, tv/internet en overige gebruikerslasten.
- Niet geschikt voor woningdelers;
- Geen huisdieren toegestaan
Bij interesse ontvangen wij graag een introductie met inkomensindicatie.
Overdracht
- Huurprijs
-
€ 2.270 per maand
- Inclusief: overige kosten
- Aangeboden sinds
- 07-10-2025
- Status
- Te huur
- Beschikbaar
- Per direct
- Huurovereenkomst
- Onbepaalde tijd
- Looptijd
- Minimaal 12 maanden
- Interieur
- Gemeubileerd
- Onderhoudsstaat
- Goed
Oppervlakte en inhoud
- Woonoppervlakte
- 106 m²
- Inhoud
- 300 m³
Bouw
- Type woning
- Appartement
- Soort woning
- Galerijflat
- Soort bouw
- Bestaande bouw
- Bouwjaar
- 2008
Indeling
- Aantal kamers
- 3
- Aantal slaapkamers
- 2
- Aantal badkamers
- 1
- Aantal woonlagen
- 2
- Voorzieningen
- Toilet
Buitenruimte
- Balkon
- Aanwezig
- Tuin
- Niet aanwezig
- Dakterras
- Niet aanwezig
Energie
- Energielabel
- A
Bergruimte
- Schuur/Berging
- Niet aanwezig
Parkeergelegenheid
- Aanwezig
- Ja
- Soort parkeergelegenheid
- Garage
Garage
- Aanwezig
- Nee
Huurvoorwaarden
- Roken toegestaan
- Nee
- Huisdieren toegestaan
- Nee
- Doelgroep
- Werkende