Woning verhuren

Contact met de makelaar

Deze woning is gevonden buiten ons eigen netwerk. Met de knop hieronder kom je direct bij de aanbieder terecht.

Nieuw

Te huur: Appartement Wijnbrugstraat in Rotterdam

Bekijk kaart
3011 XW (Stadsdriehoek)
€ 2.395 per maand
  • 86 m²
  • 3 kamers
  • Gestoffeerd

Beschrijving

Moderne en gestoffeerde 3-kamer maisonnette met zonnig terras in het hart van Rotterdam beschikbaar! Deze goed onderhouden maisonnette is gelegen op de 3e en 4e verdieping van het moderne appartementencomplex Waterstadtoren en biedt een comfortabele en stijlvolle woonomgeving midden in het centrum van de stad.

De woning ligt op het populaire Wijnhaveneiland, een geliefde locatie met alle denkbare voorzieningen binnen handbereik. Winkels, scholen, openbaar vervoer en uitvalswegen bevinden zich in de directe omgeving. Op loopafstand vind je onder andere de Markthal, de Oude Haven en de levendige Witte de Withstraat, wat deze woning ideaal maakt voor stadsgenieters.

Lay out

Begane grond
Afgesloten en representatieve entree met brievenbussen, bellentableau en intercom. Vanuit de luxe ontvangsthal zijn het trappenhuis en de drie liften bereikbaar.

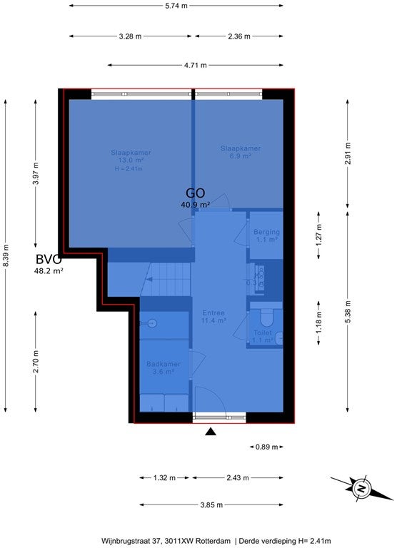
Derde etage
Via de entree komt u binnen in een zeer ruime hal met garderoberuimte, die toegang biedt tot alle vertrekken op deze verdieping. Aan de achterzijde bevinden zich twee slaapkamers van circa 13 m² en 7 m. De volledig betegelde badkamer is modern uitgevoerd en voorzien van een inloopdouche en een dubbele wastafel met meubel. Het separate toilet met fonteintje is bereikbaar vanuit de hal. Daarnaast is er een aparte wasruimte met wasmachineaansluiting, die tevens gedeeltelijk kan dienen als bergruimte.

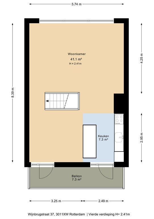
Vierde etage
De trap leidt naar de royale en lichte leefruimte. Dankzij de speelse trapopening met glazen balustrade ontstaat een duidelijke scheiding tussen het zit- en eetgedeelte. De luxe open keuken is compleet uitgerust met een vaatwasser, koelkast, vriezer, oven en keramische kookplaat. Vanuit zowel de keuken als het eetgedeelte is er directe toegang tot het brede, zonovergoten terras. De grote raampartijen zorgen voor een overvloed aan daglicht en geven de ruimte een open en ruimtelijk karakter.

Opmerkingen:

  • Huurprijs is exclusief verwarming, water, elektra, TV/internet en gemeentelijke belastingen;
  • De gehele woning is voorzien van een laminaatvloer;
  • Externe berging aanwezig;
  • Minimale huurperiode 12 maanden.

Overdracht

Huurprijs
€ 2.395 per maand
  • Inclusief: Servicekosten
Aangeboden sinds
19-12-2025
Status
Te huur
Beschikbaar
Per direct
Borg
€ 2.395
Interieur
Gestoffeerd
Onderhoudsstaat
Goed

Oppervlakte en inhoud

Woonoppervlakte
86 m²
Perceeloppervlakte
86 m²
Inhoud
265 m³

Bouw

Type woning
Appartement
Soort woning
Maisonnette, Appartement
Soort bouw
Bestaande bouw
Bouwjaar
2004
Ligging
  • Aan een rustige weg
  • Aan het water
  • In het centrum
  • Nabij het openbaar vervoer

Indeling

Aantal kamers
3
Aantal slaapkamers
2
Aantal badkamers
1
Aantal woonlagen
2
Voorzieningen
  • Lift
  • Mechanische ventilatie
  • Toilet
  • Wasruimte

Buitenruimte

Balkon
Aanwezig
Dakterras
Niet aanwezig

Energie

Verwarming
Blokverwarming
Energielabel
A

Parkeergelegenheid

Aanwezig
Ja
Soort parkeergelegenheid
Vergunning
Meld een probleem met deze woning