- 72 m²
- 4 kamers
- Gestoffeerd
Beschrijving
Energielabel D
Tijdelijk contract van 1 jaar voor specifieke doelgroepen
Huurprijs 900 ex
72m2, inhoud x3
Per direct beschikbaar
Gestoffeerd
1 maand borg
5 kamers, 2 slaapkamers
Advertentietekst:
Bent u op zoek naar een fijne woning waar u direct in kunt trekken dan is deze tussenwoning in het rustige Melissant absoluut het bezichtigen waard. De woning kan alleen maar tijdelijk verhuurd worden voor maximaal 1 jaar. Daarna wordt de woning verkocht. Dat betekent dat de woning alleen beschikbaar is voor de volgende doelgroepen indien u:
- student bent en tijdelijk voor uw studie in een andere gemeente huurt dan waar u woont;
- door werkzaamheden of renovatie van uw woning tijdelijk ergens anders woont;
- kunt aantonen dat u uit een maatschappelijke opvang komt of in een sociale noodsituatie zit;
- een 2e kans krijgt nadat een eerder huurcontract is beëindigd, bijvoorbeeld door overlast;
- gaat scheiden, aantoonbaar niet meer samenwoont met uw partner en tijdelijk een woning huurt om dicht bij uw kind(eren) te wonen;
tijdelijk werkt op 1 van de Waddeneilanden, maar normaal in een gemeente op het vasteland woont;
statushouder bent die direct uit een COA-opvanglocatie komt en wacht op definitieve huisvesting.
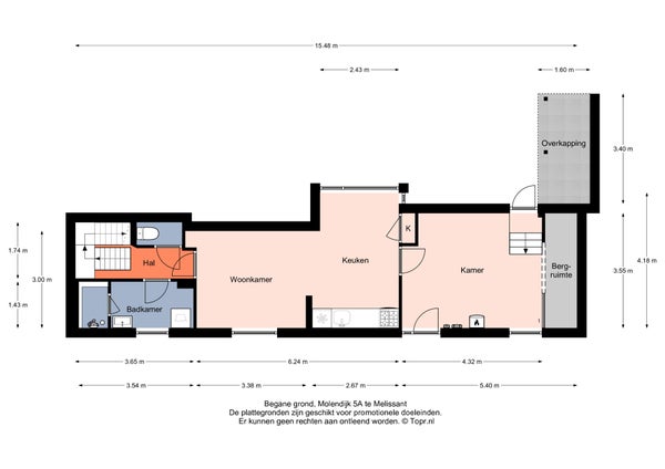
Bij binnenkomst kom je in de hal waarna je een grote ruimte hebt waar je spullen kan opbergen of deze ruimte kun je als kantoor gebruiken. Via de deur naar links komt u in de woonkeuken terecht. Hier kunt u koken, eten en ontspannen in één gezellige ruimte. Dankzij het slimme gebruik van de beschikbare meters is de begane grond ruimtelijk en licht. De woning is voorzien van dubbel glas in de gehele woning, wat niet alleen zorgt voor extra comfort, maar ook helpt bij het verlagen van de energiekosten. Daarbij beschikt de woning over een energielabel D, maar dit label is verouderd.
De woning is in 2022 gerenoveerd. Zo is de elektra vernieuwd, is de hele woning gestuct en geschilderd en is het dak aangepakt.
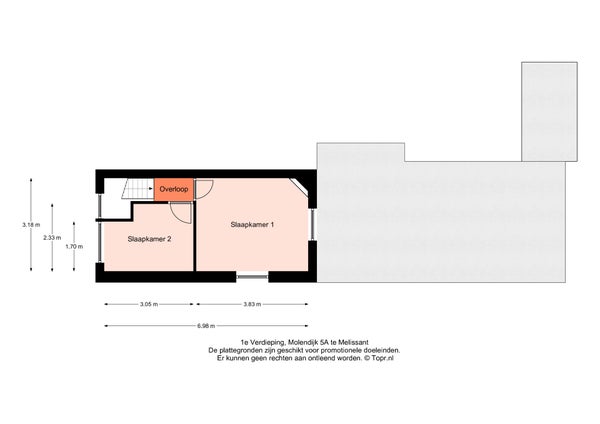
Op de eerste verdieping vindt u een kleine slaapkamer. Daarnaast is er nog een ruimere kamer aanwezig met toegang tot het dak.
Wat deze woning extra aantrekkelijk maakt is de tuin en eventueel kan er een dakterrasje gemaakt worden met vlonders. De achtertuin is begin 2025 voorzien van een nieuwe schutting en volledige betegeling, wat deze buitenruimte tot een onderhoudsarm en gezellig verlengstuk van uw woning maakt. Perfect om van de zon te genieten met een kop koffie of om ’s avonds buiten te eten.
De woning is gelegen in Melissant, een gemoedelijk dorp op Goeree-Overflakkee, waar rust, ruimte en een gevoel van gemeenschap samenkomen. Tegelijkertijd bent u binnen korte tijd in grotere plaatsen voor werk, school of vrije tijd.
Kortom, deze instapklare tussenwoning biedt u het comfort van moderne voorzieningen, energiebesparende elementen, fijne buitenruimtes en flexibele indelingsmogelijkheden. Een ideale kans voor wie betaalbaar en zorgeloos wil beginnen op de woningmarkt. Maak snel een afspraak voor een bezichtiging en laat u verrassen door de mogelijkheden!
Overdracht
- Huurprijs
-
€ 900 per maand
- Aangeboden sinds
- 02-10-2025
- Status
- Te huur
- Beschikbaar
- Per direct
- Huurovereenkomst
- Tijdelijke verhuur
- Borg
- € 900
- Interieur
- Gestoffeerd
Oppervlakte en inhoud
- Woonoppervlakte
- 72 m²
- Inhoud
- 200 m³
Bouw
- Type woning
- Huis
- Soort woning
- Tussenwoning (rijtjeshuis), Eengezinswoning
- Soort bouw
- Bestaande bouw
- Bouwjaar
- 1962
- Ligging
- In het centrum
Indeling
- Aantal kamers
- 4
- Aantal slaapkamers
- 3
- Aantal badkamers
- 1
- Voorzieningen
-
- Douche
- Toilet
Buitenruimte
- Balkon
- Niet aanwezig
- Tuin
- Aanwezig (gelegen op het zuidoosten)
- Dakterras
- Niet aanwezig
Energie
- Energielabel
- D
Bergruimte
- Schuur/Berging
- Niet aanwezig
Parkeergelegenheid
- Aanwezig
- Nee
Garage
- Aanwezig
- Nee