Woning verhuren

Contact met de makelaar

Deze woning is gevonden buiten ons eigen netwerk. Met de knop hieronder kom je direct bij de aanbieder terecht.

Nieuw

Te huur: Appartement Bosschestraat in Den Haag

Bekijk kaart
2587 HG (Belgisch Park)
€ 3.250 per maand
  • 152 m²
  • 5 kamers
  • 1923

Beschrijving

Te Huur- Bosschestraat 68 – Den Haag
Wonen in het Belgisch Park
Dit ruime dubbelbovenhuis ligt in het geliefde Belgisch Park in Scheveningen. Een groene en statige wijk met brede lanen, karakteristieke panden en de luxe van het strand, de zee en de boulevard op loopafstand. Winkels, scholen, sportvoorzieningen en openbaar vervoer zijn allemaal binnen handbereik. Een ideale plek voor wie comfortabel wil wonen in een rustige omgeving, maar wel midden in de levendigheid van Scheveningen.

Indeling
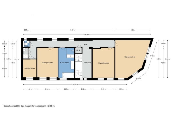
Via de portiektrap bereik je de entree van de woning. Vanuit de hal ga je met de trap direct naar de tweede verdieping, waar zich alle slaapvertrekken bevinden. In totaal zijn er vier slaapkamers, ideaal voor een gezin of voor wie thuis een werkkamer nodig heeft. De moderne badkamer is luxe afgewerkt met een ligbad, dubbele wastafel en inloopdouche. Op deze verdieping is tevens een apart toilet aanwezig.
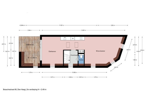
Het woongedeelte bevindt zich op de derde verdieping, waardoor je hier profiteert van veel licht en een vrij gevoel. De keuken ligt centraal in de woning en sluit aan op de eetkamer, vanwaar je via openslaande deuren toegang hebt tot het zonnige dakterras. Aan de voorzijde bevindt zich de royale woonkamer, een fijne plek om te ontspannen. Ook op deze verdieping is een apart toilet aanwezig.
Dankzij deze unieke indeling – slapen op de tweede en wonen bovenop de derde – voelt het appartement ruimtelijk en anders dan gebruikelijk. De woning is bovendien volledig opgeknapt en voorzien van moderne afwerking, waardoor hij direct te betrekken is.

Bijzonderheden
-Huur 3250,- excl GWL
-Gebruiksoppervlakte wonen: ca. 152 m² (meetrapport aanwezig)
-Gebouwgebonden buitenruimte: ca. 14,6 m² (dakterras)
-Energielabel: A
-Per direct beschikbaar
-Contract voor onbepaalde tijd met een minimale duur van 12 maanden

Overdracht

Huurprijs
€ 3.250 per maand
  • Inclusief: Servicekosten
Aangeboden sinds
09-12-2025
Status
Te huur
Beschikbaar
Per direct
Borg
€ 3.250
Onderhoudsstaat
Zeer goed

Oppervlakte en inhoud

Woonoppervlakte
152 m²
Inhoud
508 m³

Bouw

Type woning
Appartement
Soort woning
Bovenwoning, Dubbel bovenhuis
Soort bouw
Bestaande bouw
Bouwjaar
1923
Ligging
  • Nabij het openbaar vervoer
  • Nabij een school

Indeling

Aantal kamers
5
Aantal slaapkamers
4
Aantal badkamers
1
Aantal woonlagen
2
Voorzieningen
  • Bad
  • Dakterras
  • Douche
  • Toilet

Buitenruimte

Balkon
Niet aanwezig
Dakterras
Aanwezig

Energie

Isolatie
Dubbele beglazing
Verwarming
CV-ketel
Warm water
CV-ketel
Energielabel
A

Parkeergelegenheid

Aanwezig
Ja
Soort parkeergelegenheid
Openbaar
Meld een probleem met deze woning